WAYNE COUNTY 10/29/2025 12:19:32 AM
WHITFIELD DAVID ALEXANDER   Return/Appeal Notes:   Parcel: 2563734713
1295 THUNDER SWAMP RD PLAT: O/17F UNIQ ID 102489 SPLIT FROM ID 3226
739663      
COUNTYWIDE ADVALOREM TAX (100), FIRE - SMITH CHAPEL (100), SW FFEEFEE (1)        CARD NO. 1 of 1  
Reval Year: 2025 Tax Year: 2025 THUNDER SWAMP RD/LOT 1 3.0300 AC   SRC=  
Appraised by on 02910 MOUNT OLIVE AREA TW-02 CI-00 FR-14 EX- AT- LAST ACTION 20230720
CONSTRUCTION DETAIL MARKET VALUE   DEPRECIATION CORRELATION OF VALUE
Foundation - 3
Continuous Footing 5.00
Sub Floor System - 5
Woo w/ Sub Floor 6.00
Exterior Walls - 21
Face Brick 34.00
Roofing Structure - 03
Gable 4.00
Roofing Cover - 03
Asphalt or Comp Shingle 4.00
Interior Wall Construction - 4
Plywood Panel 22.00
Interior Floor Cover - 08
Sheet Vinyl 9.00
Interior Floor Cover - 14
Carpet 0.00
Heating Fuel - 04
Electric 1.00
Heating Type - 04
Forced Air-Ducted 4.00
Air Conditioning Type - 03
Central 4.00
Bedrooms/Bathrooms/Half-Bathrooms
3/1/1 10.000
Bedrooms
BAS - 3 FUS - 0 LL - 0 _
Bathrooms
BAS - 1 FUS - 0 LL - 0 _
Half-Bathrooms
BAS - 1 FUS - 0 LL - 0 _
Office
BAS - 0 FUS - 0 LL - 0 0
TOTAL POINT VALUE 103.000
BUILDING ADJUSTMENTS
Quality 5 Average 1.0000
Shape/Design 1 Market Adjustment 1.0000
Size Size Size 0.9800
TOTAL ADJUSTMENT FACTOR 0.980
TOTAL QUALITY INDEX 101
USE MOD Eff. Area QUAL BASE RATE RCN EYB AYB
   Standard  0.52000
CREDENCE TO MARKET
50 01 1,819 101 126.25 231649 1973 1966 % GOOD 48.0
DEPR. BUILDING VALUE - CARD 111,190
TYPE: RURAL SINGLE FAMILY RESIDENTIAL Single Family Residential
STYLE: 1 - 1.0 Story
 

Click on image to enlarge
DEPR. OB/XF VALUE - CARD 1,700
MARKET LAND VALUE - CARD 47,660
TOTAL MARKET VALUE - CARD 160,550
TOTAL APPRAISED VALUE - CARD 160,550
TOTAL APPRAISED VALUE - PARCEL 160,550
TOTAL PRESENT USE VALUE - PARCEL 0
TOTAL VALUE DEFERRED - PARCEL 0
TOTAL TAXABLE VALUE - PARCEL $ 160,550
PRIOR
BUILDING VALUE 80,450
OBXF VALUE 1,270
LAND VALUE 34,540
PRESENT USE VALUE 0
DEFERRED VALUE 0
TOTAL VALUE 116,260
PERMIT
CODE DATE NOTE NUMBER AMOUNT
ROUT: WTRSHD:
SALES DATA
OFF. RECORD DATE DEED TYPE Q/U V/I INDICATE SALES PRICE
BOOK PAGE MO YR
03133 0710 12 2014 WD D I 0
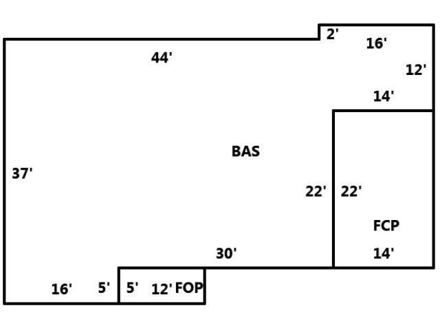
HEATED AREA 1,724
NOTES
FR 2563852482
SUBAREA
TYPE GS AREA % RPL CS
BAS 1,724 100 217655
FCP 308 025 9721
FOP 60 030 2273
FIREPLACE 3 - 1 Story Single 2,000
SUBAREA TOTALS 2,092   231,649
CODE QUALITY DESCRIPTION COUNT LTH WTH UNITS UNIT PRICE ORIG % COND BLDG# AYB EYB ANN DEP RATE OVR % COND OB/XF DEPR. VALUE
24 2 SHED (OPEN ENDED)   18 32 576 15.00 100 1 1965 1965 S3   10 864
    LEANTO NV   0 0 1 0.00 100 1 1900 1900 0   100 0
39 2 CANOPY   18 18 324 5.00 100 1 1965 1965 S3   20 324
01 2 STORAG BLD   16 16 256 20.00 100 1 1975 1975 S3   10 512
TOTAL OB/XF VALUE 1,700
BUILDING DIMENSIONS BAS=W44S37E16N5E30N22E14N12W16S2Area:1724;FOP=E12N5W12S5Area:60;FCP=E14N22W14S22Area:308;TotalArea:2092  
LAND INFORMATION
HIGHEST AND BEST USE USE CODE LOCAL ZONING FRON TAGE DEPTH DEPTH / SIZE LND MOD COND FACT OTHER ADJUSTMENTS AND NOTES
  RF   AC   LC  TO  OT
ROAD
TYPE
LAND UNIT PRICE TOTAL LAND UNITS UNT TYP TOTAL ADJST ADJUSTED UNIT PRICE LAND VALUE OVERRIDE VALUE LAND NOTES
5010 5010   0 0 1.0000 0 1.0000
  
  25,000.00 1.000 AC 1.000 25,000.00 25000 0  
5211 5211   0 0 1.8000 0 1.0000
  
  6,200.00 2.030 AC 1.800 11,160.00 22655 0  
TOTAL MARKET LAND DATA 3.030   47,660  
TOTAL PRESENT USE DATA