WAYNE COUNTY 10/26/2025 6:03:38 PM
MARSH REMUS L SR        DURRAH-MARCH ALETHIA R WIFE Return/Appeal Notes:   Parcel: 3601738790
208 N COTTONWOOD DR PLAT: / UNIQ ID 30820
766787     ID NO: 06E06062001056
COUNTYWIDE ADVALOREM TAX (100), FIRE - BELFAST (100), SW FFEEFEE (1)        CARD NO. 1 of 1  
Reval Year: 2025 Tax Year: 2025 LT56 WHISPERING WOOD 1.0000 LT   SRC=  
Appraised by 60 on 09/24/2010 06062 WHISPERING WOODS TW-06 CI-00 FR-11 EX- AT- LAST ACTION 20240508
CONSTRUCTION DETAIL MARKET VALUE   DEPRECIATION CORRELATION OF VALUE
Foundation - 3
Continuous Footing 5.00
Sub Floor System - 4
PLYWOOD 6.00
Exterior Walls - 21
Face Brick 34.00
Roofing Structure - 03
Gable 4.00
Roofing Cover - 03
Asphalt or Comp Shingle 4.00
Interior Wall Construction - 5
Drywall/Sheetrock 27.00
Interior Floor Cover - 08
Sheet Vinyl 9.00
Interior Floor Cover - 14
Carpet 0.00
Heating Fuel - 04
Electric 1.00
Heating Type - 10
Heat Pump 4.00
Air Conditioning Type - 03
Central 4.00
Bedrooms/Bathrooms/Half-Bathrooms
3/2/0 12.000
Bedrooms
BAS - 3 FUS - 0 LL - 0 _
Bathrooms
BAS - 2 FUS - 0 LL - 0 _
Half-Bathrooms
BAS - 0 FUS - 0 LL - 0 _
Office
BAS - 0 FUS - 0 LL - 0 0
TOTAL POINT VALUE 110.000
BUILDING ADJUSTMENTS
Quality 5 Average 1.0000
Shape/Design 7 Market Adjustment 1.1500
Size Size Size 0.9500
TOTAL ADJUSTMENT FACTOR 1.090
TOTAL QUALITY INDEX 120
USE MOD Eff. Area QUAL BASE RATE RCN EYB AYB
   Standard  0.45000
CREDENCE TO MARKET
50 01 2,530 120 150.00 381500 1980 1980 % GOOD 55.0
DEPR. BUILDING VALUE - CARD 209,830
TYPE: RURAL SINGLE FAMILY RESIDENTIAL Single Family Residential
STYLE: 1 - 1.0 Story
 

Click on image to enlarge
DEPR. OB/XF VALUE - CARD 1,340
MARKET LAND VALUE - CARD 36,750
TOTAL MARKET VALUE - CARD 247,920
TOTAL APPRAISED VALUE - CARD 247,920
TOTAL APPRAISED VALUE - PARCEL 247,920
TOTAL PRESENT USE VALUE - PARCEL 0
TOTAL VALUE DEFERRED - PARCEL 0
TOTAL TAXABLE VALUE - PARCEL $ 247,920
PRIOR
BUILDING VALUE 149,500
OBXF VALUE 950
LAND VALUE 23,100
PRESENT USE VALUE 0
DEFERRED VALUE 0
TOTAL VALUE 173,550
PERMIT
CODE DATE NOTE NUMBER AMOUNT
ROUT: WTRSHD:
SALES DATA
OFF. RECORD DATE DEED TYPE Q/U V/I INDICATE SALES PRICE
BOOK PAGE MO YR
03890 0400 4 2024 WD F I 187000
03793 0443 1 2023 WD C I 0
03197 0493 12 2015 WD Q I 160000
01441 0226 8 1994 WD U I 100000
01354 0802 11 1992 WD U I 95500
00990 0416 1 1901 WD U I 0
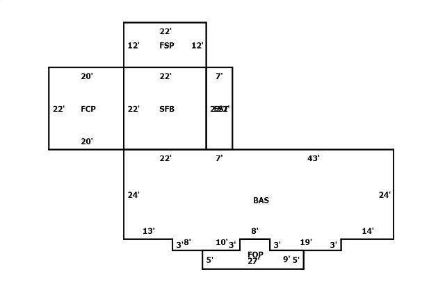
HEATED AREA 2,323
NOTES
 
SUBAREA
TYPE GS AREA % RPL CS
BAS 1,839 100 275850
FCP 440 025 16500
FOP 159 030 7200
FSP 264 035 13800
FST 154 035 8100
SFB 484 080 58050
FIREPLACE 3 - 1 Story Single 2,000
SUBAREA TOTALS 3,340   381,500
CODE QUALITY DESCRIPTION COUNT LTH WTH UNITS UNIT PRICE ORIG % COND BLDG# AYB EYB ANN DEP RATE OVR % COND OB/XF DEPR. VALUE
01 2 STORAG BLD   16 24 384 20.00 100 1 1980 1980 S3   10 768
29 2 IMPROVSHED   16 18 288 10.00 100 1 1980 1980 S3   20 576
TOTAL OB/XF VALUE 1,344
BUILDING DIMENSIONS BAS=W43W7W22S24E13S3E8E10N3E8S3E19N3E14N24Area:1839;FST=N22W7S22E7Area:154;SFB=N22W22S22E22Area:484;FSP=N12W22S12E22Area a:264;FOP=S5E27N5W9N3W8S3W10Area:159;FCP=W20S22E20N22Area:440;TotalArea:3340  
LAND INFORMATION
HIGHEST AND BEST USE USE CODE LOCAL ZONING FRON TAGE DEPTH DEPTH / SIZE LND MOD COND FACT OTHER ADJUSTMENTS AND NOTES
  RF   AC   LC  TO  OT
ROAD
TYPE
LAND UNIT PRICE TOTAL LAND UNITS UNT TYP TOTAL ADJST ADJUSTED UNIT PRICE LAND VALUE OVERRIDE VALUE LAND NOTES
5010 5010   0 0 1.0000 0 1.0500
  SIZE
  35,000.00 1.000 LT 1.050 36,750.00 36750 0  
TOTAL MARKET LAND DATA     36,750  
TOTAL PRESENT USE DATA