WAYNE COUNTY 11/2/2025 5:04:56 AM
STRICKLAND & MITCHELL FAMILY PROPERTIES LLC   Return/Appeal Notes:   Parcel: 3509020334
631 ISLER ST PLAT: / UNIQ ID 50195
75342687     ID NO: 12000015001015
COUNTYWIDE ADVALOREM TAX (100), CITY - GOLDSBORO (100)        CARD NO. 1 of 1  
Reval Year: 2025 Tax Year: 2025 631 S ISLER ST 1.0000 LT   SRC=  
Appraised by 60 on 01501 DIXIE TRAIL TW-12 CI-01 FR-00 EX- AT- LAST ACTION 20240718
CONSTRUCTION DETAIL MARKET VALUE   DEPRECIATION CORRELATION OF VALUE
Foundation - 3
Continuous Footing 5.00
Sub Floor System - 5
Woo w/ Sub Floor 6.00
Exterior Walls - 21
Face Brick 32.00
Exterior Walls - 10
Aluminum/Vinyl Siding 0.00
Roofing Structure - 03
Gable 4.00
Roofing Cover - 12
Modular Metal 4.00
Interior Wall Construction - 5
Drywall/Sheetrock 27.00
Interior Floor Cover - 12
Hardwood 12.00
Heating Fuel - 04
Electric 1.00
Heating Type - 04
Forced Air-Ducted 4.00
Air Conditioning Type - 01
None 0.00
Bedrooms/Bathrooms/Half-Bathrooms
2/1/0 6.000
Bedrooms
BAS - 2 FUS - 0 LL - 0 _
Bathrooms
BAS - 1 FUS - 0 LL - 0 _
Half-Bathrooms
BAS - 0 FUS - 0 LL - 0 _
Office
BAS - 0 FUS - 0 LL - 0 0
TOTAL POINT VALUE 101.000
BUILDING ADJUSTMENTS
Quality 3 Below Average 0.9000
Shape/Design 1 Market Adjustment 1.0000
Size Size Size 1.1000
TOTAL ADJUSTMENT FACTOR 0.990
TOTAL QUALITY INDEX 100
USE MOD Eff. Area QUAL BASE RATE RCN EYB AYB
   Standard  0.40000
CREDENCE TO MARKET
01 01 984 100 125.00 123000 1985 1958 % GOOD 60.0
DEPR. BUILDING VALUE - CARD 73,800
TYPE: SINGLE FAMILY RESIDENTIAL Single Family Residential
STYLE: 1 - 1.0 Story
 

Click on image to enlarge
DEPR. OB/XF VALUE - CARD 0
MARKET LAND VALUE - CARD 8,740
TOTAL MARKET VALUE - CARD 82,540
TOTAL APPRAISED VALUE - CARD 82,540
TOTAL APPRAISED VALUE - PARCEL 82,540
TOTAL PRESENT USE VALUE - PARCEL 0
TOTAL VALUE DEFERRED - PARCEL 0
TOTAL TAXABLE VALUE - PARCEL $ 82,540
PRIOR
BUILDING VALUE 30,700
OBXF VALUE 0
LAND VALUE 3,790
PRESENT USE VALUE 0
DEFERRED VALUE 0
TOTAL VALUE 34,490
PERMIT
CODE DATE NOTE NUMBER AMOUNT
ROUT: WTRSHD:
SALES DATA
OFF. RECORD DATE DEED TYPE Q/U V/I INDICATE SALES PRICE
BOOK PAGE MO YR
03525 0710 6 2020 WD Q I 34500
01373 0212 4 1993 WD U I 0
00536 0194 1 1960 WD U I 0
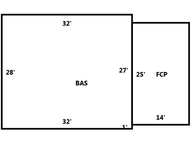
HEATED AREA 896
NOTES
 
SUBAREA
TYPE GS AREA % RPL CS
BAS 896 100 112000
FCP 350 025 11000
FIREPLACE 1 - None 0
SUBAREA TOTALS 1,246   123,000
CODE QUALITY DESCRIPTION COUNT LTH WTH UNITS UNIT PRICE ORIG % COND BLDG# AYB EYB ANN DEP RATE OVR % COND OB/XF DEPR. VALUE
    SHED NV   0 0 1 0.00 100 1 1900 1900 0   100 0
TOTAL OB/XF VALUE 0
BUILDING DIMENSIONS BAS=W32S28E32N1N27Area:896;FCP=E14N25W14S25Area:350;TotalArea:1246  
LAND INFORMATION
HIGHEST AND BEST USE USE CODE LOCAL ZONING FRON TAGE DEPTH DEPTH / SIZE LND MOD COND FACT OTHER ADJUSTMENTS AND NOTES
  RF   AC   LC  TO  OT
ROAD
TYPE
LAND UNIT PRICE TOTAL LAND UNITS UNT TYP TOTAL ADJST ADJUSTED UNIT PRICE LAND VALUE OVERRIDE VALUE LAND NOTES
0100 0100 R6 62 125 0.9400 2 1.0000     150.00 62.000 FF 0.940 141.00 8742 0  
TOTAL MARKET LAND DATA     8,740  
TOTAL PRESENT USE DATA