WAYNE COUNTY 10/30/2025 11:43:54 AM
STRICKLAND & MITCHELL FAMILY PROPERTIES LLC   Return/Appeal Notes:   Parcel: 2587948076
648 GENOA RD PLAT: / UNIQ ID 11809
75342687     ID NO: 02G10000009038
COUNTYWIDE ADVALOREM TAX (100), FIRE - MARMAC (100), SW FFEEFEE (3)        CARD NO. 1 of 1  
Reval Year: 2025 Tax Year: 2025 GENOA RD 26.0000 AC   SRC=  
Appraised by 88 on 07/23/2010 02909 BROGDEN TW-02 CI-00 FR-01 EX- AT- LAST ACTION 20241031
CONSTRUCTION DETAIL MARKET VALUE   DEPRECIATION CORRELATION OF VALUE
Foundation - 3
Continuous Footing 5.00
Sub Floor System - 5
Woo w/ Sub Floor 6.00
Exterior Walls - 21
Face Brick 34.00
Roofing Structure - 03
Gable 4.00
Roofing Cover - 03
Asphalt or Comp Shingle 4.00
Interior Wall Construction - 5
Drywall/Sheetrock 27.00
Interior Floor Cover - 08
Sheet Vinyl 9.00
Interior Floor Cover - 14
Carpet 0.00
Heating Fuel - 02
Oil, Wood, or Coal 1.00
Heating Type - 04
Forced Air-Ducted 4.00
Air Conditioning Type - 03
Central 4.00
Bedrooms/Bathrooms/Half-Bathrooms
3/1/0 8.000
Bedrooms
BAS - 3 FUS - 0 LL - 0 _
Bathrooms
BAS - 1 FUS - 0 LL - 0 _
Half-Bathrooms
BAS - 0 FUS - 0 LL - 0 _
Office
BAS - 0 FUS - 0 LL - 0 0
TOTAL POINT VALUE 106.000
BUILDING ADJUSTMENTS
Quality 5 Average 1.0000
Shape/Design 1 Market Adjustment 1.0000
Size Size Size 1.0000
TOTAL ADJUSTMENT FACTOR 1.000
TOTAL QUALITY INDEX 106
USE MOD Eff. Area QUAL BASE RATE RCN EYB AYB
   Standard  0.63000
CREDENCE TO MARKET
50 01 1,831 106 132.50 242609 1962 1962 % GOOD 37.0
DEPR. BUILDING VALUE - CARD 89,770
TYPE: RURAL SINGLE FAMILY RESIDENTIAL Single Family Residential
STYLE: 1 - 1.0 Story
 

Click on image to enlarge
DEPR. OB/XF VALUE - CARD 6,500
MARKET LAND VALUE - CARD 42,250
TOTAL MARKET VALUE - CARD 138,520
TOTAL APPRAISED VALUE - CARD 138,520
TOTAL APPRAISED VALUE - PARCEL 138,520
TOTAL PRESENT USE VALUE - PARCEL 0
TOTAL VALUE DEFERRED - PARCEL 0
TOTAL TAXABLE VALUE - PARCEL $ 138,520
PRIOR
BUILDING VALUE 53,330
OBXF VALUE 3,400
LAND VALUE 31,000
PRESENT USE VALUE 0
DEFERRED VALUE 0
TOTAL VALUE 87,730
PERMIT
CODE DATE NOTE NUMBER AMOUNT
ROUT: WTRSHD:
SALES DATA
OFF. RECORD DATE DEED TYPE Q/U V/I INDICATE SALES PRICE
BOOK PAGE MO YR
03353 0424 2 2018 WD Q I 80000
01838 0252 4 2001 WD U I 60000
01792 0572 8 2000 WD U I 0
00977 0656 1 1979 WD U I 0
HEATED AREA 1,477
NOTES
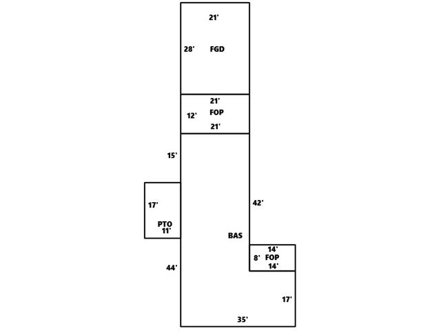
P 1/24 FGD & CAN FOR 2025REMOD. 1965
SUBAREA
TYPE GS AREA % RPL CS
BAS 1,477 100 195703
FGD 588 040 31138
FOP 364 030 14575
PTO 187 005 1193
FIREPLACE 1 - None 0
SUBAREA TOTALS 2,616   242,609
CODE QUALITY DESCRIPTION COUNT LTH WTH UNITS UNIT PRICE ORIG % COND BLDG# AYB EYB ANN DEP RATE OVR % COND OB/XF DEPR. VALUE
15 2 MOBILEHOME   0 0 2 1,700.00 100 _ 1900 1900 0   100 3400
39 1 CANOPY   20 40 800 4.00 100 _ 2024 2024 S3   97 3104
TOTAL OB/XF VALUE 6,504
BUILDING DIMENSIONS BAS=W21S15S44E35N17W14N42Area:1477;PTO=W11S17E11N17Area:187;FOP=N8W14S8E14Area:112;FOP=E21N12W21S12Area:252;FGD=N28W21S2 28E21Area:588;TotalArea:2616  
LAND INFORMATION
HIGHEST AND BEST USE USE CODE LOCAL ZONING FRON TAGE DEPTH DEPTH / SIZE LND MOD COND FACT OTHER ADJUSTMENTS AND NOTES
  RF   AC   LC  TO  OT
ROAD
TYPE
LAND UNIT PRICE TOTAL LAND UNITS UNT TYP TOTAL ADJST ADJUSTED UNIT PRICE LAND VALUE OVERRIDE VALUE LAND NOTES
5010 5010   0 0 1.0000 0 1.0000     25,000.00 1.000 AC 1.000 25,000.00 25000 0  
6211 6211   0 0 1.0000 0 0.3000
  LAKE
  2,300.00 25.000 AC 0.300 690.00 17250 0  
TOTAL MARKET LAND DATA 26.000   42,250  
TOTAL PRESENT USE DATA