WAYNE COUNTY 11/2/2025 5:07:27 AM
POWELL BRYAN T        POWELL AMBER J WIFE Return/Appeal Notes:   Parcel: 2673973408
2263 N NC 581 HWY PLAT: / UNIQ ID 67521
675340     ID NO: 08H04000003004
COUNTYWIDE ADVALOREM TAX (100), FIRE - NAHUNTA (100), SW FFEEFEE (1)        CARD NO. 1 of 1  
Reval Year: 2025 Tax Year: 2025 2263 N NC 581 HY LT1 N/26J/ST3CD 1.0000 LT   SRC=  
Appraised by on 10/27/2010 08902 BUCK SWAMP CENTRAL TW-08 CI-00 FR-09 EX- AT- LAST ACTION 20241217
CONSTRUCTION DETAIL MARKET VALUE   DEPRECIATION CORRELATION OF VALUE
Foundation - 3
Continuous Footing 5.00
Sub Floor System - 4
PLYWOOD 6.00
Exterior Walls - 21
Face Brick 34.00
Roofing Structure - 03
Gable 4.00
Roofing Cover - 03
Asphalt or Comp Shingle 4.00
Interior Wall Construction - 5
Drywall/Sheetrock 27.00
Interior Floor Cover - 14
Carpet 9.00
Interior Floor Cover - 08
Sheet Vinyl 0.00
Heating Fuel - 04
Electric 1.00
Heating Type - 04
Forced Air-Ducted 4.00
Air Conditioning Type - 03
Central 4.00
Bedrooms/Bathrooms/Half-Bathrooms
3/2/0 12.000
Bedrooms
BAS - 3 FUS - 0 LL - 0 _
Bathrooms
BAS - 2 FUS - 0 LL - 0 _
Half-Bathrooms
BAS - 0 FUS - 0 LL - 0 _
Office
BAS - 0 FUS - 0 LL - 0 0
TOTAL POINT VALUE 110.000
BUILDING ADJUSTMENTS
Quality 5 Average 1.0000
Shape/Design 1 Market Adjustment 1.0000
Size Size Size 0.9800
TOTAL ADJUSTMENT FACTOR 0.980
TOTAL QUALITY INDEX 108
USE MOD Eff. Area QUAL BASE RATE RCN EYB AYB
   Standard  0.37000
CREDENCE TO MARKET
50 01 2,080 108 135.00 282800 1988 1972 % GOOD 63.0
DEPR. BUILDING VALUE - CARD 178,160
TYPE: RURAL SINGLE FAMILY RESIDENTIAL Single Family Residential
STYLE: 1 - 1.0 Story
 

Click on image to enlarge
DEPR. OB/XF VALUE - CARD 5,740
MARKET LAND VALUE - CARD 24,300
TOTAL MARKET VALUE - CARD 208,200
TOTAL APPRAISED VALUE - CARD 208,200
TOTAL APPRAISED VALUE - PARCEL 208,200
TOTAL PRESENT USE VALUE - PARCEL 0
TOTAL VALUE DEFERRED - PARCEL 0
TOTAL TAXABLE VALUE - PARCEL $ 208,200
PRIOR
BUILDING VALUE 101,760
OBXF VALUE 5,020
LAND VALUE 16,200
PRESENT USE VALUE 0
DEFERRED VALUE 0
TOTAL VALUE 122,980
PERMIT
CODE DATE NOTE NUMBER AMOUNT
ROUT: WTRSHD:
SALES DATA
OFF. RECORD DATE DEED TYPE Q/U V/I INDICATE SALES PRICE
BOOK PAGE MO YR
03134 0597 1 2015 WD U V 0
02722 0163 7 2009 WD U I 130000
02722 0161 7 2009 WD U I 0
01813 0497 12 2000 WD U I 90000
01077 0546 1 1984   U I 16000
HEATED AREA 1,742
NOTES
P3-11 2-STORY GARG FOR 2012./ADDED 2673972585/ADDE
D 2673973421
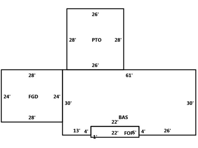
SUBAREA
TYPE GS AREA % RPL CS
BAS 1,742 100 235170
FGD 672 040 36315
FOP 110 030 4455
PTO 728 005 4860
FIREPLACE 3 - 1 Story Single 2,000
SUBAREA TOTALS 3,252   282,800
CODE QUALITY DESCRIPTION COUNT LTH WTH UNITS UNIT PRICE ORIG % COND BLDG# AYB EYB ANN DEP RATE OVR % COND OB/XF DEPR. VALUE
02 1 GARAGE   24 22 528 15.00 125 _ 2011 2011 S3   58 5743
TOTAL OB/XF VALUE 5,743
BUILDING DIMENSIONS BAS=W61S30E13N4E22S4E26N30Area:1742;FGD=W28S24E28N24Area:672;FOP=S1E22N5W22S4Area:110;PTO=N28W26S28E26Area:728;TotalArea a:3252  
LAND INFORMATION
HIGHEST AND BEST USE USE CODE LOCAL ZONING FRON TAGE DEPTH DEPTH / SIZE LND MOD COND FACT OTHER ADJUSTMENTS AND NOTES
  RF   AC   LC  TO  OT
ROAD
TYPE
LAND UNIT PRICE TOTAL LAND UNITS UNT TYP TOTAL ADJST ADJUSTED UNIT PRICE LAND VALUE OVERRIDE VALUE LAND NOTES
5010 5010   0 0 1.0000 0 0.9000
  .68AC
  27,000.00 1.000 LT 0.900 24,300.00 24300 0  
TOTAL MARKET LAND DATA     24,300  
TOTAL PRESENT USE DATA