WAYNE COUNTY 10/30/2025 9:29:30 PM
POWELL DAVID HENRY   Return/Appeal Notes:   Parcel: 3509345273
1012 E WALNUT ST PLAT: / UNIQ ID 51992
737366     ID NO: 12000005004009
COUNTYWIDE ADVALOREM TAX (100), CITY - GOLDSBORO (100)        CARD NO. 1 of 1  
Reval Year: 2025 Tax Year: 2025 E WALNUT ST WILL FILE 3652 1.0000 LT   SRC=  
Appraised by 60 on 01402 EVERGREEN AREA TW-12 CI-01 FR-00 EX- AT- LAST ACTION 20250115
CONSTRUCTION DETAIL MARKET VALUE   DEPRECIATION CORRELATION OF VALUE
Foundation - 3
Continuous Footing 5.00
Sub Floor System - 5
Woo w/ Sub Floor 6.00
Exterior Walls - 21
Face Brick 34.00
Roofing Structure - 03
Gable 4.00
Roofing Cover - 03
Asphalt or Comp Shingle 4.00
Interior Wall Construction - 3
Plastered 28.00
Interior Floor Cover - 12
Hardwood 11.00
Interior Floor Cover - 14
Carpet 0.00
Heating Fuel - 04
Electric 1.00
Heating Type - 04
Forced Air-Ducted 4.00
Air Conditioning Type - 03
Central 4.00
Bedrooms/Bathrooms/Half-Bathrooms
3/1/1 10.000
Bedrooms
BAS - 3 FUS - 0 LL - 0 _
Bathrooms
BAS - 1 FUS - 0 LL - 0 _
Half-Bathrooms
BAS - 1 FUS - 0 LL - 0 _
Office
BAS - 0 FUS - 0 LL - 0 0
TOTAL POINT VALUE 111.000
BUILDING ADJUSTMENTS
Quality 5 Average 1.0000
Shape/Design 3 Market Adjustment 1.0400
Size Size Size 0.9800
TOTAL ADJUSTMENT FACTOR 1.020
TOTAL QUALITY INDEX 113
USE MOD Eff. Area QUAL BASE RATE RCN EYB AYB
   Standard  0.58000
CREDENCE TO MARKET
01 01 1,809 113 141.25 257521 1967 1953 % GOOD 42.0
DEPR. BUILDING VALUE - CARD 108,160
TYPE: SINGLE FAMILY RESIDENTIAL Single Family Residential
STYLE: 1 - 1.0 Story
 

Click on image to enlarge
DEPR. OB/XF VALUE - CARD 3,120
MARKET LAND VALUE - CARD 36,760
TOTAL MARKET VALUE - CARD 148,040
TOTAL APPRAISED VALUE - CARD 148,040
TOTAL APPRAISED VALUE - PARCEL 148,040
TOTAL PRESENT USE VALUE - PARCEL 0
TOTAL VALUE DEFERRED - PARCEL 0
TOTAL TAXABLE VALUE - PARCEL $ 148,040
PRIOR
BUILDING VALUE 84,420
OBXF VALUE 2,500
LAND VALUE 11,490
PRESENT USE VALUE 0
DEFERRED VALUE 0
TOTAL VALUE 98,410
PERMIT
CODE DATE NOTE NUMBER AMOUNT
ROUT: WTRSHD:
SALES DATA
OFF. RECORD DATE DEED TYPE Q/U V/I INDICATE SALES PRICE
BOOK PAGE MO YR
03064 0583 12 2013 WD C I 0
02966 0672 10 2012 WD U I 82000
0093E 0388 1 1993 WD U I 0
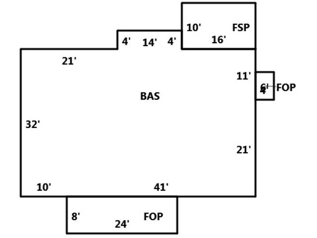
HEATED AREA 1,688
NOTES
 
SUBAREA
TYPE GS AREA % RPL CS
BAS 1,688 100 238430
FOP 216 030 9181
FSP 160 035 7910
FIREPLACE 3 - 1 Story Single 2,000
SUBAREA TOTALS 2,064   257,521
CODE QUALITY DESCRIPTION COUNT LTH WTH UNITS UNIT PRICE ORIG % COND BLDG# AYB EYB ANN DEP RATE OVR % COND OB/XF DEPR. VALUE
02 2 GARAGE   24 26 624 25.00 100 1 1976 1976 S3   20 3120
TOTAL OB/XF VALUE 3,120
BUILDING DIMENSIONS FSP=N10W16S10E16Area:160;BAS=W16N4W14S4W21S32E10E41N21N11Area:1688;FOP=S8E24N8W24Area:192;FOP=E4N6W4S6Area:24;TotalArea: :2064  
LAND INFORMATION
HIGHEST AND BEST USE USE CODE LOCAL ZONING FRON TAGE DEPTH DEPTH / SIZE LND MOD COND FACT OTHER ADJUSTMENTS AND NOTES
  RF   AC   LC  TO  OT
ROAD
TYPE
LAND UNIT PRICE TOTAL LAND UNITS UNT TYP TOTAL ADJST ADJUSTED UNIT PRICE LAND VALUE OVERRIDE VALUE LAND NOTES
0100 0100 R-6 101 155 1.0100 2 0.9000
  SIZE
  400.00 101.000 FF 0.910 364.00 36764 0  
TOTAL MARKET LAND DATA     36,760  
TOTAL PRESENT USE DATA