WAYNE COUNTY 11/6/2025 3:31:41 PM
STRICKLAND BENJAMIN C JR        STRICKLAND ADRIANNE PARKER WIFE Return/Appeal Notes:   Parcel: 3509542200
1402 E MULBERRY ST PLAT: / UNIQ ID 53065
754206     ID NO: 12000030001005
COUNTYWIDE ADVALOREM TAX (100), CITY - GOLDSBORO (100)        CARD NO. 1 of 1  
Reval Year: 2025 Tax Year: 2025 E MULBERRY ST 1.0000 LT   SRC=  
Appraised by 60 on 01402 EVERGREEN AREA TW-12 CI-01 FR-00 EX- AT- LAST ACTION 20250225
CONSTRUCTION DETAIL MARKET VALUE   DEPRECIATION CORRELATION OF VALUE
Foundation - 3
Continuous Footing 5.00
Sub Floor System - 5
Woo w/ Sub Floor 6.00
Exterior Walls - 09
Wood on Sheath/Plywood 32.00
Exterior Walls - 21
Face Brick 0.00
Roofing Structure - 03
Gable 4.00
Roofing Cover - 03
Asphalt or Comp Shingle 4.00
Interior Wall Construction - 3
Plastered 27.00
Interior Wall Construction - 5
Drywall/Sheetrock 0.00
Interior Floor Cover - 12
Hardwood 11.00
Interior Floor Cover - 14
Carpet 0.00
Heating Fuel - 04
Electric 1.00
Heating Type - 10
Heat Pump 4.00
Air Conditioning Type - 03
Central 4.00
Bedrooms/Bathrooms/Half-Bathrooms
5/4/0 19.000
Bedrooms
BAS - 2 FUS - 3 LL - 0 _
Bathrooms
BAS - 2 FUS - 2 LL - 0 _
Half-Bathrooms
BAS - 0 FUS - 0 LL - 0 _
Office
BAS - 0 FUS - 0 LL - 0 0
TOTAL POINT VALUE 117.000
BUILDING ADJUSTMENTS
Quality 7 Above Average 1.2000
Shape/Design 1 Market Adjustment 1.0000
Size Size Size 0.9500
TOTAL ADJUSTMENT FACTOR 1.140
TOTAL QUALITY INDEX 133
USE MOD Eff. Area QUAL BASE RATE RCN EYB AYB
   Standard  0.53000
CREDENCE TO MARKET
01 01 4,181 133 166.25 697492 1972 1925 % GOOD 47.0
DEPR. BUILDING VALUE - CARD 327,820
TYPE: SINGLE FAMILY RESIDENTIAL Single Family Residential
STYLE: 3 - 2.0 Stories
 

Click on image to enlarge
DEPR. OB/XF VALUE - CARD 1,120
MARKET LAND VALUE - CARD 62,920
TOTAL MARKET VALUE - CARD 391,860
TOTAL APPRAISED VALUE - CARD 391,860
TOTAL APPRAISED VALUE - PARCEL 391,860
TOTAL PRESENT USE VALUE - PARCEL 0
TOTAL VALUE DEFERRED - PARCEL 0
TOTAL TAXABLE VALUE - PARCEL $ 391,860
PRIOR
BUILDING VALUE 276,910
OBXF VALUE 840
LAND VALUE 31,460
PRESENT USE VALUE 0
DEFERRED VALUE 0
TOTAL VALUE 309,210
PERMIT
CODE DATE NOTE NUMBER AMOUNT
ROUT: WTRSHD:
SALES DATA
OFF. RECORD DATE DEED TYPE Q/U V/I INDICATE SALES PRICE
BOOK PAGE MO YR
03516 0356 4 2020 WD A I 175000
03391 0838 8 2018 WD C I 0
00686 0592 1 1967 WD U I 0
0018E 0842 8 2018 WB C V 0
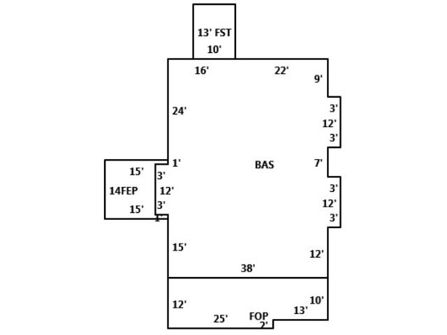
HEATED AREA 4,258
NOTES
REMODELED 1970 OLD VALUE INCLUDES LOT 6
CK'D 6-6-91 GREENHSE NVE
SUBAREA
TYPE GS AREA % RPL CS
BAS 2,084 100 346465
FEP 174 070 20283
FOP 430 030 21446
FST 130 035 7648
FUS* 2,000 090 299250
FIREPLACE 3 - 1 Story Single 2,400
SUBAREA TOTALS 4,818   697,492
CODE QUALITY DESCRIPTION COUNT LTH WTH UNITS UNIT PRICE ORIG % COND BLDG# AYB EYB ANN DEP RATE OVR % COND OB/XF DEPR. VALUE
01 2 STORAG BLD   28 20 560 20.00 100 1 1967 1967 S3   10 1120
    GRN HSE NV   0 0 1 0.00 100 1 1900 1900 0   100 0
TOTAL OB/XF VALUE 1,120
BUILDING DIMENSIONS BAS=W22W16S24S1W3S12E3S15E38N12E3N12W3N7E3N12W3N9Area:2084;FST=N13W10S13E10Area:130;FEP=W15S14E15N1W3N12E3N1Area:174;FOP P=S12E25N2E13N10W38Area:430;FUS=Area:2000;TotalArea:4818  
LAND INFORMATION
HIGHEST AND BEST USE USE CODE LOCAL ZONING FRON TAGE DEPTH DEPTH / SIZE LND MOD COND FACT OTHER ADJUSTMENTS AND NOTES
  RF   AC   LC  TO  OT
ROAD
TYPE
LAND UNIT PRICE TOTAL LAND UNITS UNT TYP TOTAL ADJST ADJUSTED UNIT PRICE LAND VALUE OVERRIDE VALUE LAND NOTES
0100 0100 R-9 147 195 1.0700 2 1.0000     400.00 147.000 FF 1.070 428.00 62916 0  
TOTAL MARKET LAND DATA     62,920  
TOTAL PRESENT USE DATA