WAYNE COUNTY 4/2/2026 5:18:52 AM
BRITT ANDREW W        BRITT PARKER T WIFE Return/Appeal Notes:   Parcel: 2545115746
412 CORBETT HILL RD PLAT: O/34J UNIQ ID 102873 SPLIT FROM ID 1529
770637      
COUNTYWIDE ADVALOREM TAX (100), FIRE - GRANTHAM (100), SW FFEEFEE (1)        CARD NO. 1 of 1  
Reval Year: 2025 Tax Year: 2026 CORBETT HILL RD/ LT 1 2.4400 AC   SRC=  
Appraised by on 01904 GRANTHAM TOWNSHIP TW-01 CI-00 FR-03 EX- AT- LAST ACTION 20250806
CONSTRUCTION DETAIL MARKET VALUE   DEPRECIATION CORRELATION OF VALUE
Foundation - 3
Continuous Footing 5.00
Sub Floor System - 5
Woo w/ Sub Floor 6.00
Exterior Walls - 04
Single Siding 24.00
Roofing Structure - 03
Gable 4.00
Roofing Cover - 12
Modular Metal 4.00
Interior Wall Construction - 5
Drywall/Sheetrock 27.00
Interior Floor Cover - 12
Hardwood 12.00
Heating Fuel - 04
Electric 1.00
Heating Type - 10
Heat Pump 4.00
Air Conditioning Type - 03
Central 4.00
Bedrooms/Bathrooms/Half-Bathrooms
2/1/0 6.000
Bedrooms
BAS - 2 FUS - 0 LL - 0 _
Bathrooms
BAS - 1 FUS - 0 LL - 0 _
Half-Bathrooms
BAS - 0 FUS - 0 LL - 0 _
Office
BAS - 0 FUS - 0 LL - 0 0
TOTAL POINT VALUE 97.000
BUILDING ADJUSTMENTS
Quality 5 Average 1.0000
Shape/Design 3 Market Adjustment 1.0400
Size Size Size 1.0500
TOTAL ADJUSTMENT FACTOR 1.090
TOTAL QUALITY INDEX 106
USE MOD Eff. Area QUAL BASE RATE RCN EYB AYB
   Standard  0.35000
CREDENCE TO MARKET
50 01 1,206 106 132.50 159795 1990 1950 % GOOD 65.0
DEPR. BUILDING VALUE - CARD 103,870
TYPE: RURAL SINGLE FAMILY RESIDENTIAL Single Family Residential
STYLE: 1 - 1.0 Story
 

Click on image to enlarge
DEPR. OB/XF VALUE - CARD 3,710
MARKET LAND VALUE - CARD 41,070
TOTAL MARKET VALUE - CARD 148,650
TOTAL APPRAISED VALUE - CARD 148,650
TOTAL APPRAISED VALUE - PARCEL 148,650
TOTAL PRESENT USE VALUE - PARCEL 0
TOTAL VALUE DEFERRED - PARCEL 0
TOTAL TAXABLE VALUE - PARCEL $ 148,650
PRIOR
BUILDING VALUE 17,950
OBXF VALUE 690
LAND VALUE 27,520
PRESENT USE VALUE 0
DEFERRED VALUE 0
TOTAL VALUE 46,160
PERMIT
CODE DATE NOTE NUMBER AMOUNT
ROUT: WTRSHD:
SALES DATA
OFF. RECORD DATE DEED TYPE Q/U V/I INDICATE SALES PRICE
BOOK PAGE MO YR
04003 0298 7 2025 WD A I 425000
03788 0870 12 2022 WD C I 0
03782 0413 11 2022 WD C I 0
03192 0311 11 2015 WD A I 170000
HEATED AREA 1,120
NOTES
FR 2545008886/ 1.36 TO 2545116791. 7/24 PER LISTIN
G HSE HAS HAD INTERIOR RENOV FOR 2025RECORDED YEAR
1965 19.50 TO 20A
SUBAREA
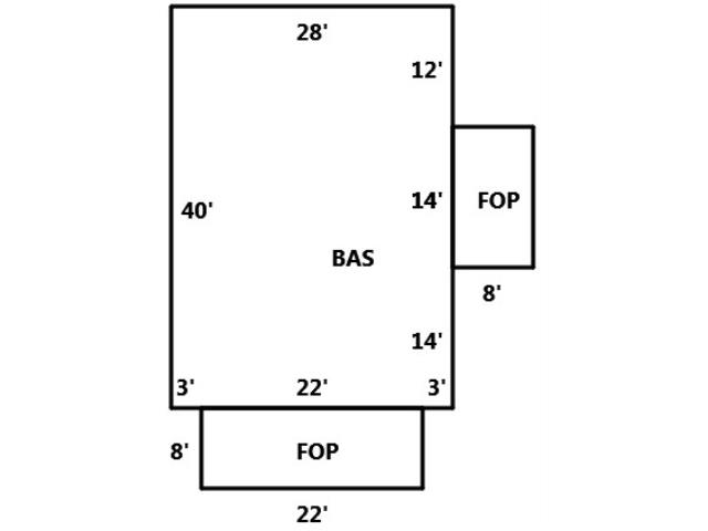
TYPE GS AREA % RPL CS
BAS 1,120 100 148400
FOP 288 030 11395
FIREPLACE 1 - None 0
SUBAREA TOTALS 1,408   159,795
CODE QUALITY DESCRIPTION COUNT LTH WTH UNITS UNIT PRICE ORIG % COND BLDG# AYB EYB ANN DEP RATE OVR % COND OB/XF DEPR. VALUE
39 2 CANOPY   16 32 512 5.00 100 1 1970 1970 S3   20 512
39 2 CANOPY   20 32 640 5.00 100 1 1970 1970 S3   20 640
01 1 STORAG BLD   11 24 264 10.00 100 _ 2024 2024 S3   97 2561
TOTAL OB/XF VALUE 3,713
BUILDING DIMENSIONS BAS=W28S40E3E22E3N14N14N12Area:1120;FOP=E22S8W22N8Area:176;FOP=N14E8S14W8Area:112;TotalArea:1408  
LAND INFORMATION
HIGHEST AND BEST USE USE CODE LOCAL ZONING FRON TAGE DEPTH DEPTH / SIZE LND MOD COND FACT OTHER ADJUSTMENTS AND NOTES
  RF   AC   LC  TO  OT
ROAD
TYPE
LAND UNIT PRICE TOTAL LAND UNITS UNT TYP TOTAL ADJST ADJUSTED UNIT PRICE LAND VALUE OVERRIDE VALUE LAND NOTES
5010 5010   0 0 1.0000 0 1.0000
  
  25,000.00 1.000 AC 1.000 25,000.00 25000 0  
5211 5211   0 0 1.8600 0 1.0000
  
  6,000.00 1.440 AC 1.860 11,160.00 16070 0  
TOTAL MARKET LAND DATA 2.440   41,070  
TOTAL PRESENT USE DATA