WAYNE COUNTY 4/4/2026 3:25:15 PM
WIGGINS GREGORY M        WIGGINS RHONDA F WIFE Return/Appeal Notes:   Parcel: 2583167168
1370 N BREAZEALE AVE PLAT: / UNIQ ID 8708
734803     ID NO: 02H14000004003B
COUNTYWIDE ADVALOREM TAX (100), FIRE - WAYLIN (100)        CARD NO. 1 of 1  
Reval Year: 2025 Tax Year: 2026 N BREAZEALE AV 0.9900 AC   SRC=  
Appraised by 60 on 06/10/2010 02910 MOUNT OLIVE AREA TW-02 CI-00 FR-26 EX- AT- LAST ACTION 20230720
CONSTRUCTION DETAIL MARKET VALUE   DEPRECIATION CORRELATION OF VALUE
Foundation - 3
Continuous Footing 5.00
Sub Floor System - 5
Woo w/ Sub Floor 6.00
Exterior Walls - 05
Asbestos Shingle 30.00
Roofing Structure - 03
Gable 4.00
Roofing Cover - 03
Asphalt or Comp Shingle 4.00
Interior Wall Construction - 4
Plywood Panel 22.00
Interior Floor Cover - 08
Sheet Vinyl 8.00
Interior Floor Cover - 09
Pine or Soft Woods 0.00
Heating Fuel - 03
Gas 1.00
Heating Type - 03
Forced Air-Not Ducted 1.00
Air Conditioning Type - 01
None 0.00
Bedrooms/Bathrooms/Half-Bathrooms
3/1/0 8.000
Bedrooms
BAS - 3 FUS - 0 LL - 0 _
Bathrooms
BAS - 1 FUS - 0 LL - 0 _
Half-Bathrooms
BAS - 0 FUS - 0 LL - 0 _
Office
BAS - 0 FUS - 0 LL - 0 0
TOTAL POINT VALUE 89.000
BUILDING ADJUSTMENTS
Quality 3 Below Average 0.9000
Shape/Design 1 Market Adjustment 1.0000
Size Size Size 1.0500
TOTAL ADJUSTMENT FACTOR 0.950
TOTAL QUALITY INDEX 84
USE MOD Eff. Area QUAL BASE RATE RCN EYB AYB
 AP  Additional Physical  0.30000
   Standard  0.70000
CREDENCE TO MARKET
50 01 1,162 84 105.00 122010 1940 1920 % GOOD 1.0
DEPR. BUILDING VALUE - CARD 1,220
TYPE: RURAL SINGLE FAMILY RESIDENTIAL Single Family Residential
STYLE: 1 - 1.0 Story
 

Click on image to enlarge
DEPR. OB/XF VALUE - CARD 1,920
MARKET LAND VALUE - CARD 25,000
TOTAL MARKET VALUE - CARD 28,140
TOTAL APPRAISED VALUE - CARD 28,140
TOTAL APPRAISED VALUE - PARCEL 28,140
TOTAL PRESENT USE VALUE - PARCEL 0
TOTAL VALUE DEFERRED - PARCEL 0
TOTAL TAXABLE VALUE - PARCEL $ 28,140
PRIOR
BUILDING VALUE 780
OBXF VALUE 1,470
LAND VALUE 17,000
PRESENT USE VALUE 0
DEFERRED VALUE 0
TOTAL VALUE 19,250
PERMIT
CODE DATE NOTE NUMBER AMOUNT
ROUT: WTRSHD:
SALES DATA
OFF. RECORD DATE DEED TYPE Q/U V/I INDICATE SALES PRICE
BOOK PAGE MO YR
02967 0837 10 2012 WD Q I 20500
01397 0154 10 1993 WD U I 22000
01354 0201 11 1992 WD U I 0
01287 0762 3 1991 WD U I 30000
HEATED AREA 1,140
NOTES
VACANT SINCE 2008. POOR COND. 2011-FOR SALE $20K

ADJUSTED VALUE FOR 2012
SUBAREA
TYPE GS AREA % RPL CS
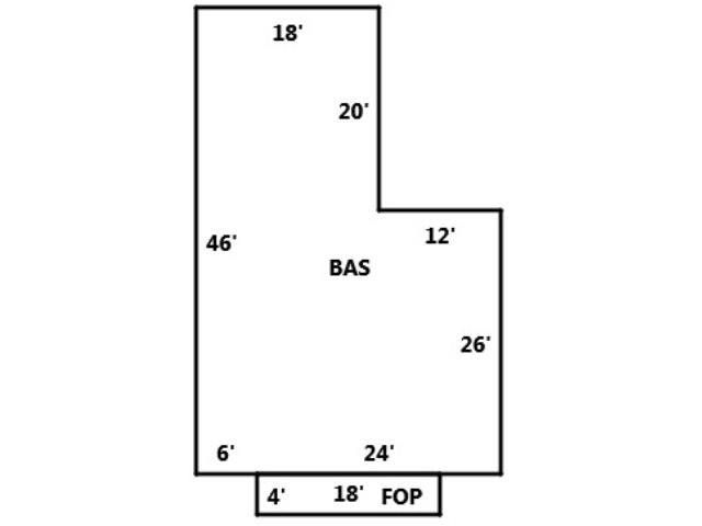
BAS 1,140 100 119700
FOP 72 030 2310
FIREPLACE 1 - None 0
SUBAREA TOTALS 1,212   122,010
CODE QUALITY DESCRIPTION COUNT LTH WTH UNITS UNIT PRICE ORIG % COND BLDG# AYB EYB ANN DEP RATE OVR % COND OB/XF DEPR. VALUE
01 2 STORAG BLD   12 16 192 20.00 100 1 1970 1970 S3   10 384
01 2 STORAG BLD   20 36 720 20.00 100 1 1970 1970 S3   10 1440
    POL SHELT   0 0 1 100.00 100 1 1900 1900 0   100 100
TOTAL OB/XF VALUE 1,924
BUILDING DIMENSIONS BAS=W18S46E6E24N26W12N20Area:1140;FOP=S4E18N4W18Area:72;TotalArea:1212  
LAND INFORMATION
HIGHEST AND BEST USE USE CODE LOCAL ZONING FRON TAGE DEPTH DEPTH / SIZE LND MOD COND FACT OTHER ADJUSTMENTS AND NOTES
  RF   AC   LC  TO  OT
ROAD
TYPE
LAND UNIT PRICE TOTAL LAND UNITS UNT TYP TOTAL ADJST ADJUSTED UNIT PRICE LAND VALUE OVERRIDE VALUE LAND NOTES
5010 5010   0 0 1.0000 0 1.0000
  .99AC
  25,000.00 1.000 LT 1.000 25,000.00 25000 0  
TOTAL MARKET LAND DATA     25,000  
TOTAL PRESENT USE DATA