WAYNE COUNTY 4/4/2026 3:23:52 PM
WIGGINS GORDON WAYNE & W MARIE   Return/Appeal Notes:   Parcel: 2562370092
1873 THUNDER SWAMP RD PLAT: / UNIQ ID 3038
639100     ID NO: 02J12000003002
COUNTYWIDE ADVALOREM TAX (100), FIRE - SMITH CHAPEL (100), SW FFEEFEE (1)        CARD NO. 1 of 1  
Reval Year: 2025 Tax Year: 2026 1873 THUNDER SWAMP RD 1.0000 AC   SRC=  
Appraised by 60 on 06/10/2010 02909 BROGDEN TW-02 CI-00 FR-14 EX- AT- LAST ACTION 20230720
CONSTRUCTION DETAIL MARKET VALUE   DEPRECIATION CORRELATION OF VALUE
Foundation - 3
Continuous Footing 5.00
Sub Floor System - 5
Woo w/ Sub Floor 6.00
Exterior Walls - 21
Face Brick 34.00
Roofing Structure - 03
Gable 4.00
Roofing Cover - 03
Asphalt or Comp Shingle 4.00
Interior Wall Construction - 5
Drywall/Sheetrock 27.00
Interior Floor Cover - 08
Sheet Vinyl 9.00
Interior Floor Cover - 14
Carpet 0.00
Heating Fuel - 04
Electric 1.00
Heating Type - 04
Forced Air-Ducted 4.00
Air Conditioning Type - 03
Central 4.00
Bedrooms/Bathrooms/Half-Bathrooms
3/1/1 10.000
Bedrooms
BAS - 3 FUS - 0 LL - 0 _
Bathrooms
BAS - 1 FUS - 0 LL - 0 _
Half-Bathrooms
BAS - 1 FUS - 0 LL - 0 _
Office
BAS - 0 FUS - 0 LL - 0 0
TOTAL POINT VALUE 108.000
BUILDING ADJUSTMENTS
Quality 5 Average 1.0000
Shape/Design 1 Market Adjustment 1.0000
Size Size Size 1.0000
TOTAL ADJUSTMENT FACTOR 1.000
TOTAL QUALITY INDEX 108
USE MOD Eff. Area QUAL BASE RATE RCN EYB AYB
   Standard  0.46000
CREDENCE TO MARKET
50 01 1,388 108 135.00 187380 1979 1969 % GOOD 54.0
DEPR. BUILDING VALUE - CARD 101,190
TYPE: RURAL SINGLE FAMILY RESIDENTIAL Single Family Residential
STYLE: 1 - 1.0 Story
 

Click on image to enlarge
DEPR. OB/XF VALUE - CARD 380
MARKET LAND VALUE - CARD 25,000
TOTAL MARKET VALUE - CARD 126,570
TOTAL APPRAISED VALUE - CARD 126,570
TOTAL APPRAISED VALUE - PARCEL 126,570
TOTAL PRESENT USE VALUE - PARCEL 0
TOTAL VALUE DEFERRED - PARCEL 0
TOTAL TAXABLE VALUE - PARCEL $ 126,570
PRIOR
BUILDING VALUE 71,950
OBXF VALUE 290
LAND VALUE 16,000
PRESENT USE VALUE 0
DEFERRED VALUE 0
TOTAL VALUE 88,240
PERMIT
CODE DATE NOTE NUMBER AMOUNT
ROUT: WTRSHD:
SALES DATA
OFF. RECORD DATE DEED TYPE Q/U V/I INDICATE SALES PRICE
BOOK PAGE MO YR
02582 0254 12 2007 WD U I 80000
01780 0230 5 2000 WD U I 0
00995 0000 1 1901 WD U V 0
00995 0000 1 1901 WD U V 0
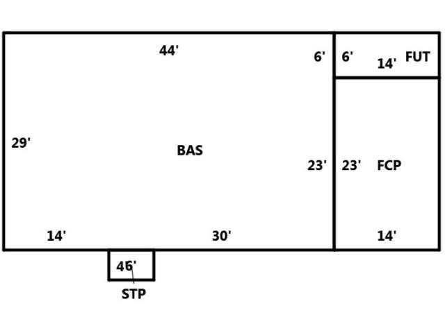
HEATED AREA 1,276
NOTES
 
SUBAREA
TYPE GS AREA % RPL CS
BAS 1,276 100 172260
FCP 322 025 10935
FUT 84 035 3915
STP 24 010 270
FIREPLACE 1 - None 0
SUBAREA TOTALS 1,706   187,380
CODE QUALITY DESCRIPTION COUNT LTH WTH UNITS UNIT PRICE ORIG % COND BLDG# AYB EYB ANN DEP RATE OVR % COND OB/XF DEPR. VALUE
01 2 STORAG BLD   12 16 192 20.00 100 1 1972 1972 S3   10 384
TOTAL OB/XF VALUE 384
BUILDING DIMENSIONS BAS=W44S29E14E30N23N6Area:1276;STP=S4E6N4W6Area:24;FCP=E14N23W14S23Area:322;FUT=E14N6W14S6Area:84;TotalArea:1706  
LAND INFORMATION
HIGHEST AND BEST USE USE CODE LOCAL ZONING FRON TAGE DEPTH DEPTH / SIZE LND MOD COND FACT OTHER ADJUSTMENTS AND NOTES
  RF   AC   LC  TO  OT
ROAD
TYPE
LAND UNIT PRICE TOTAL LAND UNITS UNT TYP TOTAL ADJST ADJUSTED UNIT PRICE LAND VALUE OVERRIDE VALUE LAND NOTES
5010 5010   0 0 1.0000 0 1.0000     25,000.00 1.000 AC 1.000 25,000.00 25000 0  
TOTAL MARKET LAND DATA 1.000   25,000  
TOTAL PRESENT USE DATA