WAYNE COUNTY 4/2/2026 2:22:28 AM
PITTMAN GEORGE RANDALL   Return/Appeal Notes:   Parcel: 2685128713
120 JOE MORRIS RD PLAT: / UNIQ ID 40276
252330     ID NO: 09H02000005013
COUNTYWIDE ADVALOREM TAX (100), FIRE - NAHUNTA (100), SW FFEEFEE (1)        CARD NO. 1 of 1  
Reval Year: 2025 Tax Year: 2026 JOE MORRIS RD 1997-573 1.0000 LT   SRC=  
Appraised by 88 on 11/17/2010 09902 GREATSWAMP WEST SIDE TW-09 CI-00 FR-09 EX- AT- LAST ACTION 20230731
CONSTRUCTION DETAIL MARKET VALUE   DEPRECIATION CORRELATION OF VALUE
Foundation - 3
Continuous Footing 5.00
Sub Floor System - 5
Woo w/ Sub Floor 6.00
Exterior Walls - 11
Concrete Block 22.00
Roofing Structure - 03
Gable 4.00
Roofing Cover - 12
Modular Metal 4.00
Interior Wall Construction - 5
Drywall/Sheetrock 27.00
Interior Floor Cover - 09
Pine or Soft Woods 7.00
Heating Fuel - 04
Electric 1.00
Heating Type - 10
Heat Pump 4.00
Air Conditioning Type - 03
Central 4.00
Bedrooms/Bathrooms/Half-Bathrooms
2/1/0 6.000
Bedrooms
BAS - 2 FUS - 0 LL - 0 _
Bathrooms
BAS - 1 FUS - 0 LL - 0 _
Half-Bathrooms
BAS - 0 FUS - 0 LL - 0 _
Office
BAS - 0 FUS - 0 LL - 0 0
TOTAL POINT VALUE 90.000
BUILDING ADJUSTMENTS
Quality 5 Average 1.0000
Shape/Design 5 Market Adjustment 1.0800
Size Size Size 1.0000
TOTAL ADJUSTMENT FACTOR 1.080
TOTAL QUALITY INDEX 97
USE MOD Eff. Area QUAL BASE RATE RCN EYB AYB
   Standard  0.25000
CREDENCE TO MARKET
50 01 1,355 97 121.25 164294 2000 1920 % GOOD 75.0
DEPR. BUILDING VALUE - CARD 123,220
TYPE: RURAL SINGLE FAMILY RESIDENTIAL Single Family Residential
STYLE: 1 - 1.0 Story
 

Click on image to enlarge
DEPR. OB/XF VALUE - CARD 0
MARKET LAND VALUE - CARD 15,600
TOTAL MARKET VALUE - CARD 138,820
TOTAL APPRAISED VALUE - CARD 138,820
TOTAL APPRAISED VALUE - PARCEL 138,820
TOTAL PRESENT USE VALUE - PARCEL 0
TOTAL VALUE DEFERRED - PARCEL 0
TOTAL TAXABLE VALUE - PARCEL $ 138,820
PRIOR
BUILDING VALUE 85,170
OBXF VALUE 0
LAND VALUE 9,600
PRESENT USE VALUE 0
DEFERRED VALUE 0
TOTAL VALUE 94,770
PERMIT
CODE DATE NOTE NUMBER AMOUNT
ROUT: WTRSHD:
SALES DATA
OFF. RECORD DATE DEED TYPE Q/U V/I INDICATE SALES PRICE
BOOK PAGE MO YR
03672 0809 10 2021 WD C I 0
01182 0431 11 1987 WD U I 0
0099E 0801 1 1999 WD U I 0
HEATED AREA 1,336
NOTES
P3-21 RENOV $25K. FIELD CK 3/22-STILL WORKING. 12
/22-TOTAL INSIDE/OUT RENOVATION FOR 2023 COMPLT.
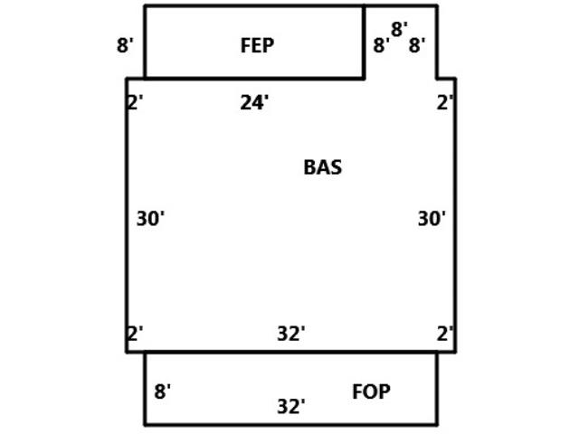
SUBAREA
TYPE GS AREA % RPL CS
BAS 1,144 100 138710
FEP 192 070 16248
FOP 256 030 9336
FIREPLACE 1 - None 0
SUBAREA TOTALS 1,592   164,294
CODE QUALITY DESCRIPTION COUNT LTH WTH UNITS UNIT PRICE ORIG % COND BLDG# AYB EYB ANN DEP RATE OVR % COND OB/XF DEPR. VALUE
    SHEDS NV   12 15 2 0.00 100 1 1900 1900 0   100 0
TOTAL OB/XF VALUE 0
BUILDING DIMENSIONS BAS=W2N8W8S8W24W2S30E2E32E2N30Area:1144;FEP=W24N8E24S8Area:192;FOP=S8E32N8W32Area:256;TotalArea:1592  
LAND INFORMATION
HIGHEST AND BEST USE USE CODE LOCAL ZONING FRON TAGE DEPTH DEPTH / SIZE LND MOD COND FACT OTHER ADJUSTMENTS AND NOTES
  RF   AC   LC  TO  OT
ROAD
TYPE
LAND UNIT PRICE TOTAL LAND UNITS UNT TYP TOTAL ADJST ADJUSTED UNIT PRICE LAND VALUE OVERRIDE VALUE LAND NOTES
5010 5010   0 0 1.0000 0 0.6000
  .30AC
  26,000.00 1.000 LT 0.600 15,600.00 15600    
TOTAL MARKET LAND DATA     15,600  
TOTAL PRESENT USE DATA