WAYNE COUNTY 4/4/2026 3:26:21 PM
WIGGINS DOUGLAS GLENN   Return/Appeal Notes:   Parcel: 3517261620
299 C R LEWIS DAIRY RD PLAT: / UNIQ ID 17655
668280     ID NO: 04E09000005004
COUNTYWIDE ADVALOREM TAX (100), FIRE - ELROY (100), SW FFEEFEE (1)        CARD NO. 1 of 1  
Reval Year: 2025 Tax Year: 2026 299 C R LEWIS DAIRY RD 1.0000 LT   SRC=  
Appraised by 60 on 07/28/2010 04901 NEW HOPE WEST TW-04 CI-00 FR-18 EX- AT- LAST ACTION 20230822
CONSTRUCTION DETAIL MARKET VALUE   DEPRECIATION CORRELATION OF VALUE
Foundation - 3
Continuous Footing 5.00
Sub Floor System - 5
Woo w/ Sub Floor 6.00
Exterior Walls - 10
Aluminum/Vinyl Siding 30.00
Roofing Structure - 03
Gable 4.00
Roofing Cover - 03
Asphalt or Comp Shingle 4.00
Interior Wall Construction - 4
Plywood Panel 22.00
Interior Floor Cover - 08
Sheet Vinyl 9.00
Interior Floor Cover - 14
Carpet 0.00
Heating Fuel - 04
Electric 1.00
Heating Type - 10
Heat Pump 4.00
Air Conditioning Type - 03
Central 4.00
Bedrooms/Bathrooms/Half-Bathrooms
2/1/0 6.000
Bedrooms
BAS - 2 FUS - 0 LL - 0 _
Bathrooms
BAS - 1 FUS - 0 LL - 0 _
Half-Bathrooms
BAS - 0 FUS - 0 LL - 0 _
Office
BAS - 0 FUS - 0 LL - 0 0
TOTAL POINT VALUE 95.000
BUILDING ADJUSTMENTS
Quality 5 Average 1.0000
Shape/Design 1 Market Adjustment 1.0000
Size Size Size 1.0500
TOTAL ADJUSTMENT FACTOR 1.050
TOTAL QUALITY INDEX 100
USE MOD Eff. Area QUAL BASE RATE RCN EYB AYB
   Standard  0.65000
CREDENCE TO MARKET
50 01 1,230 100 125.00 153750 1960 1946 % GOOD 35.0
DEPR. BUILDING VALUE - CARD 53,810
TYPE: RURAL SINGLE FAMILY RESIDENTIAL Single Family Residential
STYLE: 1 - 1.0 Story
 

Click on image to enlarge
DEPR. OB/XF VALUE - CARD 1,100
MARKET LAND VALUE - CARD 28,000
TOTAL MARKET VALUE - CARD 82,910
TOTAL APPRAISED VALUE - CARD 82,910
TOTAL APPRAISED VALUE - PARCEL 82,910
TOTAL PRESENT USE VALUE - PARCEL 0
TOTAL VALUE DEFERRED - PARCEL 0
TOTAL TAXABLE VALUE - PARCEL $ 82,910
PRIOR
BUILDING VALUE 40,340
OBXF VALUE 620
LAND VALUE 19,000
PRESENT USE VALUE 0
DEFERRED VALUE 0
TOTAL VALUE 59,960
PERMIT
CODE DATE NOTE NUMBER AMOUNT
ROUT: WTRSHD:
SALES DATA
OFF. RECORD DATE DEED TYPE Q/U V/I INDICATE SALES PRICE
BOOK PAGE MO YR
02688 0772 3 2009 WD U I 15000
00853 0791 1 1974 WD U I 0
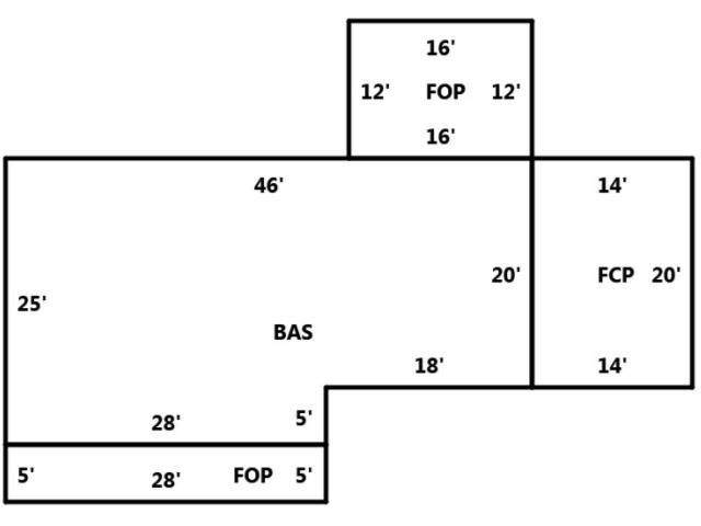
HEATED AREA 1,060
NOTES
THIS HAS BEEN REMODELED NEW CONSTRUCTION ON HOME
SUBAREA
TYPE GS AREA % RPL CS
BAS 1,060 100 132500
FCP 280 025 8750
FOP 332 030 12500
FIREPLACE 1 - None 0
SUBAREA TOTALS 1,672   153,750
CODE QUALITY DESCRIPTION COUNT LTH WTH UNITS UNIT PRICE ORIG % COND BLDG# AYB EYB ANN DEP RATE OVR % COND OB/XF DEPR. VALUE
39 1 CANOPY   26 18 468 4.00 100 1 1985 1985 S3   20 374
24 1 SHED (OPEN ENDED)   28 26 728 10.00 100 1 1980 1980 S3   10 728
TOTAL OB/XF VALUE 1,102
BUILDING DIMENSIONS BAS=W46S25E28N5E18N20Area:1060;FOP=S5E28N5W28Area:140;FCP=E14N20W14S20Area:280;FOP=N12W16S12E16Area:192;TotalArea:1672  
LAND INFORMATION
HIGHEST AND BEST USE USE CODE LOCAL ZONING FRON TAGE DEPTH DEPTH / SIZE LND MOD COND FACT OTHER ADJUSTMENTS AND NOTES
  RF   AC   LC  TO  OT
ROAD
TYPE
LAND UNIT PRICE TOTAL LAND UNITS UNT TYP TOTAL ADJST ADJUSTED UNIT PRICE LAND VALUE OVERRIDE VALUE LAND NOTES
5010 5010   0 0 1.0000 0 1.0000     28,000.00 1.000 AC 1.000 28,000.00 28000    
TOTAL MARKET LAND DATA 1.000   28,000  
TOTAL PRESENT USE DATA