WAYNE COUNTY 4/4/2026 3:24:49 PM
WIGGINS GREGORY M        WIGGINS RHONDA F WIFE Return/Appeal Notes:   Parcel: 2583168513
1406 N BREAZEALE AVE PLAT: / UNIQ ID 8709
734803     ID NO: 02H14000004002
COUNTYWIDE ADVALOREM TAX (100), FIRE - WAYLIN (100), SW FFEEFEE (1)        CARD NO. 1 of 1  
Reval Year: 2025 Tax Year: 2026 1406 N BREAZEALE AV 1.2800 AC   SRC=  
Appraised by 60 on 06/10/2010 02910 MOUNT OLIVE AREA TW-02 CI-00 FR-26 EX- AT- LAST ACTION 20230720
CONSTRUCTION DETAIL MARKET VALUE   DEPRECIATION CORRELATION OF VALUE
Foundation - 3
Continuous Footing 5.00
Sub Floor System - 5
Woo w/ Sub Floor 6.00
Exterior Walls - 21
Face Brick 34.00
Roofing Structure - 03
Gable 4.00
Roofing Cover - 03
Asphalt or Comp Shingle 4.00
Interior Wall Construction - 4
Plywood Panel 24.00
Interior Wall Construction - 5
Drywall/Sheetrock 0.00
Interior Floor Cover - 08
Sheet Vinyl 9.00
Interior Floor Cover - 14
Carpet 0.00
Heating Fuel - 04
Electric 1.00
Heating Type - 10
Heat Pump 4.00
Air Conditioning Type - 03
Central 4.00
Bedrooms/Bathrooms/Half-Bathrooms
3/1/1 10.000
Bedrooms
BAS - 3 FUS - 0 LL - 0 _
Bathrooms
BAS - 1 FUS - 0 LL - 0 _
Half-Bathrooms
BAS - 1 FUS - 0 LL - 0 _
Office
BAS - 0 FUS - 0 LL - 0 0
TOTAL POINT VALUE 105.000
BUILDING ADJUSTMENTS
Quality 5 Average 1.0000
Shape/Design 1 Market Adjustment 1.0000
Size Size Size 1.0000
TOTAL ADJUSTMENT FACTOR 1.000
TOTAL QUALITY INDEX 105
USE MOD Eff. Area QUAL BASE RATE RCN EYB AYB
   Standard  0.50000
CREDENCE TO MARKET
50 01 1,284 105 131.25 170526 1975 1960 % GOOD 50.0
DEPR. BUILDING VALUE - CARD 85,260
TYPE: RURAL SINGLE FAMILY RESIDENTIAL Single Family Residential
STYLE: 1 - 1.0 Story
 

Click on image to enlarge
DEPR. OB/XF VALUE - CARD 6,000
MARKET LAND VALUE - CARD 32,000
TOTAL MARKET VALUE - CARD 123,260
TOTAL APPRAISED VALUE - CARD 123,260
TOTAL APPRAISED VALUE - PARCEL 123,260
TOTAL PRESENT USE VALUE - PARCEL 0
TOTAL VALUE DEFERRED - PARCEL 0
TOTAL TAXABLE VALUE - PARCEL $ 123,260
PRIOR
BUILDING VALUE 61,520
OBXF VALUE 4,800
LAND VALUE 21,760
PRESENT USE VALUE 0
DEFERRED VALUE 0
TOTAL VALUE 88,080
PERMIT
CODE DATE NOTE NUMBER AMOUNT
ROUT: WTRSHD:
SALES DATA
OFF. RECORD DATE DEED TYPE Q/U V/I INDICATE SALES PRICE
BOOK PAGE MO YR
03760 0529 8 2022 WD Q I 76000
01331 0572 5 1992 WD U I 75000
00842 0626 1 1901 WD U I 0
HEATED AREA 1,300
NOTES
P8-88 R/M- NVE
SUBAREA
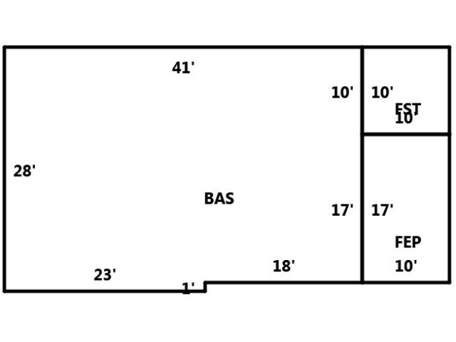
TYPE GS AREA % RPL CS
BAS 1,130 100 148313
FEP 170 070 15619
FST 100 035 4594
FIREPLACE 3 - 1 Story Single 2,000
SUBAREA TOTALS 1,400   170,526
CODE QUALITY DESCRIPTION COUNT LTH WTH UNITS UNIT PRICE ORIG % COND BLDG# AYB EYB ANN DEP RATE OVR % COND OB/XF DEPR. VALUE
02 2 GARAGE   30 40 1,200 25.00 100 1 1988 1988 S3   20 6000
TOTAL OB/XF VALUE 6,000
BUILDING DIMENSIONS BAS=W41S28E23N1E18N17N10Area:1130;FEP=E10N17W10S17Area:170;FST=E10N10W10S10Area:100;TotalArea:1400  
LAND INFORMATION
HIGHEST AND BEST USE USE CODE LOCAL ZONING FRON TAGE DEPTH DEPTH / SIZE LND MOD COND FACT OTHER ADJUSTMENTS AND NOTES
  RF   AC   LC  TO  OT
ROAD
TYPE
LAND UNIT PRICE TOTAL LAND UNITS UNT TYP TOTAL ADJST ADJUSTED UNIT PRICE LAND VALUE OVERRIDE VALUE LAND NOTES
5010 5010   0 0 1.0000 0 1.0000     25,000.00 1.280 AC 1.000 25,000.00 32000    
TOTAL MARKET LAND DATA 1.280   32,000  
TOTAL PRESENT USE DATA