WAYNE COUNTY 4/2/2026 5:18:46 AM
BRITT BILLY EARL        BRITT HARRY LEE SR HEIRS Return/Appeal Notes:   Parcel: 3631754004
3576 N US 13 HWY PLAT: / UNIQ ID 25966
743484     ID NO: 05B06000001002
COUNTYWIDE ADVALOREM TAX (100), FIRE - SAULSTON (100)        CARD NO. 1 of 1  
Reval Year: 2025 Tax Year: 2026 3675 N US 13 HY 1.0000 AC   SRC=  
Appraised by 88 on 08/25/2010 05907 SAULSTON EAST TW-05 CI-00 FR-10 EX- AT- LAST ACTION 20230724
CONSTRUCTION DETAIL MARKET VALUE   DEPRECIATION CORRELATION OF VALUE
Foundation - 3
Continuous Footing 5.00
Sub Floor System - 2
Slab on Grade 4.00
Exterior Walls - 21
Face Brick 34.00
Roofing Structure - 03
Gable 4.00
Roofing Cover - 03
Asphalt or Comp Shingle 4.00
Interior Wall Construction - 5
Drywall/Sheetrock 27.00
Interior Floor Cover - 08
Sheet Vinyl 9.00
Interior Floor Cover - 14
Carpet 0.00
Heating Fuel - 02
Oil, Wood, or Coal 1.00
Heating Type - 03
Forced Air-Not Ducted 1.00
Air Conditioning Type - 01
None 0.00
Bedrooms/Bathrooms/Half-Bathrooms
3/1/0 8.000
Bedrooms
BAS - 3 FUS - 0 LL - 0 _
Bathrooms
BAS - 1 FUS - 0 LL - 0 _
Half-Bathrooms
BAS - 0 FUS - 0 LL - 0 _
Office
BAS - 0 FUS - 0 LL - 0 0
TOTAL POINT VALUE 97.000
BUILDING ADJUSTMENTS
Quality 3 Below Average 0.9000
Shape/Design 1 Market Adjustment 1.0000
Size Size Size 0.9500
TOTAL ADJUSTMENT FACTOR 0.860
TOTAL QUALITY INDEX 83
USE MOD Eff. Area QUAL BASE RATE RCN EYB AYB
 AP  Additional Physical  0.51000
   Standard  0.70000
CREDENCE TO MARKET
50 01 2,112 83 103.75 219120 1951 1951 % GOOD 1.0
DEPR. BUILDING VALUE - CARD 2,190
TYPE: RURAL SINGLE FAMILY RESIDENTIAL Single Family Residential
STYLE: 1 - 1.0 Story
 

Click on image to enlarge
DEPR. OB/XF VALUE - CARD 0
MARKET LAND VALUE - CARD 26,000
TOTAL MARKET VALUE - CARD 28,190
TOTAL APPRAISED VALUE - CARD 28,190
TOTAL APPRAISED VALUE - PARCEL 28,190
TOTAL PRESENT USE VALUE - PARCEL 0
TOTAL VALUE DEFERRED - PARCEL 0
TOTAL TAXABLE VALUE - PARCEL $ 28,190
PRIOR
BUILDING VALUE 1,400
OBXF VALUE 0
LAND VALUE 17,000
PRESENT USE VALUE 0
DEFERRED VALUE 0
TOTAL VALUE 18,400
PERMIT
CODE DATE NOTE NUMBER AMOUNT
ROUT: WTRSHD:
SALES DATA
OFF. RECORD DATE DEED TYPE Q/U V/I INDICATE SALES PRICE
BOOK PAGE MO YR
02337 0038 7 2005 WD U I 0
00327 0003 1 1901 WD U V 0
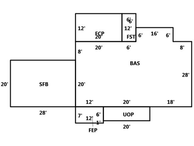
HEATED AREA 2,140
NOTES
RECORDED YEAR 1948 HSE VERY POOR CNDTN
SUBAREA
TYPE GS AREA % RPL CS
BAS 1,496 100 155210
FCP 240 025 6225
FEP 84 070 6121
FST 72 035 2594
SFB 560 080 46480
UOP 120 020 2490
FIREPLACE 1 - None 0
SUBAREA TOTALS 2,572   219,120
CODE QUALITY DESCRIPTION COUNT LTH WTH UNITS UNIT PRICE ORIG % COND BLDG# AYB EYB ANN DEP RATE OVR % COND OB/XF DEPR. VALUE
    GRNHSE NV   0 0 1 0.00 100 1 1900 1900 0   100 0
    GRNHSE NV   0 0 1 0.00 100 1 1900 1900 0   100 0
TOTAL OB/XF VALUE 0
BUILDING DIMENSIONS BAS=W8N6W16S6W6W20S8S20E12E20E18N28Area:1496;FST=N6W6S12E6N6Area:72;FCP=W20S12E20N12Area:240;SFB=S20W28N20E28Area:560;FE EP=S7E12N1N6W12Area:84;UOP=N6E20S6W20Area:120;TotalArea:2572  
LAND INFORMATION
HIGHEST AND BEST USE USE CODE LOCAL ZONING FRON TAGE DEPTH DEPTH / SIZE LND MOD COND FACT OTHER ADJUSTMENTS AND NOTES
  RF   AC   LC  TO  OT
ROAD
TYPE
LAND UNIT PRICE TOTAL LAND UNITS UNT TYP TOTAL ADJST ADJUSTED UNIT PRICE LAND VALUE OVERRIDE VALUE LAND NOTES
5010 5010   0 0 1.0000 0 1.0000     26,000.00 1.000 AC 1.000 26,000.00 26000 0  
TOTAL MARKET LAND DATA 1.000   26,000  
TOTAL PRESENT USE DATA