WAYNE COUNTY 4/5/2026 2:01:00 AM
SUGGS MATTIE B   Return/Appeal Notes:   Parcel: 3529456266
207 WATERS CIR PLAT: / UNIQ ID 20675
324640     ID NO: 04D07054001048
COUNTYWIDE ADVALOREM TAX (100), CITY - GOLDSBORO (100)        CARD NO. 1 of 1  
Reval Year: 2025 Tax Year: 2026 LT 48 TIFFANY GARDENS #3 SURV 1.0000 LT   SRC=  
Appraised by 88 on 07/28/2010 04054 TIFFANY GARDENS &4 TW-04 CI-01 FR-00 EX- AT- LAST ACTION 20240124
CONSTRUCTION DETAIL MARKET VALUE   DEPRECIATION CORRELATION OF VALUE
Foundation - 3
Continuous Footing 5.00
Sub Floor System - 2
Slab on Grade 4.00
Exterior Walls - 21
Face Brick 34.00
Roofing Structure - 03
Gable 4.00
Roofing Cover - 03
Asphalt or Comp Shingle 4.00
Interior Wall Construction - 5
Drywall/Sheetrock 27.00
Interior Floor Cover - 08
Sheet Vinyl 9.00
Interior Floor Cover - 14
Carpet 0.00
Heating Fuel - 04
Electric 1.00
Heating Type - 10
Heat Pump 4.00
Air Conditioning Type - 03
Central 4.00
Bedrooms/Bathrooms/Half-Bathrooms
3/2/0 12.000
Bedrooms
BAS - 3 FUS - 0 LL - 0 _
Bathrooms
BAS - 2 FUS - 0 LL - 0 _
Half-Bathrooms
BAS - 0 FUS - 0 LL - 0 _
Office
BAS - 0 FUS - 0 LL - 0 0
TOTAL POINT VALUE 108.000
BUILDING ADJUSTMENTS
Quality 5 Average 1.0000
Shape/Design 3 Market Adjustment 1.0400
Size Size Size 0.9800
TOTAL ADJUSTMENT FACTOR 1.020
TOTAL QUALITY INDEX 110
USE MOD Eff. Area QUAL BASE RATE RCN EYB AYB
   Standard  0.38000
CREDENCE TO MARKET
50 01 2,013 110 137.50 278789 1987 1987 % GOOD 62.0
DEPR. BUILDING VALUE - CARD 172,850
TYPE: RURAL SINGLE FAMILY RESIDENTIAL Single Family Residential
STYLE: 1 - 1.0 Story
 

Click on image to enlarge
DEPR. OB/XF VALUE - CARD 0
MARKET LAND VALUE - CARD 25,000
TOTAL MARKET VALUE - CARD 197,850
TOTAL APPRAISED VALUE - CARD 197,850
TOTAL APPRAISED VALUE - PARCEL 197,850
TOTAL PRESENT USE VALUE - PARCEL 0
TOTAL VALUE DEFERRED - PARCEL 0
TOTAL TAXABLE VALUE - PARCEL $ 197,850
PRIOR
BUILDING VALUE 121,820
OBXF VALUE 0
LAND VALUE 16,000
PRESENT USE VALUE 0
DEFERRED VALUE 0
TOTAL VALUE 137,820
PERMIT
CODE DATE NOTE NUMBER AMOUNT
ROUT: WTRSHD:
SALES DATA
OFF. RECORD DATE DEED TYPE Q/U V/I INDICATE SALES PRICE
BOOK PAGE MO YR
01167 0122 5 1987 WD U I 88500
01152 0765 1 1986 WD U I 7000
HEATED AREA 1,706
NOTES
SEE TRAVERSE NOTES
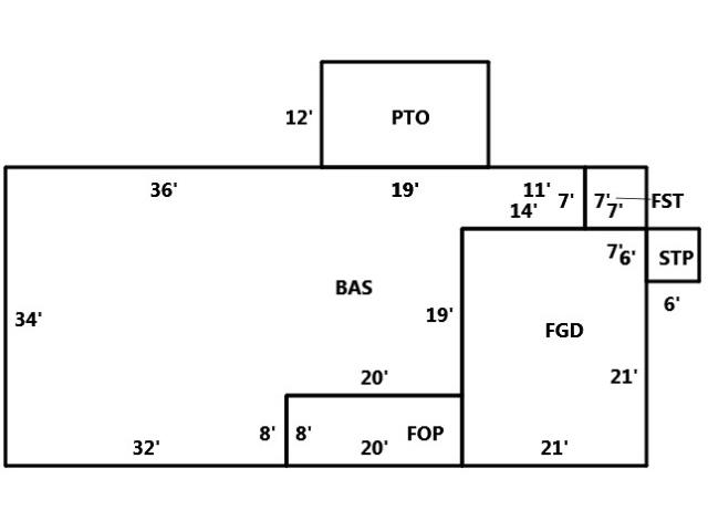
SUBAREA
TYPE GS AREA % RPL CS
BAS 1,706 100 234575
FGD 567 040 31213
FOP 160 030 6600
FST 49 035 2338
PTO 228 005 1513
STP 36 010 550
FIREPLACE 3 - 1 Story Single 2,000
SUBAREA TOTALS 2,746   278,789
CODE QUALITY DESCRIPTION COUNT LTH WTH UNITS UNIT PRICE ORIG % COND BLDG# SIZE FACT AYB EYB ANN DEP RATE OVR % COND OB/XF DEPR. VALUE
TOTAL OB/XF VALUE 0
BUILDING DIMENSIONS BAS=W11W19W36S34E32N8E20N19E14N7Area:1706;PTO=W19N12E19S12Area:228;FOP=E20N8W20S8Area:160;FGD=E21N21N6W7W14S19S8Area:567 7;STP=N6E6S6W6Area:36;FST=N7W7S7E7Area:49;TotalArea:2746 $38,000 EXEMPTION PRIOR TO 1998
LAND INFORMATION
HIGHEST AND BEST USE USE CODE LOCAL ZONING FRON TAGE DEPTH DEPTH / SIZE LND MOD COND FACT OTHER ADJUSTMENTS AND NOTES
  RF   AC   LC  TO  OT
ROAD
TYPE
LAND UNIT PRICE TOTAL LAND UNITS UNT TYP TOTAL ADJST ADJUSTED UNIT PRICE LAND VALUE OVERRIDE VALUE LAND NOTES
5010 5010   0 0 1.0000 0 1.0000     25,000.00 1.000 LT 1.000 25,000.00 25000    
TOTAL MARKET LAND DATA     25,000  
TOTAL PRESENT USE DATA