WAYNE COUNTY 4/2/2026 2:21:58 AM
PITTMAN TRACY        PITTMAN ANTHONY SPOUSE Return/Appeal Notes:   Parcel: 3635159677
312 TURNER SWAMP RD PLAT: / UNIQ ID 44526
764614      
COUNTYWIDE ADVALOREM TAX (100), SW FFEEFEE (1), FIRE - NORTH EAST WAYNE (100)        CARD NO. 1 of 1  
Reval Year: 2025 Tax Year: 2026 TURNER SWAMP RD 1.0000 LT   SRC=  
Appraised by 88 on 12/08/2010 11901 NAHUNTA EAST & NORTH SIDE TW-11 CI-00 FR-32 EX- AT- LAST ACTION 20240815
CONSTRUCTION DETAIL MARKET VALUE   DEPRECIATION CORRELATION OF VALUE
Foundation - 3
Continuous Footing 5.00
Sub Floor System - 4
PLYWOOD 6.00
Exterior Walls - 10
Aluminum/Vinyl Siding 32.00
Exterior Walls - 21
Face Brick 0.00
Roofing Structure - 03
Gable 4.00
Roofing Cover - 03
Asphalt or Comp Shingle 4.00
Interior Wall Construction - 5
Drywall/Sheetrock 27.00
Interior Floor Cover - 08
Sheet Vinyl 9.00
Interior Floor Cover - 14
Carpet 0.00
Heating Fuel - 04
Electric 1.00
Heating Type - 10
Heat Pump 4.00
Air Conditioning Type - 03
Central 4.00
Bedrooms/Bathrooms/Half-Bathrooms
3/2/1 13.000
Bedrooms
BAS - 1 FUS - 2 LL - 0 _
Bathrooms
BAS - 1 FUS - 1 LL - 0 _
Half-Bathrooms
BAS - 1 FUS - 0 LL - 0 _
Office
BAS - 0 FUS - 0 LL - 0 0
TOTAL POINT VALUE 109.000
BUILDING ADJUSTMENTS
Quality 6 Average + 1.1000
Shape/Design 1 Market Adjustment 1.0000
Size Size Size 0.9500
TOTAL ADJUSTMENT FACTOR 1.050
TOTAL QUALITY INDEX 114
USE MOD Eff. Area QUAL BASE RATE RCN EYB AYB
   Standard  0.20000
CREDENCE TO MARKET
50 01 2,818 114 142.50 402886 2005 1997 % GOOD 80.0
DEPR. BUILDING VALUE - CARD 322,310
TYPE: RURAL SINGLE FAMILY RESIDENTIAL Single Family Residential
STYLE: 2 - 1.5 Stories
 

Click on image to enlarge
DEPR. OB/XF VALUE - CARD 14,400
MARKET LAND VALUE - CARD 22,500
TOTAL MARKET VALUE - CARD 359,210
TOTAL APPRAISED VALUE - CARD 359,210
TOTAL APPRAISED VALUE - PARCEL 359,210
TOTAL PRESENT USE VALUE - PARCEL 0
TOTAL VALUE DEFERRED - PARCEL 0
TOTAL TAXABLE VALUE - PARCEL $ 359,210
PRIOR
BUILDING VALUE 209,240
OBXF VALUE 15,660
LAND VALUE 14,400
PRESENT USE VALUE 0
DEFERRED VALUE 0
TOTAL VALUE 239,300
PERMIT
CODE DATE NOTE NUMBER AMOUNT
ROUT: WTRSHD:
SALES DATA
OFF. RECORD DATE DEED TYPE Q/U V/I INDICATE SALES PRICE
BOOK PAGE MO YR
03828 0473 6 2023 WD A I 375000
03550 0019 9 2020 WD Q I 275000
01552 0028 9 1996 WD U I 10000
HEATED AREA 2,820
NOTES
FR 3635-16-6445 P5-98 NH FOR 99
P11-98 GARAGE FOR 2001 1530'
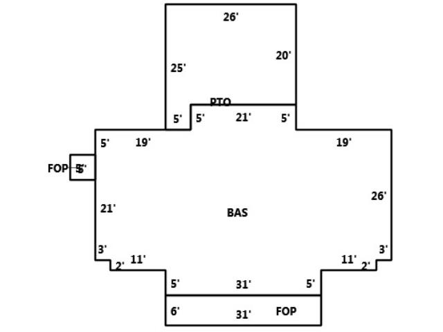
SUBAREA
TYPE GS AREA % RPL CS
BAS 1,900 100 270750
FOP 211 030 8978
FUS* 920 090 117990
PTO 545 005 3848
FIREPLACE 2 - Pre-Fab 1,320
SUBAREA TOTALS 3,576   402,886
CODE QUALITY DESCRIPTION COUNT LTH WTH UNITS UNIT PRICE ORIG % COND BLDG# AYB EYB ANN DEP RATE OVR % COND OB/XF DEPR. VALUE
02 3 GARAGE   30 30 900 40.00 100 1 1998 2005 S3   40 14400
TOTAL OB/XF VALUE 14,400
BUILDING DIMENSIONS BAS=W19N5W21S5W19S5S21E3S2E11S5E31N5E11N2E3N26Area:1900;PTO=N20W26S25E5N5E21Area:545;FOP=W5S5E5N5Area:25;FOP=S6E31N6W31A Area:186;FUS=Area:920;TotalArea:3576  
LAND INFORMATION
HIGHEST AND BEST USE USE CODE LOCAL ZONING FRON TAGE DEPTH DEPTH / SIZE LND MOD COND FACT OTHER ADJUSTMENTS AND NOTES
  RF   AC   LC  TO  OT
ROAD
TYPE
LAND UNIT PRICE TOTAL LAND UNITS UNT TYP TOTAL ADJST ADJUSTED UNIT PRICE LAND VALUE OVERRIDE VALUE LAND NOTES
5010 5010   0 0 1.0000 0 0.9000
  .88 AC
  25,000.00 1.000 LT 0.900 22,500.00 22500    
TOTAL MARKET LAND DATA     22,500  
TOTAL PRESENT USE DATA