WAYNE COUNTY 4/2/2026 2:23:22 AM
PITTMAN DAVID WILLARD   Return/Appeal Notes:   Parcel: 2691872041
232 BUCK SWAMP RD PLAT: / UNIQ ID 105487 SPLIT FROM ID 28041
758684      
COUNTYWIDE ADVALOREM TAX (100), FIRE - BELFAST (100), SW FFEEFEE (1)        CARD NO. 1 of 1  
Reval Year: 2025 Tax Year: 2026 BUCK SWAMP RD 0.9900 AC   SRC=  
Appraised by on 06903 STONEY CREEK WEST TW-06 CI-00 FR-11 EX- AT- LAST ACTION 20230726
CONSTRUCTION DETAIL MARKET VALUE   DEPRECIATION CORRELATION OF VALUE
Foundation - 3
Continuous Footing 5.00
Sub Floor System - 5
Woo w/ Sub Floor 6.00
Exterior Walls - 21
Face Brick 34.00
Roofing Structure - 03
Gable 4.00
Roofing Cover - 03
Asphalt or Comp Shingle 4.00
Interior Wall Construction - 5
Drywall/Sheetrock 27.00
Interior Floor Cover - 08
Sheet Vinyl 9.00
Interior Floor Cover - 14
Carpet 0.00
Heating Fuel - 04
Electric 1.00
Heating Type - 10
Heat Pump 4.00
Air Conditioning Type - 03
Central 4.00
Bedrooms/Bathrooms/Half-Bathrooms
3/2/0 12.000
Bedrooms
BAS - 3 FUS - 0 LL - 0 _
Bathrooms
BAS - 2 FUS - 0 LL - 0 _
Half-Bathrooms
BAS - 0 FUS - 0 LL - 0 _
Office
BAS - 0 FUS - 0 LL - 0 0
TOTAL POINT VALUE 110.000
BUILDING ADJUSTMENTS
Quality 5 Average 1.0000
Shape/Design 1 Market Adjustment 1.0000
Size Size Size 0.9800
TOTAL ADJUSTMENT FACTOR 0.980
TOTAL QUALITY INDEX 108
USE MOD Eff. Area QUAL BASE RATE RCN EYB AYB
   Standard  0.41000
CREDENCE TO MARKET
50 01 1,912 108 135.00 260120 1984 1954 % GOOD 59.0
DEPR. BUILDING VALUE - CARD 153,470
TYPE: RURAL SINGLE FAMILY RESIDENTIAL Single Family Residential
STYLE: 1 - 1.0 Story
 

Click on image to enlarge
DEPR. OB/XF VALUE - CARD 1,120
MARKET LAND VALUE - CARD 28,000
TOTAL MARKET VALUE - CARD 182,590
TOTAL APPRAISED VALUE - CARD 182,590
TOTAL APPRAISED VALUE - PARCEL 182,590
TOTAL PRESENT USE VALUE - PARCEL 0
TOTAL VALUE DEFERRED - PARCEL 0
TOTAL TAXABLE VALUE - PARCEL $ 182,590
PRIOR
BUILDING VALUE 108,680
OBXF VALUE 810
LAND VALUE 19,000
PRESENT USE VALUE 0
DEFERRED VALUE 0
TOTAL VALUE 128,490
PERMIT
CODE DATE NOTE NUMBER AMOUNT
ROUT: WTRSHD:
SALES DATA
OFF. RECORD DATE DEED TYPE Q/U V/I INDICATE SALES PRICE
BOOK PAGE MO YR
03658 0775 9 2021 WD Q I 150000
HEATED AREA 1,776
NOTES
FR 2691861419
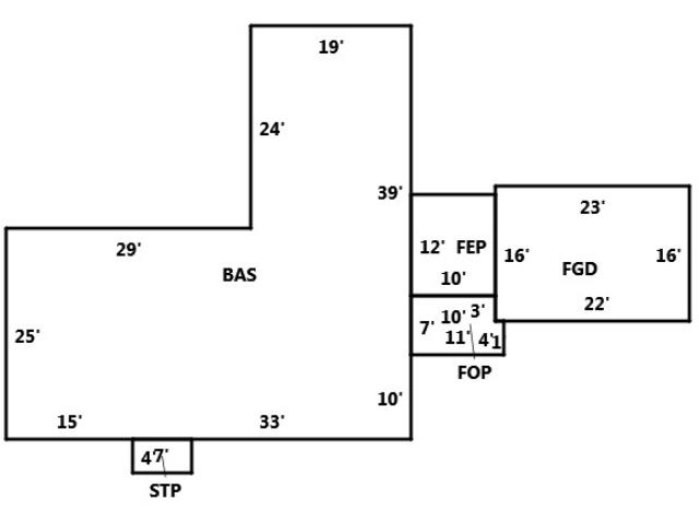
SUBAREA
TYPE GS AREA % RPL CS
BAS 1,656 100 223560
FEP 120 070 11340
FGD 368 040 19845
FOP 74 030 2970
STP 28 010 405
FIREPLACE 3 - 1 Story Single 2,000
SUBAREA TOTALS 2,246   260,120
CODE QUALITY DESCRIPTION COUNT LTH WTH UNITS UNIT PRICE ORIG % COND BLDG# AYB EYB ANN DEP RATE OVR % COND OB/XF DEPR. VALUE
01 2 STORAG BLD   17 17 289 20.00 100 1 1975 1975 S3   10 578
39 2 CANOPY   12 17 204 5.00 100 1 1980 1980 S3   20 204
01 2 STORAG BLD   14 12 168 20.00 100 1 1975 1975 S3   10 336
TOTAL OB/XF VALUE 1,118
BUILDING DIMENSIONS BAS=W29S25E15E33N10N39W19S24Area:1656;STP=S4E7N4W7Area:28;FOP=E11N4W1N3W10S7Area:74;FGD=E22N16W23S16E1Area:368;FEP=N12W1 10S12E10Area:120;TotalArea:2246  
LAND INFORMATION
HIGHEST AND BEST USE USE CODE LOCAL ZONING FRON TAGE DEPTH DEPTH / SIZE LND MOD COND FACT OTHER ADJUSTMENTS AND NOTES
  RF   AC   LC  TO  OT
ROAD
TYPE
LAND UNIT PRICE TOTAL LAND UNITS UNT TYP TOTAL ADJST ADJUSTED UNIT PRICE LAND VALUE OVERRIDE VALUE LAND NOTES
5010 5010   0 0 1.0000 0 1.0000
  .99 AC
  28,000.00 1.000 LT 1.000 28,000.00 28000    
TOTAL MARKET LAND DATA     28,000  
TOTAL PRESENT USE DATA