WAYNE COUNTY 4/2/2026 11:06:37 AM
DEPARTMENT OF TRANSPORTATION   Return/Appeal Notes:   Parcel: 3600279077
2401 N WILLIAM ST PLAT: / UNIQ ID 56399
75340580     ID NO: 12000186002003 A
COUNTYWIDE ADVALOREM TAX (100), CITY - GOLDSBORO (100)        CARD NO. 1 of 1  
Reval Year: 2025 Tax Year: 2026 LT 17 TALTON + 1.0000 LT   SRC=  
Appraised by 60 on 01201 NORTHSIDE OF TOWN TW-12 CI-01 FR-00 EX-3 AT- LAST ACTION 20230322
CONSTRUCTION DETAIL MARKET VALUE   DEPRECIATION CORRELATION OF VALUE
Foundation - 4
Spread Footing 6.00
Sub Floor System - 2
Slab on Grade 6.00
Exterior Walls - 11
Concrete Block 21.00
Exterior Walls - 21
Face Brick 0.00
Roofing Structure - 07
Wood Truss 5.00
Roofing Cover - 04
Built Up Tar Gravel 7.00
Interior Wall Construction - 5
Drywall/Sheetrock 12.00
Interior Floor Cover - 07
Cork or Vinyl Tile 10.00
Heating Fuel - 04
Electric 1.00
Heating Type - 10
Heat Pump 8.00
Air Conditioning Type - 03
Central 12.00
Structural Frame - 04
Masonry 12.00
Floor Number - 03
Floor 0.00
Commercial Heat & Air - 2
Packaged Units 1.00
Half-Bathrooms
BAS - 0 FUS - 0 LL - 0 _
Plumbing Fixtures
4.00 6.000
Office
BAS - 0 FUS - 0 LL - 0 0
TOTAL POINT VALUE 107.000
BUILDING ADJUSTMENTS
Non-Std Wall Height 0 Non-Std Wall Height 1.0000
Quality 6 Average + 1.1000
Shape/Design 1 Market Adjustment 1.0000
Size Size Size 1.0000
TOTAL ADJUSTMENT FACTOR 1.100
TOTAL QUALITY INDEX 118
USE MOD Eff. Area QUAL BASE RATE RCN EYB AYB
   Standard  0.59000
CREDENCE TO MARKET
11 07 2,036 118 161.66 329140 1993 1943 % GOOD 41.0
DEPR. BUILDING VALUE - CARD 134,950
TYPE: CONVENIENCE STORE Commercial
STYLE: 1 - 1.0 Story
 

Click on image to enlarge
DEPR. OB/XF VALUE - CARD 16,390
MARKET LAND VALUE - CARD 120,000
TOTAL MARKET VALUE - CARD 271,340
TOTAL APPRAISED VALUE - CARD 271,340
TOTAL APPRAISED VALUE - PARCEL 271,340
TOTAL PRESENT USE VALUE - PARCEL 0
TOTAL VALUE DEFERRED - PARCEL 0
TOTAL TAXABLE VALUE - PARCEL $ 271,340
PRIOR
BUILDING VALUE 99,320
OBXF VALUE 14,530
LAND VALUE 120,000
PRESENT USE VALUE 0
DEFERRED VALUE 0
TOTAL VALUE 233,850
PERMIT
CODE DATE NOTE NUMBER AMOUNT
ROUT: WTRSHD:
SALES DATA
OFF. RECORD DATE DEED TYPE Q/U V/I INDICATE SALES PRICE
BOOK PAGE MO YR
03686 0253 11 2021 WD I I 100000
02178 0012 2 2004 WD U I 130000
01152 0668 12 1986 WD U I 2500
00906 0856 1 1977 WD U I 0
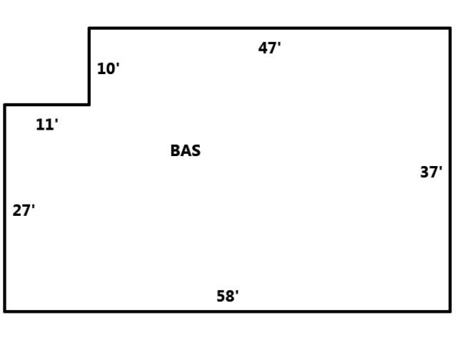
BUILDING AREA 2,036
NOTES
ADDED 3600279175 & 9175BEXXON REMOD 1969
REMOD FOR 1988
SUBAREA
TYPE GS AREA % RPL CS
BAS 2,036 100 329140
FIREPLACE 1 - None 0
SUBAREA TOTALS 2,036   329,140
CODE QUALITY DESCRIPTION COUNT LTH WTH UNITS UNIT PRICE ORIG % COND BLDG# AYB EYB ANN DEP RATE OVR % COND OB/XF DEPR. VALUE
09 2 ASPHPAVING   0 0 12,000 2.25 100 1 1974 1993 S3   20 5400
44 2 SVCSTATCAN   52 22 1,144 25.00 100 1 1982 1993 S3   20 5720
44 1 SVCSTATCAN   66 38 2,508 15.00 70 _ 1990 1990 S3   20 5267
TOTAL OB/XF VALUE 16,387
BUILDING DIMENSIONS BAS=W47S10W11S27E58N37Area:2036;TotalArea:2036  
LAND INFORMATION
HIGHEST AND BEST USE USE CODE LOCAL ZONING FRON TAGE DEPTH DEPTH / SIZE LND MOD COND FACT OTHER ADJUSTMENTS AND NOTES
  RF   AC   LC  TO  OT
ROAD
TYPE
LAND UNIT PRICE TOTAL LAND UNITS UNT TYP TOTAL ADJST ADJUSTED UNIT PRICE LAND VALUE OVERRIDE VALUE LAND NOTES
2600 2600 I-5 0 0 1.0000 0 1.0000
  
  120,000.00 1.000 LT 1.000 120,000.00 120000    
TOTAL MARKET LAND DATA     120,000  
TOTAL PRESENT USE DATA