WAYNE COUNTY 4/2/2026 2:23:22 AM
PITTMAN CLAYTON C        PITTMAN LILLIAN M WIFE Return/Appeal Notes:   Parcel: 2599932764
411 S WILLIAM ST PLAT: / UNIQ ID 48113
52582340     ID NO: 12000008003012
COUNTYWIDE ADVALOREM TAX (100), CITY - GOLDSBORO (100)        CARD NO. 1 of 1  
Reval Year: 2025 Tax Year: 2026 S WILLIAM ST 1.0000 LT   SRC=  
Appraised by 60 on 01701 CENTRAL BUSINESS DISTRICT TW-12 CI-01 FR-00 EX- AT- LAST ACTION 20240815
CONSTRUCTION DETAIL MARKET VALUE   DEPRECIATION CORRELATION OF VALUE
Foundation - 3
Continuous Footing 5.00
Sub Floor System - 5
Woo w/ Sub Floor 6.00
Exterior Walls - 21
Face Brick 34.00
Roofing Structure - 04
Hip 5.00
Roofing Cover - 03
Asphalt or Comp Shingle 4.00
Interior Wall Construction - 3
Plastered 28.00
Interior Floor Cover - 12
Hardwood 12.00
Heating Fuel - 04
Electric 1.00
Heating Type - 04
Forced Air-Ducted 4.00
Air Conditioning Type - 03
Central 4.00
Structural Frame - 02
Wood Frame 0.00
Unit Count - 5
Units 0.00
Bedrooms/Bathrooms/Half-Bathrooms
4/2/0 13.000
Bedrooms
BAS - 2 FUS - 2 LL - 0 _
Bathrooms
BAS - 1 FUS - 1 LL - 0 _
Half-Bathrooms
BAS - 0 FUS - 0 LL - 0 _
Office
BAS - 0 FUS - 0 LL - 0 0
TOTAL POINT VALUE 116.000
BUILDING ADJUSTMENTS
Quality 4 Below Average + 0.9500
Shape/Design 1 Market Adjustment 1.0000
Size Size Size 0.9500
TOTAL ADJUSTMENT FACTOR 0.900
TOTAL QUALITY INDEX 105
USE MOD Eff. Area QUAL BASE RATE RCN EYB AYB
 EOBS  Economic Obsolescence  0.05000
   Standard  0.70000
CREDENCE TO MARKET
08 01 2,825 105 120.75 344919 1985 1890 % GOOD 25.0
DEPR. BUILDING VALUE - CARD 86,230
TYPE: MULTIPLE RESIDENCE Single Family Residential
STYLE: 3 - 2.0 Stories
 

Click on image to enlarge
DEPR. OB/XF VALUE - CARD 0
MARKET LAND VALUE - CARD 8,220
TOTAL MARKET VALUE - CARD 94,450
TOTAL APPRAISED VALUE - CARD 94,450
TOTAL APPRAISED VALUE - PARCEL 94,450
TOTAL PRESENT USE VALUE - PARCEL 0
TOTAL VALUE DEFERRED - PARCEL 0
TOTAL TAXABLE VALUE - PARCEL $ 94,450
PRIOR
BUILDING VALUE 72,410
OBXF VALUE 0
LAND VALUE 4,700
PRESENT USE VALUE 0
DEFERRED VALUE 0
TOTAL VALUE 77,110
PERMIT
CODE DATE NOTE NUMBER AMOUNT
ROUT: WTRSHD:
SALES DATA
OFF. RECORD DATE DEED TYPE Q/U V/I INDICATE SALES PRICE
BOOK PAGE MO YR
02008 0179 11 2002 WD U I 35000
00788 0309 1 1971 WD U I 0
HEATED AREA 2,856
NOTES
 
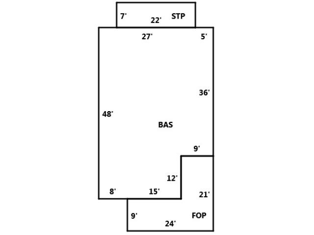
SUBAREA
TYPE GS AREA % RPL CS
BAS 1,428 100 172431
FOP 324 030 11713
FUS* 1,428 090 155164
STP 154 010 1811
FIREPLACE 5 - Two or More 3,800
SUBAREA TOTALS 3,334   344,919
CODE QUALITY DESCRIPTION COUNT LTH WTH UNITS UNIT PRICE ORIG % COND BLDG# SIZE FACT AYB EYB ANN DEP RATE OVR % COND OB/XF DEPR. VALUE
TOTAL OB/XF VALUE 0
BUILDING DIMENSIONS BAS=W5W27S48E8E15N12E9N36Area:1428;STP=N7W22S7E22Area:154;FOP=S9E24N21W9S12W15Area:324;FUS=Area:1428;TotalArea:3334  
LAND INFORMATION
HIGHEST AND BEST USE USE CODE LOCAL ZONING FRON TAGE DEPTH DEPTH / SIZE LND MOD COND FACT OTHER ADJUSTMENTS AND NOTES
  RF   AC   LC  TO  OT
ROAD
TYPE
LAND UNIT PRICE TOTAL LAND UNITS UNT TYP TOTAL ADJST ADJUSTED UNIT PRICE LAND VALUE OVERRIDE VALUE LAND NOTES
0100 0100 CBDH 54 103 0.8700 2 1.0000
  
  175.00 54.000 FF 0.870 152.25 8222    
TOTAL MARKET LAND DATA     8,220  
TOTAL PRESENT USE DATA