WAYNE COUNTY 4/2/2026 9:23:32 PM
POWELL CHARLES EDWIN & W JUANI        TA H Return/Appeal Notes:   Parcel: 2577823199
848 S US 13 HWY PLAT: / UNIQ ID 57294
433670      
COUNTYWIDE ADVALOREM TAX (100), FIRE - MARMAC (100), SW FFEEFEE (1)        CARD NO. 1 of 1  
Reval Year: 2025 Tax Year: 2026 848 S US 13 HY 2.4100 AC   SRC=  
Appraised by 88 on 06/10/2010 02160 DRAKE ESTATES, #1, 3, 4, 5, 6 TW-02 CI-00 FR-01 EX- AT- LAST ACTION 20240409
CONSTRUCTION DETAIL MARKET VALUE   DEPRECIATION CORRELATION OF VALUE
Foundation - 3
Continuous Footing 5.00
Sub Floor System - 4
PLYWOOD 6.00
Exterior Walls - 21
Face Brick 34.00
Roofing Structure - 03
Gable 4.00
Roofing Cover - 03
Asphalt or Comp Shingle 4.00
Interior Wall Construction - 5
Drywall/Sheetrock 27.00
Interior Floor Cover - 14
Carpet 10.00
Heating Fuel - 04
Electric 1.00
Heating Type - 04
Forced Air-Ducted 4.00
Air Conditioning Type - 03
Central 4.00
Bedrooms/Bathrooms/Half-Bathrooms
3/1/0 8.000
Bedrooms
BAS - 3 FUS - 0 LL - 0 _
Bathrooms
BAS - 1 FUS - 0 LL - 0 _
Half-Bathrooms
BAS - 0 FUS - 0 LL - 0 _
Office
BAS - 0 FUS - 0 LL - 0 0
TOTAL POINT VALUE 107.000
BUILDING ADJUSTMENTS
Quality 5 Average 1.0000
Shape/Design 1 Market Adjustment 1.0000
Size Size Size 1.0000
TOTAL ADJUSTMENT FACTOR 1.000
TOTAL QUALITY INDEX 107
USE MOD Eff. Area QUAL BASE RATE RCN EYB AYB
   Standard  0.40000
CREDENCE TO MARKET
50 01 1,333 107 133.75 178289 1985 1955 % GOOD 60.0
DEPR. BUILDING VALUE - CARD 106,970
TYPE: RURAL SINGLE FAMILY RESIDENTIAL Single Family Residential
STYLE: 1 - 1.0 Story
 

Click on image to enlarge
DEPR. OB/XF VALUE - CARD 3,000
MARKET LAND VALUE - CARD 70,000
TOTAL MARKET VALUE - CARD 179,970
TOTAL APPRAISED VALUE - CARD 179,970
TOTAL APPRAISED VALUE - PARCEL 179,970
TOTAL PRESENT USE VALUE - PARCEL 0
TOTAL VALUE DEFERRED - PARCEL 0
TOTAL TAXABLE VALUE - PARCEL $ 179,970
PRIOR
BUILDING VALUE 75,310
OBXF VALUE 2,400
LAND VALUE 33,750
PRESENT USE VALUE 0
DEFERRED VALUE 0
TOTAL VALUE 111,460
PERMIT
CODE DATE NOTE NUMBER AMOUNT
ROUT: WTRSHD:
SALES DATA
OFF. RECORD DATE DEED TYPE Q/U V/I INDICATE SALES PRICE
BOOK PAGE MO YR
01810 0452 11 2000 WD U I 110000
HEATED AREA 1,344
NOTES
1.07 FR 2577-83-1059;.19 FR LT 5207;ADD LT 3068 &
4173 TO THIS CARD
SUBAREA
TYPE GS AREA % RPL CS
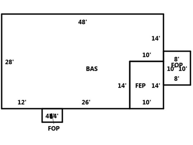
BAS 1,204 100 161035
FEP 140 070 13108
FOP 104 030 4146
FIREPLACE 1 - None 0
SUBAREA TOTALS 1,448   178,289
CODE QUALITY DESCRIPTION COUNT LTH WTH UNITS UNIT PRICE ORIG % COND BLDG# AYB EYB ANN DEP RATE OVR % COND OB/XF DEPR. VALUE
02 2 GARAGE   20 30 600 25.00 100 1 1970 1970 S3   20 3000
TOTAL OB/XF VALUE 3,000
BUILDING DIMENSIONS BAS=W48S28E12E26N14E10N14Area:1204;FOP=S4E6N4W6Area:24;FEP=E10N14W10S14Area:140;FOP=E8N10W8S10Area:80;TotalArea:1448  
LAND INFORMATION
HIGHEST AND BEST USE USE CODE LOCAL ZONING FRON TAGE DEPTH DEPTH / SIZE LND MOD COND FACT OTHER ADJUSTMENTS AND NOTES
  RF   AC   LC  TO  OT
ROAD
TYPE
LAND UNIT PRICE TOTAL LAND UNITS UNT TYP TOTAL ADJST ADJUSTED UNIT PRICE LAND VALUE OVERRIDE VALUE LAND NOTES
5010 5010   0 0 1.0000 0 2.0000
  SIZE
  35,000.00 1.000 LT 2.000 70,000.00 70000    
TOTAL MARKET LAND DATA     70,000  
TOTAL PRESENT USE DATA