WAYNE COUNTY 4/4/2026 3:25:36 PM
WIGGINS GREGORY M        WIGGINS RHONDA F WIFE Return/Appeal Notes:   Parcel: 2582290523
801 ANN ST PLAT: / UNIQ ID 8490
734803     ID NO: 02H14017002022
COUNTYWIDE ADVALOREM TAX (100), TOWN - MOUNT OLIVE (100)        CARD NO. 1 of 1  
Reval Year: 2025 Tax Year: 2026 LT 26 BELL-WELLS SUB 1.0000 LT   SRC=  
Appraised by 60 on 02002 TOWN OF MT OLIVE TW-02 CI-03 FR-00 EX- AT- LAST ACTION 20240822
CONSTRUCTION DETAIL MARKET VALUE   DEPRECIATION CORRELATION OF VALUE
Foundation - 3
Continuous Footing 5.00
Sub Floor System - 5
Woo w/ Sub Floor 6.00
Exterior Walls - 10
Aluminum/Vinyl Siding 30.00
Roofing Structure - 03
Gable 4.00
Roofing Cover - 03
Asphalt or Comp Shingle 4.00
Interior Wall Construction - 3
Plastered 28.00
Interior Floor Cover - 08
Sheet Vinyl 9.00
Interior Floor Cover - 14
Carpet 0.00
Heating Fuel - 04
Electric 1.00
Heating Type - 10
Heat Pump 4.00
Air Conditioning Type - 03
Central 4.00
Bedrooms/Bathrooms/Half-Bathrooms
2/2/0 8.000
Bedrooms
BAS - 2 FUS - 0 LL - 0 _
Bathrooms
BAS - 2 FUS - 0 LL - 0 _
Half-Bathrooms
BAS - 0 FUS - 0 LL - 0 _
Office
BAS - 0 FUS - 0 LL - 0 0
TOTAL POINT VALUE 103.000
BUILDING ADJUSTMENTS
Quality 5 Average 1.0000
Shape/Design 1 Market Adjustment 1.0000
Size Size Size 0.9800
TOTAL ADJUSTMENT FACTOR 0.980
TOTAL QUALITY INDEX 101
USE MOD Eff. Area QUAL BASE RATE RCN EYB AYB
   Standard  0.40000
CREDENCE TO MARKET
01 01 1,683 101 126.25 214480 1985 1953 % GOOD 60.0
DEPR. BUILDING VALUE - CARD 128,690
TYPE: SINGLE FAMILY RESIDENTIAL Single Family Residential
STYLE: 1 - 1.0 Story
 

Click on image to enlarge
DEPR. OB/XF VALUE - CARD 730
MARKET LAND VALUE - CARD 15,360
TOTAL MARKET VALUE - CARD 144,780
TOTAL APPRAISED VALUE - CARD 144,780
TOTAL APPRAISED VALUE - PARCEL 144,780
TOTAL PRESENT USE VALUE - PARCEL 0
TOTAL VALUE DEFERRED - PARCEL 0
TOTAL TAXABLE VALUE - PARCEL $ 144,780
PRIOR
BUILDING VALUE 71,750
OBXF VALUE 550
LAND VALUE 6,910
PRESENT USE VALUE 0
DEFERRED VALUE 0
TOTAL VALUE 79,210
PERMIT
CODE DATE NOTE NUMBER AMOUNT
ROUT: WTRSHD:
SALES DATA
OFF. RECORD DATE DEED TYPE Q/U V/I INDICATE SALES PRICE
BOOK PAGE MO YR
03775 0461 10 2022 WD Q I 110000
03379 0175 6 2018 WD C I 0
00487 0204 1 1958 WD U I 0
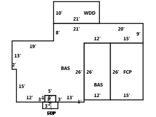
HEATED AREA 1,546
NOTES
 
SUBAREA
TYPE GS AREA % RPL CS
BAS 1,546 100 195183
FCP 390 025 12373
FOP 15 030 631
STP 21 010 253
WDD 210 015 4040
FIREPLACE 3 - 1 Story Single 2,000
SUBAREA TOTALS 2,182   214,480
CODE QUALITY DESCRIPTION COUNT LTH WTH UNITS UNIT PRICE ORIG % COND BLDG# AYB EYB ANN DEP RATE OVR % COND OB/XF DEPR. VALUE
01 2 STORAG BLD   26 14 364 20.00 100 1 1980 1980 S3   10 728
TOTAL OB/XF VALUE 728
BUILDING DIMENSIONS BAS=W20W21S8W19S13E2S15E12E1N3E5S3E13N1N26E12E15N9Area:1234;WDD=N10W21S10E21Area:210;STP=S3E7N3W7Area:21;FOP=E5N3W5S3Are ea:15;BAS=E12N26W12S26Area:312;FCP=E15N26W15S26Area:390;TotalArea:2182  
LAND INFORMATION
HIGHEST AND BEST USE USE CODE LOCAL ZONING FRON TAGE DEPTH DEPTH / SIZE LND MOD COND FACT OTHER ADJUSTMENTS AND NOTES
  RF   AC   LC  TO  OT
ROAD
TYPE
LAND UNIT PRICE TOTAL LAND UNITS UNT TYP TOTAL ADJST ADJUSTED UNIT PRICE LAND VALUE OVERRIDE VALUE LAND NOTES
0100 0100 R-10 80 129 0.9600 2 1.0000     200.00 80.000 FF 0.960 192.00 15360 0  
TOTAL MARKET LAND DATA     15,360  
TOTAL PRESENT USE DATA