WAYNE COUNTY 4/4/2026 3:25:14 PM
WIGGINS CHESTER M & W VICKIE T   Return/Appeal Notes:   Parcel: 2582190637
117 PARK AVE PLAT: / UNIQ ID 8432
71782980     ID NO: 02H14017003012
COUNTYWIDE ADVALOREM TAX (100), TOWN - MOUNT OLIVE (100)        CARD NO. 1 of 1  
Reval Year: 2025 Tax Year: 2026 PARK AVE 1.0000 LT   SRC=  
Appraised by 60 on 02002 TOWN OF MT OLIVE TW-02 CI-03 FR-00 EX- AT- LAST ACTION 20240822
CONSTRUCTION DETAIL MARKET VALUE   DEPRECIATION CORRELATION OF VALUE
Foundation - 3
Continuous Footing 5.00
Sub Floor System - 5
Woo w/ Sub Floor 6.00
Exterior Walls - 10
Aluminum/Vinyl Siding 30.00
Roofing Structure - 03
Gable 4.00
Roofing Cover - 12
Modular Metal 4.00
Interior Wall Construction - 3
Plastered 28.00
Interior Floor Cover - 09
Pine or Soft Woods 7.00
Heating Fuel - 04
Electric 1.00
Heating Type - 04
Forced Air-Ducted 4.00
Air Conditioning Type - 03
Central 4.00
Bedrooms/Bathrooms/Half-Bathrooms
3/2/1 13.000
Bedrooms
BAS - 3 FUS - 0 LL - 0 _
Bathrooms
BAS - 2 FUS - 0 LL - 0 _
Half-Bathrooms
BAS - 1 FUS - 0 LL - 0 _
Office
BAS - 0 FUS - 0 LL - 0 0
TOTAL POINT VALUE 106.000
BUILDING ADJUSTMENTS
Quality 5 Average 1.0000
Shape/Design 1 Market Adjustment 1.0000
Size Size Size 0.9800
TOTAL ADJUSTMENT FACTOR 0.980
TOTAL QUALITY INDEX 104
USE MOD Eff. Area QUAL BASE RATE RCN EYB AYB
   Standard  0.50000
CREDENCE TO MARKET
01 01 2,056 104 130.00 269280 1975 1900 % GOOD 50.0
DEPR. BUILDING VALUE - CARD 134,640
TYPE: SINGLE FAMILY RESIDENTIAL Single Family Residential
STYLE: 1 - 1.0 Story
 

Click on image to enlarge
DEPR. OB/XF VALUE - CARD 0
MARKET LAND VALUE - CARD 22,400
TOTAL MARKET VALUE - CARD 157,040
TOTAL APPRAISED VALUE - CARD 157,040
TOTAL APPRAISED VALUE - PARCEL 157,040
TOTAL PRESENT USE VALUE - PARCEL 0
TOTAL VALUE DEFERRED - PARCEL 0
TOTAL TAXABLE VALUE - PARCEL $ 157,040
PRIOR
BUILDING VALUE 70,280
OBXF VALUE 0
LAND VALUE 10,080
PRESENT USE VALUE 0
DEFERRED VALUE 0
TOTAL VALUE 80,360
PERMIT
CODE DATE NOTE NUMBER AMOUNT
ROUT: WTRSHD:
SALES DATA
OFF. RECORD DATE DEED TYPE Q/U V/I INDICATE SALES PRICE
BOOK PAGE MO YR
01473 0844 4 1995 WD U I 60000
00364 0044 1 1901 WD U I 0
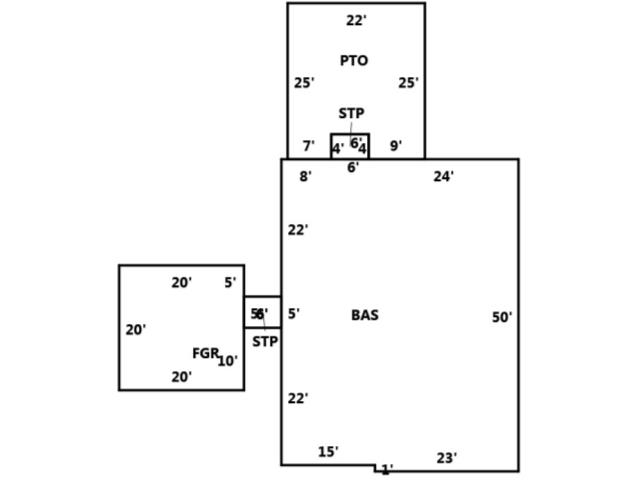
HEATED AREA 1,885
NOTES
 
SUBAREA
TYPE GS AREA % RPL CS
BAS 1,885 100 245050
FGR 400 035 18200
PTO 526 005 3380
STP 54 010 650
FIREPLACE 3 - 1 Story Single 2,000
SUBAREA TOTALS 2,865   269,280
CODE QUALITY DESCRIPTION COUNT LTH WTH UNITS UNIT PRICE ORIG % COND BLDG# SIZE FACT AYB EYB ANN DEP RATE OVR % COND OB/XF DEPR. VALUE
TOTAL OB/XF VALUE 0
BUILDING DIMENSIONS BAS=W24W6W8S22S5S22E15S1E23N50Area:1885;STP=W6N4E6S4Area:24;STP=S5W6N5E6Area:30;FGR=S10W20N20E20S5S5Area:400;PTO=N25W22S S25E7N4E6S4E9Area:526;TotalArea:2865  
LAND INFORMATION
HIGHEST AND BEST USE USE CODE LOCAL ZONING FRON TAGE DEPTH DEPTH / SIZE LND MOD COND FACT OTHER ADJUSTMENTS AND NOTES
  RF   AC   LC  TO  OT
ROAD
TYPE
LAND UNIT PRICE TOTAL LAND UNITS UNT TYP TOTAL ADJST ADJUSTED UNIT PRICE LAND VALUE OVERRIDE VALUE LAND NOTES
0100 0100 R-10 100 263 1.1200 2 1.0000     200.00 100.000 FF 1.120 224.00 22400 0  
TOTAL MARKET LAND DATA     22,400  
TOTAL PRESENT USE DATA