WAYNE COUNTY 4/2/2026 9:22:34 PM
POWELL JAMES R JR        POWELL JACQUELINE V WIFE Return/Appeal Notes:   Parcel: 3539163957
212 VINWOOD AVE PLAT: / UNIQ ID 22557
277930     ID NO: 04C07015001003
COUNTYWIDE ADVALOREM TAX (100), SW FFEEFEE (1), FIRE - NEW HOPE W (100)        CARD NO. 1 of 1  
Reval Year: 2025 Tax Year: 2026 LT 3 VINSON MANOR 1.0000 LT   SRC=  
Appraised by 60 on 07/28/2010 04015 VINSON MANOR TW-04 CI-00 FR-31 EX- AT- LAST ACTION 20240904
CONSTRUCTION DETAIL MARKET VALUE   DEPRECIATION CORRELATION OF VALUE
Foundation - 3
Continuous Footing 5.00
Sub Floor System - 4
PLYWOOD 6.00
Exterior Walls - 21
Face Brick 34.00
Roofing Structure - 03
Gable 4.00
Roofing Cover - 03
Asphalt or Comp Shingle 4.00
Interior Wall Construction - 5
Drywall/Sheetrock 27.00
Interior Floor Cover - 14
Carpet 9.00
Interior Floor Cover - 08
Sheet Vinyl 0.00
Heating Fuel - 03
Gas 1.00
Heating Type - 10
Heat Pump 4.00
Air Conditioning Type - 03
Central 4.00
Bedrooms/Bathrooms/Half-Bathrooms
3/2/0 12.000
Bedrooms
BAS - 3 FUS - 0 LL - 0 _
Bathrooms
BAS - 2 FUS - 0 LL - 0 _
Half-Bathrooms
BAS - 0 FUS - 0 LL - 0 _
Office
BAS - 0 FUS - 0 LL - 0 0
TOTAL POINT VALUE 110.000
BUILDING ADJUSTMENTS
Quality 5 Average 1.0000
Shape/Design 3 Market Adjustment 1.0400
Size Size Size 1.0000
TOTAL ADJUSTMENT FACTOR 1.040
TOTAL QUALITY INDEX 114
USE MOD Eff. Area QUAL BASE RATE RCN EYB AYB
   Standard  0.46000
CREDENCE TO MARKET
50 01 1,567 114 142.50 225298 1979 1969 % GOOD 54.0
DEPR. BUILDING VALUE - CARD 121,660
TYPE: RURAL SINGLE FAMILY RESIDENTIAL Single Family Residential
STYLE: 1 - 1.0 Story
 

Click on image to enlarge
DEPR. OB/XF VALUE - CARD 290
MARKET LAND VALUE - CARD 26,000
TOTAL MARKET VALUE - CARD 147,950
TOTAL APPRAISED VALUE - CARD 147,950
TOTAL APPRAISED VALUE - PARCEL 147,950
TOTAL PRESENT USE VALUE - PARCEL 0
TOTAL VALUE DEFERRED - PARCEL 0
TOTAL TAXABLE VALUE - PARCEL $ 147,950
PRIOR
BUILDING VALUE 86,950
OBXF VALUE 220
LAND VALUE 16,000
PRESENT USE VALUE 0
DEFERRED VALUE 0
TOTAL VALUE 103,170
PERMIT
CODE DATE NOTE NUMBER AMOUNT
ROUT: WTRSHD:
SALES DATA
OFF. RECORD DATE DEED TYPE Q/U V/I INDICATE SALES PRICE
BOOK PAGE MO YR
01509 0257 1 1996 WD U I 79000
01462 0679 12 1994 WD U I 72000
01451 0699 9 1994 WD U I 74500
01329 0135 4 1992 WD U I 69000
01289 0137 3 1991 WD U I 64000
HEATED AREA 1,500
NOTES
 
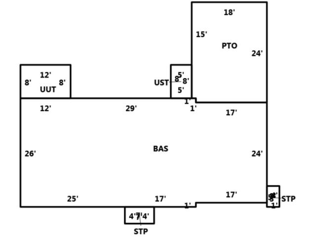
SUBAREA
TYPE GS AREA % RPL CS
BAS 1,500 100 213750
PTO 431 005 3135
STP 43 010 570
UST 40 030 1710
UUT 96 030 4133
FIREPLACE 3 - 1 Story Single 2,000
SUBAREA TOTALS 2,110   225,298
CODE QUALITY DESCRIPTION COUNT LTH WTH UNITS UNIT PRICE ORIG % COND BLDG# AYB EYB ANN DEP RATE OVR % COND OB/XF DEPR. VALUE
01 2 STORAG BLD   8 18 144 20.00 100 1 1974 1974 S3   10 288
TOTAL OB/XF VALUE 288
BUILDING DIMENSIONS BAS=W1W29W12S26E25E17N1E17N24W17N1Area:1500;UST=N8W5S8E5Area:40;UUT=N8W12S8E12Area:96;STP=S4E7N4W7Area:28;STP=S1E3N5W3S4 4Area:15;PTO=N15E18S24W17N1W1N8Area:431;TotalArea:2110  
LAND INFORMATION
HIGHEST AND BEST USE USE CODE LOCAL ZONING FRON TAGE DEPTH DEPTH / SIZE LND MOD COND FACT OTHER ADJUSTMENTS AND NOTES
  RF   AC   LC  TO  OT
ROAD
TYPE
LAND UNIT PRICE TOTAL LAND UNITS UNT TYP TOTAL ADJST ADJUSTED UNIT PRICE LAND VALUE OVERRIDE VALUE LAND NOTES
5010 5010   0 0 1.0000 0 1.0000     26,000.00 1.000 LT 1.000 26,000.00 26000 0  
TOTAL MARKET LAND DATA     26,000  
TOTAL PRESENT USE DATA