WAYNE COUNTY 4/6/2026 5:27:38 AM
WIGGINS BRANTLEY SETH        WIGGINS AVERY LYNN WIFE Return/Appeal Notes:   Parcel: 3604544865
208 FYNLOCH CHASE DR PLAT: P/85G UNIQ ID 106637 SPLIT FROM ID 42822
766697      
COUNTYWIDE ADVALOREM TAX (100), FIRE - PLEASANT GROVE (100), SW FFEEFEE (1)        CARD NO. 1 of 1  
Reval Year: 2025 Tax Year: 2026 LT 11 FYNLOCH CHASE #2 REV 0.4800 AC   SRC=  
Appraised by on 11051 FYNLOCH CHASE #1, 2, 3, 4 TW-11 CI-00 FR-17 EX- AT- LAST ACTION 20240429
CONSTRUCTION DETAIL MARKET VALUE   DEPRECIATION CORRELATION OF VALUE
Foundation - 4
Spread Footing 6.00
Sub Floor System - 2
Slab on Grade 4.00
Exterior Walls - 10
Aluminum/Vinyl Siding 30.00
Roofing Structure - 03
Gable 4.00
Roofing Cover - 03
Asphalt or Comp Shingle 4.00
Interior Wall Construction - 5
Drywall/Sheetrock 27.00
Interior Floor Cover - 08
Sheet Vinyl 9.00
Interior Floor Cover - 14
Carpet 0.00
Heating Fuel - 04
Electric 1.00
Heating Type - 10
Heat Pump 4.00
Air Conditioning Type - 03
Central 4.00
Bedrooms/Bathrooms/Half-Bathrooms
3/2/0 12.000
Bedrooms
BAS - 3 FUS - 0 LL - 0 _
Bathrooms
BAS - 2 FUS - 0 LL - 0 _
Half-Bathrooms
BAS - 0 FUS - 0 LL - 0 _
Office
BAS - 0 FUS - 0 LL - 0 0
TOTAL POINT VALUE 105.000
BUILDING ADJUSTMENTS
Quality 5 Average 1.0000
Shape/Design 3 Market Adjustment 1.0400
Size Size Size 1.0000
TOTAL ADJUSTMENT FACTOR 1.040
TOTAL QUALITY INDEX 109
USE MOD Eff. Area QUAL BASE RATE RCN EYB AYB
   Standard  0.02000
CREDENCE TO MARKET
50 01 1,692 109 136.25 231736 2023 2023 % GOOD 98.0
DEPR. BUILDING VALUE - CARD 227,100
TYPE: RURAL SINGLE FAMILY RESIDENTIAL Single Family Residential
STYLE: 1 - 1.0 Story
 

Click on image to enlarge
DEPR. OB/XF VALUE - CARD 0
MARKET LAND VALUE - CARD 45,000
TOTAL MARKET VALUE - CARD 272,100
TOTAL APPRAISED VALUE - CARD 272,100
TOTAL APPRAISED VALUE - PARCEL 272,100
TOTAL PRESENT USE VALUE - PARCEL 0
TOTAL VALUE DEFERRED - PARCEL 0
TOTAL TAXABLE VALUE - PARCEL $ 272,100
PRIOR
BUILDING VALUE 0
OBXF VALUE 0
LAND VALUE 0
PRESENT USE VALUE 0
DEFERRED VALUE 0
TOTAL VALUE 0
PERMIT
CODE DATE NOTE NUMBER AMOUNT
ROUT: WTRSHD:
SALES DATA
OFF. RECORD DATE DEED TYPE Q/U V/I INDICATE SALES PRICE
BOOK PAGE MO YR
03887 0416 4 2024 WD Q I 266000
HEATED AREA 1,383
NOTES
P6-23 NH FOR 2024
SUBAREA
TYPE GS AREA % RPL CS
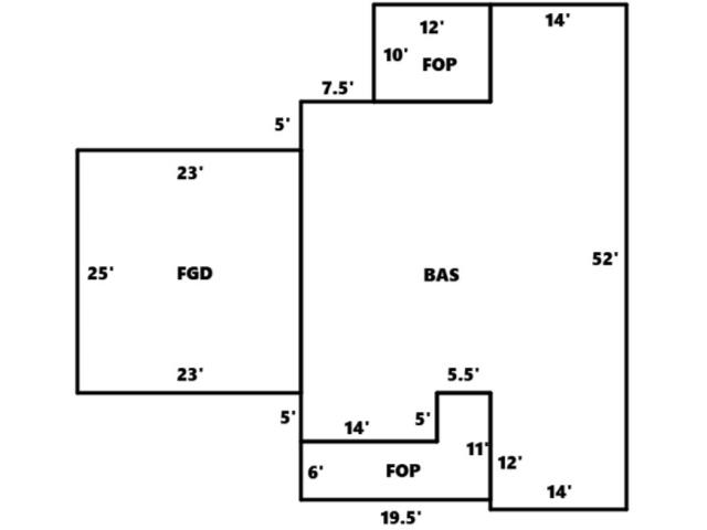
BAS 1,383 100 188434
FGD 575 040 31338
FOP 264 030 10764
FIREPLACE 2 - Pre-Fab 1,200
SUBAREA TOTALS 2,222   231,736
CODE QUALITY DESCRIPTION COUNT LTH WTH UNITS UNIT PRICE ORIG % COND BLDG# SIZE FACT AYB EYB ANN DEP RATE OVR % COND OB/XF DEPR. VALUE
TOTAL OB/XF VALUE 0
BUILDING DIMENSIONS BAS=W14S10W12W7.5S5S25S5E14N5E5.5S12E14N52Area:1383;FOP=W12N10E12S10Area:120;FGD=W23S25E23N25Area:575;FOP=S6E19.5N11W5.5 5S5W14Area:144.5;TotalArea:2222.5  
LAND INFORMATION
HIGHEST AND BEST USE USE CODE LOCAL ZONING FRON TAGE DEPTH DEPTH / SIZE LND MOD COND FACT OTHER ADJUSTMENTS AND NOTES
  RF   AC   LC  TO  OT
ROAD
TYPE
LAND UNIT PRICE TOTAL LAND UNITS UNT TYP TOTAL ADJST ADJUSTED UNIT PRICE LAND VALUE OVERRIDE VALUE LAND NOTES
5010 5010   0 0 1.0000 0 1.0000
  .48 AC
  45,000.00 1.000 LT 1.000 45,000.00 45000    
TOTAL MARKET LAND DATA     45,000  
TOTAL PRESENT USE DATA