WAYNE COUNTY 4/2/2026 2:23:39 AM
PITTMAN ATHALENE O   Return/Appeal Notes:   Parcel: 2685129631
3547 N NC 581 HWY PLAT: / UNIQ ID 40277
293980     ID NO: 09H02000005011
COUNTYWIDE ADVALOREM TAX (100), FIRE - NAHUNTA (100), SW FFEEFEE (1)        CARD NO. 1 of 3  
Reval Year: 2025 Tax Year: 2026 3547 N NC 581 HWY DB 736-531 2.1000 AC   SRC=  
Appraised by 60 on 11/17/2010 09902 GREATSWAMP WEST SIDE TW-09 CI-00 FR-09 EX- AT- LAST ACTION 20230731
CONSTRUCTION DETAIL MARKET VALUE   DEPRECIATION CORRELATION OF VALUE
Foundation - 3
Continuous Footing 5.00
Sub Floor System - 5
Woo w/ Sub Floor 6.00
Exterior Walls - 10
Aluminum/Vinyl Siding 30.00
Roofing Structure - 03
Gable 4.00
Roofing Cover - 12
Modular Metal 4.00
Interior Wall Construction - 5
Drywall/Sheetrock 27.00
Interior Floor Cover - 09
Pine or Soft Woods 7.00
Heating Fuel - 02
Oil, Wood, or Coal 1.00
Heating Type - 03
Forced Air-Not Ducted 1.00
Air Conditioning Type - 01
None 0.00
Bedrooms/Bathrooms/Half-Bathrooms
2/1/0 6.000
Bedrooms
BAS - 2 FUS - 0 LL - 0 _
Bathrooms
BAS - 1 FUS - 0 LL - 0 _
Half-Bathrooms
BAS - 0 FUS - 0 LL - 0 _
Office
BAS - 0 FUS - 0 LL - 0 0
TOTAL POINT VALUE 91.000
BUILDING ADJUSTMENTS
Quality 3 Below Average 0.9000
Shape/Design 1 Market Adjustment 1.0000
Size Size Size 1.0500
TOTAL ADJUSTMENT FACTOR 0.950
TOTAL QUALITY INDEX 86
USE MOD Eff. Area QUAL BASE RATE RCN EYB AYB
   Standard  0.70000
CREDENCE TO MARKET
50 01 1,314 86 107.50 141255 1938 1925 % GOOD 30.0
DEPR. BUILDING VALUE - CARD 42,380
TYPE: RURAL SINGLE FAMILY RESIDENTIAL Single Family Residential
STYLE: 1 - 1.0 Story
 

Click on image to enlarge
DEPR. OB/XF VALUE - CARD 300
MARKET LAND VALUE - CARD 54,600
TOTAL MARKET VALUE - CARD 97,280
TOTAL APPRAISED VALUE - CARD 97,280
TOTAL APPRAISED VALUE - PARCEL 235,950
TOTAL PRESENT USE VALUE - PARCEL 0
TOTAL VALUE DEFERRED - PARCEL 0
TOTAL TAXABLE VALUE - PARCEL $ 235,950
PRIOR
BUILDING VALUE 124,200
OBXF VALUE 300
LAND VALUE 33,600
PRESENT USE VALUE 0
DEFERRED VALUE 0
TOTAL VALUE 158,100
PERMIT
CODE DATE NOTE NUMBER AMOUNT
ROUT: WTRSHD:
SALES DATA
OFF. RECORD DATE DEED TYPE Q/U V/I INDICATE SALES PRICE
BOOK PAGE MO YR
0099E 0801 1 1999 WD U I 0
00537 0364 1 1961 WD U I 0
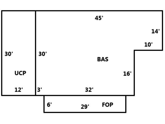
HEATED AREA 1,190
NOTES
1997-573
SUBAREA
TYPE GS AREA % RPL CS
BAS 1,190 100 127925
FOP 174 030 5590
UCP 360 020 7740
FIREPLACE 1 - None 0
SUBAREA TOTALS 1,724   141,255
CODE QUALITY DESCRIPTION COUNT LTH WTH UNITS UNIT PRICE ORIG % COND BLDG# AYB EYB ANN DEP RATE OVR % COND OB/XF DEPR. VALUE
    STORAGE   30 50 1 300.00 100 1 1900 1900 0   100 300
TOTAL OB/XF VALUE 300
BUILDING DIMENSIONS BAS=S30E3E32N16E10N14W45Area:1190;FOP=S6E29N6W29Area:174;UCP=W12S30E12N30Area:360;TotalArea:1724  
LAND INFORMATION
HIGHEST AND BEST USE USE CODE LOCAL ZONING FRON TAGE DEPTH DEPTH / SIZE LND MOD COND FACT OTHER ADJUSTMENTS AND NOTES
  RF   AC   LC  TO  OT
ROAD
TYPE
LAND UNIT PRICE TOTAL LAND UNITS UNT TYP TOTAL ADJST ADJUSTED UNIT PRICE LAND VALUE OVERRIDE VALUE LAND NOTES
5010 5010   0 0 1.0000 0 1.0000     26,000.00 2.100 AC 1.000 26,000.00 54600    
TOTAL MARKET LAND DATA 2.100   54,600  
TOTAL PRESENT USE DATA