WAYNE COUNTY 4/2/2026 9:27:04 PM
POWELL HANNELORE S   Return/Appeal Notes:   Parcel: 2587558632
155 HEREFORD DR PLAT: / UNIQ ID 11369
53296420     ID NO: 02G10047001030
COUNTYWIDE ADVALOREM TAX (100), FIRE - MARMAC (100), SW FFEEFEE (1)        CARD NO. 1 of 1  
Reval Year: 2025 Tax Year: 2026 LT 30 PT LT 31 HEREFORD 1.0000 LT   SRC=  
Appraised by 60 on 06/07/2010 02047 HERTFORD HILLS TW-02 CI-00 FR-01 EX- AT- LAST ACTION 20241210
CONSTRUCTION DETAIL MARKET VALUE   DEPRECIATION CORRELATION OF VALUE
Foundation - 3
Continuous Footing 5.00
Sub Floor System - 4
PLYWOOD 6.00
Exterior Walls - 10
Aluminum/Vinyl Siding 30.00
Roofing Structure - 03
Gable 4.00
Roofing Cover - 03
Asphalt or Comp Shingle 4.00
Interior Wall Construction - 5
Drywall/Sheetrock 27.00
Interior Floor Cover - 08
Sheet Vinyl 9.00
Interior Floor Cover - 14
Carpet 0.00
Heating Fuel - 04
Electric 1.00
Heating Type - 10
Heat Pump 4.00
Air Conditioning Type - 03
Central 4.00
Bedrooms/Bathrooms/Half-Bathrooms
2/1/0 6.000
Bedrooms
BAS - 2 FUS - 0 LL - 0 _
Bathrooms
BAS - 1 FUS - 0 LL - 0 _
Half-Bathrooms
BAS - 0 FUS - 0 LL - 0 _
Office
BAS - 0 FUS - 0 LL - 0 0
TOTAL POINT VALUE 100.000
BUILDING ADJUSTMENTS
Quality 5 Average 1.0000
Shape/Design 1 Market Adjustment 1.0000
Size Size Size 1.1000
TOTAL ADJUSTMENT FACTOR 1.100
TOTAL QUALITY INDEX 110
USE MOD Eff. Area QUAL BASE RATE RCN EYB AYB
   Standard  0.42000
CREDENCE TO MARKET
01 01 1,146 110 137.50 157576 1983 1983 % GOOD 58.0
DEPR. BUILDING VALUE - CARD 91,390
TYPE: SINGLE FAMILY RESIDENTIAL Single Family Residential
STYLE: 1 - 1.0 Story
 

Click on image to enlarge
DEPR. OB/XF VALUE - CARD 920
MARKET LAND VALUE - CARD 24,000
TOTAL MARKET VALUE - CARD 116,310
TOTAL APPRAISED VALUE - CARD 116,310
TOTAL APPRAISED VALUE - PARCEL 116,310
TOTAL PRESENT USE VALUE - PARCEL 0
TOTAL VALUE DEFERRED - PARCEL 0
TOTAL TAXABLE VALUE - PARCEL $ 116,310
PRIOR
BUILDING VALUE 59,500
OBXF VALUE 1,120
LAND VALUE 18,000
PRESENT USE VALUE 0
DEFERRED VALUE 0
TOTAL VALUE 78,620
PERMIT
CODE DATE NOTE NUMBER AMOUNT
ROUT: WTRSHD:
SALES DATA
OFF. RECORD DATE DEED TYPE Q/U V/I INDICATE SALES PRICE
BOOK PAGE MO YR
01058 0570 1 1983 WD U I 5000
HEATED AREA 1,000
NOTES
 
SUBAREA
TYPE GS AREA % RPL CS
BAS 1,000 100 137500
FCP 500 025 17188
FOP 25 030 1100
FST 36 035 1788
FIREPLACE 1 - None 0
SUBAREA TOTALS 1,561   157,576
CODE QUALITY DESCRIPTION COUNT LTH WTH UNITS UNIT PRICE ORIG % COND BLDG# AYB EYB ANN DEP RATE OVR % COND OB/XF DEPR. VALUE
02 1 GARAGE   20 14 280 15.00 100 1 1999 1999 S3   22 924
TOTAL OB/XF VALUE 924
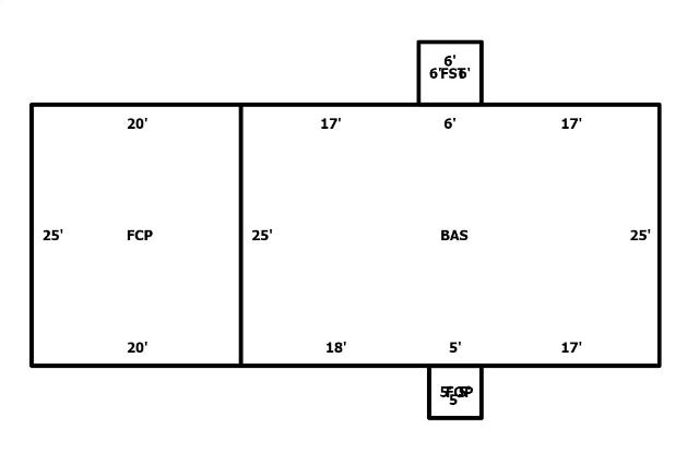
BUILDING DIMENSIONS BAS=W17W6W17S25E18E5E17N25Area:1,000.0;FST=W6N6E6S6Area:36.0;FCP=W20S25E20N25Area:500.0;FOP=E5S5W5N5Area:25.0;TotalArea: :1,561.0  
LAND INFORMATION
HIGHEST AND BEST USE USE CODE LOCAL ZONING FRON TAGE DEPTH DEPTH / SIZE LND MOD COND FACT OTHER ADJUSTMENTS AND NOTES
  RF   AC   LC  TO  OT
ROAD
TYPE
LAND UNIT PRICE TOTAL LAND UNITS UNT TYP TOTAL ADJST ADJUSTED UNIT PRICE LAND VALUE OVERRIDE VALUE LAND NOTES
5010 5010   0 0 1.0000 0 1.2000     20,000.00 1.000 LT 1.200 24,000.00 24000 0  
TOTAL MARKET LAND DATA     24,000  
TOTAL PRESENT USE DATA