WAYNE COUNTY 4/2/2026 2:24:57 AM
PITTMAN CYNTHIA LOUISE   Return/Appeal Notes:   Parcel: 2674875226
555 PINKNEY RD PLAT: / UNIQ ID 39973
734264     ID NO: 09H03000003004A
COUNTYWIDE ADVALOREM TAX (100), FIRE - NAHUNTA (100), SW FFEEFEE (1)        CARD NO. 1 of 1  
Reval Year: 2025 Tax Year: 2026 555 PINKNEY RD 1.0000 LT   SRC=  
Appraised by 88 on 11/17/2010 09902 GREATSWAMP WEST SIDE TW-09 CI-00 FR-09 EX- AT- LAST ACTION 20241212
CONSTRUCTION DETAIL MARKET VALUE   DEPRECIATION CORRELATION OF VALUE
Foundation - 3
Continuous Footing 5.00
Sub Floor System - 4
PLYWOOD 6.00
Exterior Walls - 10
Aluminum/Vinyl Siding 30.00
Roofing Structure - 03
Gable 4.00
Roofing Cover - 03
Asphalt or Comp Shingle 4.00
Interior Wall Construction - 5
Drywall/Sheetrock 27.00
Interior Floor Cover - 14
Carpet 10.00
Heating Fuel - 04
Electric 1.00
Heating Type - 04
Forced Air-Ducted 4.00
Air Conditioning Type - 03
Central 4.00
Bedrooms/Bathrooms/Half-Bathrooms
3/2/0 12.000
Bedrooms
BAS - 3 FUS - 0 LL - 0 _
Bathrooms
BAS - 2 FUS - 0 LL - 0 _
Half-Bathrooms
BAS - 0 FUS - 0 LL - 0 _
Office
BAS - 0 FUS - 0 LL - 0 0
TOTAL POINT VALUE 107.000
BUILDING ADJUSTMENTS
Quality 5 Average 1.0000
Shape/Design 1 Market Adjustment 1.0000
Size Size Size 0.9500
TOTAL ADJUSTMENT FACTOR 0.950
TOTAL QUALITY INDEX 102
USE MOD Eff. Area QUAL BASE RATE RCN EYB AYB
   Standard  0.60000
CREDENCE TO MARKET
50 01 2,667 102 127.50 342043 1965 1876 % GOOD 40.0
DEPR. BUILDING VALUE - CARD 136,820
TYPE: RURAL SINGLE FAMILY RESIDENTIAL Single Family Residential
STYLE: 1 - 1.0 Story
 

Click on image to enlarge
DEPR. OB/XF VALUE - CARD 690
MARKET LAND VALUE - CARD 23,400
TOTAL MARKET VALUE - CARD 160,910
TOTAL APPRAISED VALUE - CARD 160,910
TOTAL APPRAISED VALUE - PARCEL 160,910
TOTAL PRESENT USE VALUE - PARCEL 0
TOTAL VALUE DEFERRED - PARCEL 0
TOTAL TAXABLE VALUE - PARCEL $ 160,910
PRIOR
BUILDING VALUE 65,890
OBXF VALUE 460
LAND VALUE 14,400
PRESENT USE VALUE 0
DEFERRED VALUE 0
TOTAL VALUE 80,750
PERMIT
CODE DATE NOTE NUMBER AMOUNT
ROUT: WTRSHD:
SALES DATA
OFF. RECORD DATE DEED TYPE Q/U V/I INDICATE SALES PRICE
BOOK PAGE MO YR
03524 0415 6 2020 WD C I 0
02945 0550 7 2012 WD C I 0
01016 0288 1 1981 WD U I 0
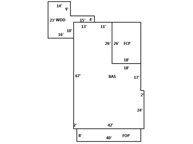
HEATED AREA 2,394
NOTES
.22 FR 2674865954HOUSE EXTENSION REMOD
SUBAREA
TYPE GS AREA % RPL CS
BAS 2,394 100 305235
FCP 468 025 14918
FOP 320 030 12240
WDD 402 015 7650
FIREPLACE 3 - 1 Story Single 2,000
SUBAREA TOTALS 3,584   342,043
CODE QUALITY DESCRIPTION COUNT LTH WTH UNITS UNIT PRICE ORIG % COND BLDG# AYB EYB ANN DEP RATE OVR % COND OB/XF DEPR. VALUE
    STORAGE NV   0 0 1 0.00 100 1 1900 1900 0   100 0
30 2 POLESHELTR   24 16 384 9.00 100 1 1970 1970 S3   20 691
TOTAL OB/XF VALUE 691
BUILDING DIMENSIONS BAS=W11W13S67E2E42N24W2N17W18N26Area:2394;WDD=N4W15N9W14S23E16N10E13Area:402;FOP=S8E40N8W40Area:320;FCP=N26W18S26E18Area a:468;TotalArea:3584  
LAND INFORMATION
HIGHEST AND BEST USE USE CODE LOCAL ZONING FRON TAGE DEPTH DEPTH / SIZE LND MOD COND FACT OTHER ADJUSTMENTS AND NOTES
  RF   AC   LC  TO  OT
ROAD
TYPE
LAND UNIT PRICE TOTAL LAND UNITS UNT TYP TOTAL ADJST ADJUSTED UNIT PRICE LAND VALUE OVERRIDE VALUE LAND NOTES
5010 5010   0 0 1.0000 0 0.9000
  .80 AC
  26,000.00 1.000 LT 0.900 23,400.00 23400 0  
TOTAL MARKET LAND DATA     23,400  
TOTAL PRESENT USE DATA