WAYNE COUNTY 4/5/2026 2:01:38 AM
SUGGS CARRIE JACOBS   Return/Appeal Notes:   Parcel: 3509766787
806 N MADISON AVE PLAT: / UNIQ ID 54072
543570     ID NO: 12000114A07003
COUNTYWIDE ADVALOREM TAX (100), CITY - GOLDSBORO (100)        CARD NO. 1 of 1  
Reval Year: 2025 Tax Year: 2026 MADISON AV 1.0000 LT   SRC=  
Appraised by 60 on 12902 CHRISTIAN SCHOOL AREA TW-12 CI-01 FR-00 EX- AT- LAST ACTION 20241212
CONSTRUCTION DETAIL MARKET VALUE   DEPRECIATION CORRELATION OF VALUE
Foundation - 3
Continuous Footing 5.00
Sub Floor System - 5
Woo w/ Sub Floor 6.00
Exterior Walls - 10
Aluminum/Vinyl Siding 30.00
Roofing Structure - 03
Gable 4.00
Roofing Cover - 03
Asphalt or Comp Shingle 4.00
Interior Wall Construction - 3
Plastered 28.00
Interior Floor Cover - 12
Hardwood 11.00
Interior Floor Cover - 14
Carpet 0.00
Heating Fuel - 02
Oil, Wood, or Coal 1.00
Heating Type - 04
Forced Air-Ducted 4.00
Air Conditioning Type - 03
Central 4.00
Bedrooms/Bathrooms/Half-Bathrooms
2/1/0 6.000
Bedrooms
BAS - 2 FUS - 0 LL - 0 _
Bathrooms
BAS - 1 FUS - 0 LL - 0 _
Half-Bathrooms
BAS - 0 FUS - 0 LL - 0 _
Office
BAS - 0 FUS - 0 LL - 0 0
TOTAL POINT VALUE 103.000
BUILDING ADJUSTMENTS
Quality 5 Average 1.0000
Shape/Design 6 Market Adjustment 1.1000
Size Size Size 1.1000
TOTAL ADJUSTMENT FACTOR 1.210
TOTAL QUALITY INDEX 125
USE MOD Eff. Area QUAL BASE RATE RCN EYB AYB
   Standard  0.50000
CREDENCE TO MARKET
01 01 934 125 156.25 145938 1975 1955 % GOOD 50.0
DEPR. BUILDING VALUE - CARD 72,970
TYPE: SINGLE FAMILY RESIDENTIAL Single Family Residential
STYLE: 1 - 1.0 Story
 

Click on image to enlarge
DEPR. OB/XF VALUE - CARD 580
MARKET LAND VALUE - CARD 6,120
TOTAL MARKET VALUE - CARD 79,670
TOTAL APPRAISED VALUE - CARD 79,670
TOTAL APPRAISED VALUE - PARCEL 79,670
TOTAL PRESENT USE VALUE - PARCEL 0
TOTAL VALUE DEFERRED - PARCEL 0
TOTAL TAXABLE VALUE - PARCEL $ 79,670
PRIOR
BUILDING VALUE 47,630
OBXF VALUE 430
LAND VALUE 6,120
PRESENT USE VALUE 0
DEFERRED VALUE 0
TOTAL VALUE 54,180
PERMIT
CODE DATE NOTE NUMBER AMOUNT
ROUT: WTRSHD:
SALES DATA
OFF. RECORD DATE DEED TYPE Q/U V/I INDICATE SALES PRICE
BOOK PAGE MO YR
02208 0564 5 2004 WD U I 46000
00425 0407 1 1955 WD U I 0
HEATED AREA 850
NOTES
 
SUBAREA
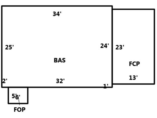
TYPE GS AREA % RPL CS
BAS 850 100 132813
FCP 299 025 11719
FOP 30 030 1406
FIREPLACE 1 - None 0
SUBAREA TOTALS 1,179   145,938
CODE QUALITY DESCRIPTION COUNT LTH WTH UNITS UNIT PRICE ORIG % COND BLDG# AYB EYB ANN DEP RATE OVR % COND OB/XF DEPR. VALUE
01 2 STORAG BLD   12 24 288 20.00 100 1 1970 1970 S3   10 576
TOTAL OB/XF VALUE 576
BUILDING DIMENSIONS BAS=W34S25E2E32N1N24Area:850;FOP=S5E6N5W6Area:30;FCP=E13N23W13S23Area:299;TotalArea:1179  
LAND INFORMATION
HIGHEST AND BEST USE USE CODE LOCAL ZONING FRON TAGE DEPTH DEPTH / SIZE LND MOD COND FACT OTHER ADJUSTMENTS AND NOTES
  RF   AC   LC  TO  OT
ROAD
TYPE
LAND UNIT PRICE TOTAL LAND UNITS UNT TYP TOTAL ADJST ADJUSTED UNIT PRICE LAND VALUE OVERRIDE VALUE LAND NOTES
0100 0100 R-9 72 123 0.9400 2 0.9000
  LOC
  100.00 72.000 FF 0.850 85.00 6120 0  
TOTAL MARKET LAND DATA     6,120  
TOTAL PRESENT USE DATA