WAYNE COUNTY 4/4/2026 3:24:31 PM
WIGGINS ERIC WAYNE & W RACHEL   Return/Appeal Notes:   Parcel: 2595938002
EAGLES NEST RD PLAT: / UNIQ ID 58461
464660      
COUNTYWIDE ADVALOREM TAX (100), FIRE - DUDLEY (100), SW FFEEFEE (1)        CARD NO. 1 of 1  
Reval Year: 2025 Tax Year: 2026 EAGLES NEST RD REAR 0.5000 AC   SRC=  
Appraised by 88 on 07/07/2010 03909 INDIAN SPRINGS TOWNSHIP TW-03 CI-00 FR-04 EX- AT- LAST ACTION 20241216
CONSTRUCTION DETAIL MARKET VALUE   DEPRECIATION CORRELATION OF VALUE
Foundation - 3
Continuous Footing 5.00
Sub Floor System - 4
PLYWOOD 6.00
Exterior Walls - 10
Aluminum/Vinyl Siding 30.00
Roofing Structure - 03
Gable 4.00
Roofing Cover - 03
Asphalt or Comp Shingle 4.00
Interior Wall Construction - 5
Drywall/Sheetrock 27.00
Interior Floor Cover - 08
Sheet Vinyl 9.00
Interior Floor Cover - 14
Carpet 0.00
Heating Fuel - 04
Electric 1.00
Heating Type - 10
Heat Pump 4.00
Air Conditioning Type - 03
Central 4.00
Bedrooms/Bathrooms/Half-Bathrooms
3/2/0 12.000
Bedrooms
BAS - 3 FUS - 0 LL - 0 _
Bathrooms
BAS - 2 FUS - 0 LL - 0 _
Half-Bathrooms
BAS - 0 FUS - 0 LL - 0 _
Office
BAS - 0 FUS - 0 LL - 0 0
TOTAL POINT VALUE 106.000
BUILDING ADJUSTMENTS
Quality 4 Below Average + 0.9500
Shape/Design 1 Market Adjustment 1.0000
Size Size Size 0.9500
TOTAL ADJUSTMENT FACTOR 0.900
TOTAL QUALITY INDEX 96
USE MOD Eff. Area QUAL BASE RATE RCN EYB AYB
   Standard  0.23000
CREDENCE TO MARKET
51 01 2,210 96 110.40 245124 2002 2002 % GOOD 77.0
DEPR. BUILDING VALUE - CARD 188,750
TYPE: MODULAR HOMES Single Family Residential
STYLE: 1 - 1.0 Story
 

Click on image to enlarge
DEPR. OB/XF VALUE - CARD 0
MARKET LAND VALUE - CARD 13,600
TOTAL MARKET VALUE - CARD 202,350
TOTAL APPRAISED VALUE - CARD 202,350
TOTAL APPRAISED VALUE - PARCEL 202,350
TOTAL PRESENT USE VALUE - PARCEL 0
TOTAL VALUE DEFERRED - PARCEL 0
TOTAL TAXABLE VALUE - PARCEL $ 202,350
PRIOR
BUILDING VALUE 141,820
OBXF VALUE 0
LAND VALUE 8,800
PRESENT USE VALUE 0
DEFERRED VALUE 0
TOTAL VALUE 150,620
PERMIT
CODE DATE NOTE NUMBER AMOUNT
ROUT: WTRSHD:
SALES DATA
OFF. RECORD DATE DEED TYPE Q/U V/I INDICATE SALES PRICE
BOOK PAGE MO YR
01899 0625 11 2001 WD U I 0
HEATED AREA 2,052
NOTES
FROM 2595-93-9111 P9-02 MODULAR FOR 2003
227 EAGLES NEST.
SUBAREA
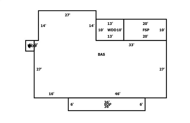
TYPE GS AREA % RPL CS
BAS 2,052 100 226541
FOP 216 030 7176
FSP 200 035 7728
WDD 150 015 2539
FIREPLACE 2 - Pre-Fab 1,140
SUBAREA TOTALS 2,618   245,124
CODE QUALITY DESCRIPTION COUNT LTH WTH UNITS UNIT PRICE ORIG % COND BLDG# SIZE FACT AYB EYB ANN DEP RATE OVR % COND OB/XF DEPR. VALUE
TOTAL OB/XF VALUE 0
BUILDING DIMENSIONS BAS=W33N14W27S14W2S27E16E46N27Area:2,052.0;WDD=N10E13S10W13Area:130.0;WDD=W4S5E4N5Area:20.0;FOP=S6E36N6W36Area:216.0;FSP P=E20S10W20N10Area:200.0;TotalArea:2,618.0  
LAND INFORMATION
HIGHEST AND BEST USE USE CODE LOCAL ZONING FRON TAGE DEPTH DEPTH / SIZE LND MOD COND FACT OTHER ADJUSTMENTS AND NOTES
  RF   AC   LC  TO  OT
ROAD
TYPE
LAND UNIT PRICE TOTAL LAND UNITS UNT TYP TOTAL ADJST ADJUSTED UNIT PRICE LAND VALUE OVERRIDE VALUE LAND NOTES
5030 5030   0 0 1.0000 0 0.8000
  .50 AC
  17,000.00 1.000 LT 0.800 13,600.00 13600 0  
TOTAL MARKET LAND DATA     13,600  
TOTAL PRESENT USE DATA