WAYNE COUNTY 4/2/2026 9:28:29 PM
POWELL DONNELL J   Return/Appeal Notes:   Parcel: 3559263533
941 LAGRANGE RD PLAT: / UNIQ ID 24561
709580     ID NO: 05A02000002003
COUNTYWIDE ADVALOREM TAX (100), SW FFEEFEE (1), FIRE - NEW HOPE W (100)        CARD NO. 1 of 1  
Reval Year: 2025 Tax Year: 2026 941 LAGRANGE RD 0.5800 AC   SRC=  
Appraised by 60 on 08/25/2010 05907 SAULSTON EAST TW-05 CI-00 FR-31 EX- AT- LAST ACTION 20230724
CONSTRUCTION DETAIL MARKET VALUE   DEPRECIATION CORRELATION OF VALUE
Foundation - 3
Continuous Footing 5.00
Sub Floor System - 4
PLYWOOD 6.00
Exterior Walls - 21
Face Brick 34.00
Roofing Structure - 03
Gable 4.00
Roofing Cover - 03
Asphalt or Comp Shingle 4.00
Interior Wall Construction - 5
Drywall/Sheetrock 27.00
Interior Floor Cover - 08
Sheet Vinyl 9.00
Interior Floor Cover - 14
Carpet 0.00
Heating Fuel - 04
Electric 1.00
Heating Type - 02
Baseboard Heat 2.00
Air Conditioning Type - 01
None 0.00
Bedrooms/Bathrooms/Half-Bathrooms
3/1/0 8.000
Bedrooms
BAS - 3 FUS - 0 LL - 0 _
Bathrooms
BAS - 1 FUS - 0 LL - 0 _
Half-Bathrooms
BAS - 0 FUS - 0 LL - 0 _
Office
BAS - 0 FUS - 0 LL - 0 0
TOTAL POINT VALUE 100.000
BUILDING ADJUSTMENTS
Quality 5 Average 1.0000
Shape/Design 1 Market Adjustment 1.0000
Size Size Size 1.1000
TOTAL ADJUSTMENT FACTOR 1.100
TOTAL QUALITY INDEX 110
USE MOD Eff. Area QUAL BASE RATE RCN EYB AYB
   Standard  0.50000
CREDENCE TO MARKET
50 01 1,087 110 137.50 149463 1975 1972 % GOOD 50.0
DEPR. BUILDING VALUE - CARD 74,730
TYPE: RURAL SINGLE FAMILY RESIDENTIAL Single Family Residential
STYLE: 1 - 1.0 Story
 

Click on image to enlarge
DEPR. OB/XF VALUE - CARD 0
MARKET LAND VALUE - CARD 20,800
TOTAL MARKET VALUE - CARD 95,530
TOTAL APPRAISED VALUE - CARD 95,530
TOTAL APPRAISED VALUE - PARCEL 95,530
TOTAL PRESENT USE VALUE - PARCEL 0
TOTAL VALUE DEFERRED - PARCEL 0
TOTAL TAXABLE VALUE - PARCEL $ 95,530
PRIOR
BUILDING VALUE 53,570
OBXF VALUE 0
LAND VALUE 13,600
PRESENT USE VALUE 0
DEFERRED VALUE 0
TOTAL VALUE 67,170
PERMIT
CODE DATE NOTE NUMBER AMOUNT
ROUT: WTRSHD:
SALES DATA
OFF. RECORD DATE DEED TYPE Q/U V/I INDICATE SALES PRICE
BOOK PAGE MO YR
02846 0805 3 2011 WD C I 0
00793 0216 1 1901 WD U I 0
00793 0216 1 1901 WD U I 0
00793 0016 1 1901 WD U V 0
HEATED AREA 1,000
NOTES
P1-01 FIRE/RENOV.
RECORDED YEAR 1986
FIELD CK 7/16/01-HSE IS
REPAIRED.
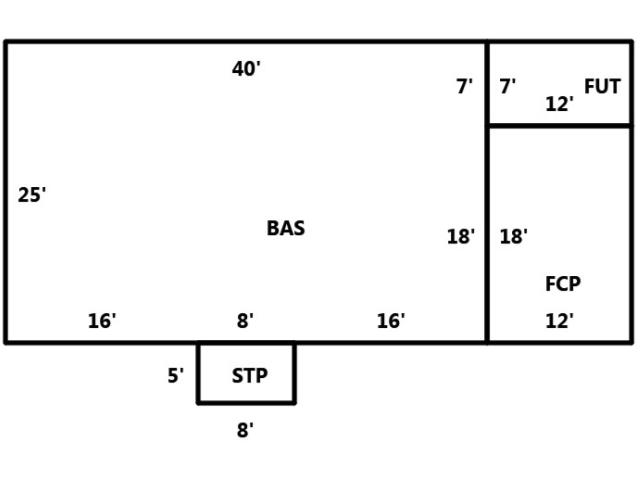
SUBAREA
TYPE GS AREA % RPL CS
BAS 1,000 100 137500
FCP 216 025 7425
FUT 84 035 3988
STP 40 010 550
FIREPLACE 1 - None 0
SUBAREA TOTALS 1,340   149,463
CODE QUALITY DESCRIPTION COUNT LTH WTH UNITS UNIT PRICE ORIG % COND BLDG# SIZE FACT AYB EYB ANN DEP RATE OVR % COND OB/XF DEPR. VALUE
TOTAL OB/XF VALUE 0
BUILDING DIMENSIONS BAS=W40S25E16E8E16N18N7Area:1000;STP=E8S5W8N5Area:40;FCP=E12N18W12S18Area:216;FUT=N7W12S7E12Area:84;TotalArea:1340  
LAND INFORMATION
HIGHEST AND BEST USE USE CODE LOCAL ZONING FRON TAGE DEPTH DEPTH / SIZE LND MOD COND FACT OTHER ADJUSTMENTS AND NOTES
  RF   AC   LC  TO  OT
ROAD
TYPE
LAND UNIT PRICE TOTAL LAND UNITS UNT TYP TOTAL ADJST ADJUSTED UNIT PRICE LAND VALUE OVERRIDE VALUE LAND NOTES
5010 5010   0 0 1.0000 0 0.8000
  .58AC
  26,000.00 1.000 LT 0.800 20,800.00 20800 0  
TOTAL MARKET LAND DATA     20,800  
TOTAL PRESENT USE DATA