WAYNE COUNTY 4/5/2026 2:02:41 AM
SUGGS DAVID   Return/Appeal Notes:   Parcel: 2674419515
3382 NAHUNTA RD PLAT: / UNIQ ID 37932
743712      
COUNTYWIDE ADVALOREM TAX (100), FIRE - NAHUNTA (100), SW FFEEFEE (1)        CARD NO. 1 of 1  
Reval Year: 2025 Tax Year: 2026 3382 NAHUNTA RD 1.3600 AC   SRC=  
Appraised by 88 on 10/27/2010 08902 BUCK SWAMP CENTRAL TW-08 CI-00 FR-09 EX- AT- LAST ACTION 20241218
CONSTRUCTION DETAIL MARKET VALUE   DEPRECIATION CORRELATION OF VALUE
Foundation - 3
Continuous Footing 5.00
Sub Floor System - 4
PLYWOOD 6.00
Exterior Walls - 10
Aluminum/Vinyl Siding 30.00
Roofing Structure - 03
Gable 4.00
Roofing Cover - 03
Asphalt or Comp Shingle 4.00
Interior Wall Construction - 5
Drywall/Sheetrock 27.00
Interior Floor Cover - 08
Sheet Vinyl 9.00
Interior Floor Cover - 14
Carpet 0.00
Heating Fuel - 04
Electric 1.00
Heating Type - 04
Forced Air-Ducted 4.00
Air Conditioning Type - 03
Central 4.00
Bedrooms/Bathrooms/Half-Bathrooms
3/2/0 12.000
Bedrooms
BAS - 3 FUS - 0 LL - 0 _
Bathrooms
BAS - 2 FUS - 0 LL - 0 _
Half-Bathrooms
BAS - 0 FUS - 0 LL - 0 _
Office
BAS - 0 FUS - 0 LL - 0 0
TOTAL POINT VALUE 106.000
BUILDING ADJUSTMENTS
Quality 6 Average + 1.1000
Shape/Design 1 Market Adjustment 1.0000
Size Size Size 0.9500
TOTAL ADJUSTMENT FACTOR 1.050
TOTAL QUALITY INDEX 111
USE MOD Eff. Area QUAL BASE RATE RCN EYB AYB
   Standard  0.58000
CREDENCE TO MARKET
02 01 2,183 111 94.35 207286 1999 1999 % GOOD 42.0
DEPR. BUILDING VALUE - CARD 87,060
TYPE: MOBILE HOME Single Family Residential
STYLE: 1 - 1.0 Story
 

Click on image to enlarge
DEPR. OB/XF VALUE - CARD 460
MARKET LAND VALUE - CARD 36,720
TOTAL MARKET VALUE - CARD 124,240
TOTAL APPRAISED VALUE - CARD 124,240
TOTAL APPRAISED VALUE - PARCEL 124,240
TOTAL PRESENT USE VALUE - PARCEL 0
TOTAL VALUE DEFERRED - PARCEL 0
TOTAL TAXABLE VALUE - PARCEL $ 124,240
PRIOR
BUILDING VALUE 64,870
OBXF VALUE 710
LAND VALUE 24,480
PRESENT USE VALUE 0
DEFERRED VALUE 0
TOTAL VALUE 90,060
PERMIT
CODE DATE NOTE NUMBER AMOUNT
ROUT: WTRSHD:
SALES DATA
OFF. RECORD DATE DEED TYPE Q/U V/I INDICATE SALES PRICE
BOOK PAGE MO YR
03245 0424 8 2016 WD Q I 79000
01712 0270 4 1999 WD U I 10000
HEATED AREA 2,012
NOTES
FR 2674-51-3760.P3-99 TW
FOR 2000
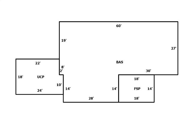
SUBAREA
TYPE GS AREA % RPL CS
BAS 2,012 100 189832
FSP 252 035 8303
UCP 416 020 7831
FIREPLACE 2 - Pre-Fab 1,320
SUBAREA TOTALS 2,680   207,286
CODE QUALITY DESCRIPTION COUNT LTH WTH UNITS UNIT PRICE ORIG % COND BLDG# AYB EYB ANN DEP RATE OVR % COND OB/XF DEPR. VALUE
01 1 STORAG BLD   20 12 240 10.00 100 1 1998 1998 S3   19 456
TOTAL OB/XF VALUE 456
BUILDING DIMENSIONS BAS=W60S19S8E2S14E28N14E30N27Area:2012;UCP=W22S18E24N10W2N8Area:416;FSP=E18N14W18S14Area:252;TotalArea:2680  
LAND INFORMATION
HIGHEST AND BEST USE USE CODE LOCAL ZONING FRON TAGE DEPTH DEPTH / SIZE LND MOD COND FACT OTHER ADJUSTMENTS AND NOTES
  RF   AC   LC  TO  OT
ROAD
TYPE
LAND UNIT PRICE TOTAL LAND UNITS UNT TYP TOTAL ADJST ADJUSTED UNIT PRICE LAND VALUE OVERRIDE VALUE LAND NOTES
5010 5010   0 0 1.0000 0 1.0000     27,000.00 1.360 AC 1.000 27,000.00 36720 0  
TOTAL MARKET LAND DATA 1.360   36,720  
TOTAL PRESENT USE DATA