WAYNE COUNTY 4/2/2026 5:20:47 AM
BRITT BARBARA WEBB ETAL   Return/Appeal Notes:   Parcel: 3603679571
398 BIG DADDY'S RD PLAT: / UNIQ ID 41665
752493     ID NO: 10E04000001010
COUNTYWIDE ADVALOREM TAX (100), FIRE - PLEASANT GROVE (100), SW FFEEFEE (1)        CARD NO. 1 of 1  
Reval Year: 2025 Tax Year: 2026 398 BIG DADDY'S RD 1.0000 LT   SRC=  
Appraised by 60 on 11/23/2010 10902 WEST SIDE OF PIKEVILLE TN TW-10 CI-00 FR-17 EX- AT- LAST ACTION 20241218
CONSTRUCTION DETAIL MARKET VALUE   DEPRECIATION CORRELATION OF VALUE
Foundation - 3
Continuous Footing 5.00
Sub Floor System - 4
PLYWOOD 6.00
Exterior Walls - 21
Face Brick 34.00
Roofing Structure - 03
Gable 4.00
Roofing Cover - 03
Asphalt or Comp Shingle 4.00
Interior Wall Construction - 4
Plywood Panel 24.00
Interior Wall Construction - 5
Drywall/Sheetrock 0.00
Interior Floor Cover - 14
Carpet 10.00
Heating Fuel - 04
Electric 1.00
Heating Type - 04
Forced Air-Ducted 4.00
Air Conditioning Type - 03
Central 4.00
Bedrooms/Bathrooms/Half-Bathrooms
3/1/0 8.000
Bedrooms
BAS - 3 FUS - 0 LL - 0 _
Bathrooms
BAS - 1 FUS - 0 LL - 0 _
Half-Bathrooms
BAS - 0 FUS - 0 LL - 0 _
Office
BAS - 0 FUS - 0 LL - 0 0
TOTAL POINT VALUE 104.000
BUILDING ADJUSTMENTS
Quality 5 Average 1.0000
Shape/Design 1 Market Adjustment 1.0000
Size Size Size 1.0500
TOTAL ADJUSTMENT FACTOR 1.050
TOTAL QUALITY INDEX 109
USE MOD Eff. Area QUAL BASE RATE RCN EYB AYB
   Standard  0.36000
CREDENCE TO MARKET
50 01 1,129 109 136.25 155826 1989 1979 % GOOD 64.0
DEPR. BUILDING VALUE - CARD 99,730
TYPE: RURAL SINGLE FAMILY RESIDENTIAL Single Family Residential
STYLE: 1 - 1.0 Story
 

Click on image to enlarge
DEPR. OB/XF VALUE - CARD 2,690
MARKET LAND VALUE - CARD 21,600
TOTAL MARKET VALUE - CARD 124,020
TOTAL APPRAISED VALUE - CARD 124,020
TOTAL APPRAISED VALUE - PARCEL 124,020
TOTAL PRESENT USE VALUE - PARCEL 0
TOTAL VALUE DEFERRED - PARCEL 0
TOTAL TAXABLE VALUE - PARCEL $ 124,020
PRIOR
BUILDING VALUE 60,270
OBXF VALUE 2,090
LAND VALUE 14,400
PRESENT USE VALUE 0
DEFERRED VALUE 0
TOTAL VALUE 76,760
PERMIT
CODE DATE NOTE NUMBER AMOUNT
ROUT: WTRSHD:
SALES DATA
OFF. RECORD DATE DEED TYPE Q/U V/I INDICATE SALES PRICE
BOOK PAGE MO YR
01905 0289 12 2001 WD C I 0
00951 0684 1 1978 WD U I 0
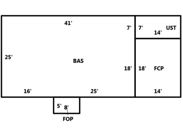
HEATED AREA 1,025
NOTES
 
SUBAREA
TYPE GS AREA % RPL CS
BAS 1,025 100 139656
FCP 252 025 8584
FOP 40 030 1635
UST 98 030 3951
FIREPLACE 3 - 1 Story Single 2,000
SUBAREA TOTALS 1,415   155,826
CODE QUALITY DESCRIPTION COUNT LTH WTH UNITS UNIT PRICE ORIG % COND BLDG# AYB EYB ANN DEP RATE OVR % COND OB/XF DEPR. VALUE
02 2 GARAGE   24 20 480 25.00 100 1 1990 1990 S3   20 2400
39 2 CANOPY   24 12 288 5.00 100 1 1990 1990 S3   20 288
TOTAL OB/XF VALUE 2,688
BUILDING DIMENSIONS BAS=W41S25E16E25N18N7Area:1025;FOP=S5E8N5W8Area:40;FCP=E14N18W14S18Area:252;UST=E14N7W14S7Area:98;TotalArea:1415  
LAND INFORMATION
HIGHEST AND BEST USE USE CODE LOCAL ZONING FRON TAGE DEPTH DEPTH / SIZE LND MOD COND FACT OTHER ADJUSTMENTS AND NOTES
  RF   AC   LC  TO  OT
ROAD
TYPE
LAND UNIT PRICE TOTAL LAND UNITS UNT TYP TOTAL ADJST ADJUSTED UNIT PRICE LAND VALUE OVERRIDE VALUE LAND NOTES
5010 5010   0 0 1.0000 0 0.8000
  .50AC
  27,000.00 1.000 LT 0.800 21,600.00 21600    
TOTAL MARKET LAND DATA     21,600  
TOTAL PRESENT USE DATA