WAYNE COUNTY 4/2/2026 5:20:42 AM
BRITT SAMUEL T        BRITT ASHLEY WIFE Return/Appeal Notes:   Parcel: 2524509151
3182 DOBBERSVILLE RD PLAT: M/18G UNIQ ID 369
758432     ID NO: 01M04000004010
COUNTYWIDE ADVALOREM TAX (100), FIRE - JORDAN CHAPEL (100), SW FFEEFEE (1)        CARD NO. 1 of 1  
Reval Year: 2025 Tax Year: 2026 3182 DOBBERSVILLE ROAD/TRACT 3 1.1700 AC   SRC=  
Appraised by 88 on 05/17/2010 01904 GRANTHAM TOWNSHIP TW-01 CI-00 FR-15 EX- AT- LAST ACTION 20241219
CONSTRUCTION DETAIL MARKET VALUE   DEPRECIATION CORRELATION OF VALUE
Foundation - 3
Continuous Footing 5.00
Sub Floor System - 5
Woo w/ Sub Floor 6.00
Exterior Walls - 21
Face Brick 34.00
Roofing Structure - 04
Hip 5.00
Roofing Cover - 03
Asphalt or Comp Shingle 4.00
Interior Wall Construction - 4
Plywood Panel 24.00
Interior Wall Construction - 5
Drywall/Sheetrock 0.00
Interior Floor Cover - 08
Sheet Vinyl 9.00
Interior Floor Cover - 14
Carpet 0.00
Heating Fuel - 03
Gas 1.00
Heating Type - 04
Forced Air-Ducted 4.00
Air Conditioning Type - 03
Central 4.00
Bedrooms/Bathrooms/Half-Bathrooms
3/2/0 12.000
Bedrooms
BAS - 3 FUS - 0 LL - 0 _
Bathrooms
BAS - 2 FUS - 0 LL - 0 _
Half-Bathrooms
BAS - 0 FUS - 0 LL - 0 _
Office
BAS - 0 FUS - 0 LL - 0 0
TOTAL POINT VALUE 108.000
BUILDING ADJUSTMENTS
Quality 5 Average 1.0000
Shape/Design 3 Market Adjustment 1.0400
Size Size Size 0.9800
TOTAL ADJUSTMENT FACTOR 1.020
TOTAL QUALITY INDEX 110
USE MOD Eff. Area QUAL BASE RATE RCN EYB AYB
   Standard  0.43000
CREDENCE TO MARKET
50 01 2,244 110 137.50 310551 1982 1962 % GOOD 57.0
DEPR. BUILDING VALUE - CARD 177,010
TYPE: RURAL SINGLE FAMILY RESIDENTIAL Single Family Residential
STYLE: 1 - 1.0 Story
 

Click on image to enlarge
DEPR. OB/XF VALUE - CARD 2,640
MARKET LAND VALUE - CARD 29,250
TOTAL MARKET VALUE - CARD 208,900
TOTAL APPRAISED VALUE - CARD 208,900
TOTAL APPRAISED VALUE - PARCEL 208,900
TOTAL PRESENT USE VALUE - PARCEL 0
TOTAL VALUE DEFERRED - PARCEL 0
TOTAL TAXABLE VALUE - PARCEL $ 208,900
PRIOR
BUILDING VALUE 111,530
OBXF VALUE 2,020
LAND VALUE 18,720
PRESENT USE VALUE 0
DEFERRED VALUE 0
TOTAL VALUE 132,270
PERMIT
CODE DATE NOTE NUMBER AMOUNT
ROUT: WTRSHD:
SALES DATA
OFF. RECORD DATE DEED TYPE Q/U V/I INDICATE SALES PRICE
BOOK PAGE MO YR
03651 0273 8 2021 WD U I 140000
03085 0427 4 2014 WD C I 0
00558 0441 1 1961 WD U I 0
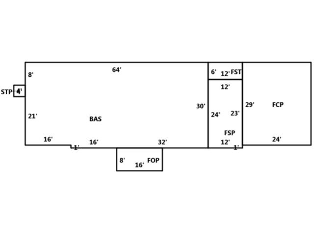
HEATED AREA 1,904
NOTES
ADJ AC PER M/18G/.05 FR 2524412271P10-87 ADDN 100%
FOR 88
SUBAREA
TYPE GS AREA % RPL CS
BAS 1,904 100 261800
FCP 696 025 23925
FOP 128 030 5225
FSP 288 035 13888
FST 72 035 3438
STP 16 010 275
FIREPLACE 3 - 1 Story Single 2,000
SUBAREA TOTALS 3,104   310,551
CODE QUALITY DESCRIPTION COUNT LTH WTH UNITS UNIT PRICE ORIG % COND BLDG# AYB EYB ANN DEP RATE OVR % COND OB/XF DEPR. VALUE
01 2 STORAG BLD   32 30 960 20.00 100 1 1965 1965 S3   10 1920
24 2 SHED (OPEN ENDED)   20 24 480 15.00 100 1 1965 1965 S3   10 720
TOTAL OB/XF VALUE 2,640
BUILDING DIMENSIONS BAS=W64S8S21E16S1E16E32N30Area:1904;STP=W4S4E4N4Area:16;FOP=S8E16N8W16Area:128;FSP=E12N1N23W12S24Area:288;FCP=E24N29W24S S29Area:696;FST=N6W12S6E12Area:72;TotalArea:3104  
LAND INFORMATION
HIGHEST AND BEST USE USE CODE LOCAL ZONING FRON TAGE DEPTH DEPTH / SIZE LND MOD COND FACT OTHER ADJUSTMENTS AND NOTES
  RF   AC   LC  TO  OT
ROAD
TYPE
LAND UNIT PRICE TOTAL LAND UNITS UNT TYP TOTAL ADJST ADJUSTED UNIT PRICE LAND VALUE OVERRIDE VALUE LAND NOTES
5010 5010   0 0 1.0000 0 1.0000
  
  25,000.00 1.170 AC 1.000 25,000.00 29250 0  
TOTAL MARKET LAND DATA 1.170   29,250  
TOTAL PRESENT USE DATA