WAYNE COUNTY 4/4/2026 3:26:20 PM
WIGGINS ALLEN WAYNE   Return/Appeal Notes:   Parcel: 2595737980
SLEEPY CREEK RD PLAT: / UNIQ ID 14584
71772750     ID NO: 03F12000001007A
COUNTYWIDE ADVALOREM TAX (100), FIRE - DUDLEY (100)        CARD NO. 1 of 1  
Reval Year: 2025 Tax Year: 2026 SLEEPY CREEK RD 1.0000 LT   SRC=  
Appraised by 60 on 03909 INDIAN SPRINGS TOWNSHIP TW-03 CI-00 FR-04 EX- AT- LAST ACTION 20241230
CONSTRUCTION DETAIL MARKET VALUE   DEPRECIATION CORRELATION OF VALUE
Foundation - 4
Spread Footing 7.00
Sub Floor System - 2
Slab on Grade 16.00
Exterior Walls - 02
Corrugated Mtl (Light) 5.00
Roofing Structure - 07
Wood Truss 8.00
Roofing Cover - 12
Modular Metal 8.00
Interior Wall Construction - 1
Masonry or Minimum 2.00
Interior Floor Cover - 03
Concrete Finished 1.00
Heating Fuel - 01
None 0.00
Heating Type - 01
None 0.00
Air Conditioning Type - 01
None 0.00
Structural Frame - 02
Wood Frame 9.00
Floor Number - 01
Floor 0.00
Commercial Heat & Air - 1
None 0.00
Half-Bathrooms
BAS - 0 FUS - 0 LL - 0 _
Office
BAS - 0 FUS - 0 LL - 0 0
TOTAL POINT VALUE 56.000
BUILDING ADJUSTMENTS
Non-Std Wall Height 0 Non-Std Wall Height 1.0000
Quality 3 Below Average 0.9000
Shape/Design 1 Market Adjustment 1.0000
Size Size Size 1.0000
TOTAL ADJUSTMENT FACTOR 0.900
TOTAL QUALITY INDEX 50
USE MOD Eff. Area QUAL BASE RATE RCN EYB AYB
   Standard  0.70000
CREDENCE TO MARKET
49 06 4,164 50 41.00 170724 1985 1985 % GOOD 30.0
DEPR. BUILDING VALUE - CARD 51,220
TYPE: STEEL FRAME WAREHOUSE Warehouse/Industrial
STYLE: 1 - 1.0 Story
 

Click on image to enlarge
DEPR. OB/XF VALUE - CARD 1,120
MARKET LAND VALUE - CARD 19,000
TOTAL MARKET VALUE - CARD 71,340
TOTAL APPRAISED VALUE - CARD 71,340
TOTAL APPRAISED VALUE - PARCEL 71,340
TOTAL PRESENT USE VALUE - PARCEL 0
TOTAL VALUE DEFERRED - PARCEL 0
TOTAL TAXABLE VALUE - PARCEL $ 71,340
PRIOR
BUILDING VALUE 26,960
OBXF VALUE 840
LAND VALUE 15,000
PRESENT USE VALUE 0
DEFERRED VALUE 0
TOTAL VALUE 42,800
PERMIT
CODE DATE NOTE NUMBER AMOUNT
ROUT: WTRSHD:
SALES DATA
OFF. RECORD DATE DEED TYPE Q/U V/I INDICATE SALES PRICE
BOOK PAGE MO YR
01436 0659 7 1994 WD U I 0
01091 0446 1 1985   U I 5000
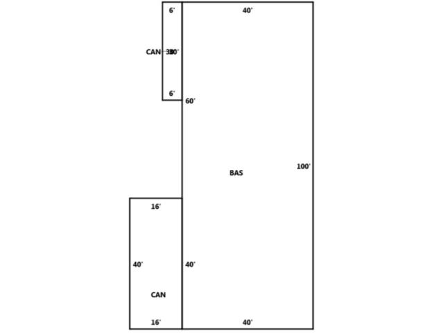
BUILDING AREA 4,000
NOTES
.89 AC
SUBAREA
TYPE GS AREA % RPL CS
BAS 4,000 100 164000
CAN 820 020 6724
FIREPLACE 1 - None 0
SUBAREA TOTALS 4,820   170,724
CODE QUALITY DESCRIPTION COUNT LTH WTH UNITS UNIT PRICE ORIG % COND BLDG# AYB EYB ANN DEP RATE OVR % COND OB/XF DEPR. VALUE
01 2 STORAG BLD   51 11 561 20.00 100 1 1975 1975 S3   10 1122
TOTAL OB/XF VALUE 1,122
BUILDING DIMENSIONS BAS=W40S60S40E40N100Area:4000;CAN=W6S30E6N30Area:180;CAN=W16S40E16N40Area:640;TotalArea:4820  
LAND INFORMATION
HIGHEST AND BEST USE USE CODE LOCAL ZONING FRON TAGE DEPTH DEPTH / SIZE LND MOD COND FACT OTHER ADJUSTMENTS AND NOTES
  RF   AC   LC  TO  OT
ROAD
TYPE
LAND UNIT PRICE TOTAL LAND UNITS UNT TYP TOTAL ADJST ADJUSTED UNIT PRICE LAND VALUE OVERRIDE VALUE LAND NOTES
1000 1000   0 0 1.0000 0 1.0000
  .89
  19,000.00 1.000 LT 1.000 19,000.00 19000    
TOTAL MARKET LAND DATA     19,000  
TOTAL PRESENT USE DATA