WAYNE COUNTY 4/2/2026 9:22:45 PM
POWELL FAMILY VENTURES LLC   Return/Appeal Notes:   Parcel: 3509244789
100 LIONEL ST PLAT: / UNIQ ID 51476
75341980     ID NO: 12000027002001
COUNTYWIDE ADVALOREM TAX (100), CITY - GOLDSBORO (100)        CARD NO. 1 of 1  
Reval Year: 2025 Tax Year: 2026 COR WALNUT & LIONEL ST 1.0500 AC   SRC=  
Appraised by on 01402 EVERGREEN AREA TW-12 CI-01 FR-00 EX- AT- LAST ACTION 20241230
CONSTRUCTION DETAIL MARKET VALUE   DEPRECIATION CORRELATION OF VALUE
Foundation - 4
Spread Footing 6.00
Sub Floor System - 2
Slab on Grade 6.00
Exterior Walls - 21
Face Brick 15.00
Exterior Walls - 24
Modular Metal 0.00
Roofing Structure - 10
Steel Frame or Truss 7.00
Roofing Cover - 04
Built Up Tar Gravel 7.00
Interior Wall Construction - 1
Masonry or Minimum 10.00
Interior Wall Construction - 5
Drywall/Sheetrock 0.00
Interior Floor Cover - 05
Asphalt Tile 7.00
Heating Fuel - 02
Oil, Wood, or Coal 0.00
Heating Type - 04
Forced Air-Ducted 10.00
Air Conditioning Type - 03
Central 12.00
Structural Frame - 04
Masonry 12.00
Ceiling & Insulation - 05
Not Suspended - Ceiling Insulated 1.00
Commercial Heat & Air - 2
Packaged Units 1.00
Half-Bathrooms
BAS - 0 FUS - 0 LL - 0 _
Plumbing Fixtures
20.00 5.000
Office
BAS - 0 FUS - 0 LL - 0 0
TOTAL POINT VALUE 99.000
BUILDING ADJUSTMENTS
Non-Std Wall Height 0 Non-Std Wall Height 1.0000
Quality 5 Average 1.0000
Shape/Design 1 Market Adjustment 1.0000
Size Size Size 1.0000
TOTAL ADJUSTMENT FACTOR 1.000
TOTAL QUALITY INDEX 99
USE MOD Eff. Area QUAL BASE RATE RCN EYB AYB
   Standard  0.67000
CREDENCE TO MARKET
14 07 14,271 99 122.76 1751907 1988 1958 % GOOD 33.0
DEPR. BUILDING VALUE - CARD 578,130
TYPE: SUPERMARKET Commercial
STYLE: 1 - 1.0 Story
 

Click on image to enlarge
DEPR. OB/XF VALUE - CARD 40,400
MARKET LAND VALUE - CARD 31,650
TOTAL MARKET VALUE - CARD 650,180
TOTAL APPRAISED VALUE - CARD 650,180
TOTAL APPRAISED VALUE - PARCEL 650,180
TOTAL PRESENT USE VALUE - PARCEL 0
TOTAL VALUE DEFERRED - PARCEL 0
TOTAL TAXABLE VALUE - PARCEL $ 650,180
PRIOR
BUILDING VALUE 425,260
OBXF VALUE 11,780
LAND VALUE 25,320
PRESENT USE VALUE 0
DEFERRED VALUE 0
TOTAL VALUE 462,360
PERMIT
CODE DATE NOTE NUMBER AMOUNT
ROUT: WTRSHD:
SALES DATA
OFF. RECORD DATE DEED TYPE Q/U V/I INDICATE SALES PRICE
BOOK PAGE MO YR
02938 0695 6 2012 WD C I 0
01565 0703 12 1996 WD U I 175000
01336 0292 6 1992 WD U I 0
01146 0735 10 1986 WD U I 0
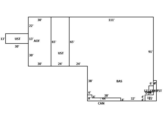
BUILDING AREA 12,807
NOTES
p10-14 **NVE**PIGGLY WIGGLY REMOD FOR
1989 P3-93 REMOD INT FOR 1994 P8-05 RE
MODEL **NVE**
SUBAREA
TYPE GS AREA % RPL CS
AOF 1,950 120 287258
BAS 10,857 100 1332805
CAN 396 015 7243
FST 72 055 4910
UST 1,950 050 119691
FIREPLACE 1 - None 0
SUBAREA TOTALS 15,225   1,751,907
CODE QUALITY DESCRIPTION COUNT LTH WTH UNITS UNIT PRICE ORIG % COND BLDG# AYB EYB ANN DEP RATE OVR % COND OB/XF DEPR. VALUE
09 2 ASPHPAVING   0 0 29,438 2.25 100 1 1980 2012 S3   61 40404
TOTAL OB/XF VALUE 40,404
BUILDING DIMENSIONS BAS=W111S65E24S38E6S4E38S4E32N4N4E5N12E6N91Area:10857;UST=W24S65E24N65Area:1560;AOF=W30S22S13S30E30N65Area:1950;UST=S13W W30N13E30Area:390;CAN=S8E44N4W38N4W6Area:200;CAN=S4E15N27W4S7S12W11S4Area:196;FST=W6S12E6N12Area:72;TotalArea:15225  
LAND INFORMATION
HIGHEST AND BEST USE USE CODE LOCAL ZONING FRON TAGE DEPTH DEPTH / SIZE LND MOD COND FACT OTHER ADJUSTMENTS AND NOTES
  RF   AC   LC  TO  OT
ROAD
TYPE
LAND UNIT PRICE TOTAL LAND UNITS UNT TYP TOTAL ADJST ADJUSTED UNIT PRICE LAND VALUE OVERRIDE VALUE LAND NOTES
1400 1400 NB 323 141 0.9800 2 1.0000
  
  100.00 323.000 FF 0.980 98.00 31654 0  
TOTAL MARKET LAND DATA     31,650  
TOTAL PRESENT USE DATA