WAYNE COUNTY 4/2/2026 9:24:40 PM
POWELL JEFFREY        POWELL CANDACE Return/Appeal Notes:   Parcel: 2579385750
1476 OLD SMITHFIELD RD PLAT: / UNIQ ID 33597
768973     ID NO: 07H08000001006
COUNTYWIDE ADVALOREM TAX (100), FIRE - ROSEWOOD (100), SW FFEEFEE (1)        CARD NO. 1 of 1  
Reval Year: 2025 Tax Year: 2026 1476-B OLD SMITHFIELD RD 3.6300 AC   SRC=  
Appraised by 88 on 10/13/2010 07903 FORK SOUTH WEST TW-07 CI-00 FR-06 EX- AT- LAST ACTION 20250116
CONSTRUCTION DETAIL MARKET VALUE   DEPRECIATION CORRELATION OF VALUE
Foundation - 3
Continuous Footing 5.00
Sub Floor System - 4
PLYWOOD 6.00
Exterior Walls - 10
Aluminum/Vinyl Siding 30.00
Roofing Structure - 03
Gable 4.00
Roofing Cover - 03
Asphalt or Comp Shingle 4.00
Interior Wall Construction - 4
Plywood Panel 22.00
Interior Floor Cover - 08
Sheet Vinyl 9.00
Heating Fuel - 03
Gas 1.00
Heating Type - 03
Forced Air-Not Ducted 1.00
Air Conditioning Type - 01
None 0.00
Bedrooms/Bathrooms/Half-Bathrooms
3/2/0 12.000
Bedrooms
BAS - 3 FUS - 0 LL - 0 _
Bathrooms
BAS - 2 FUS - 0 LL - 0 _
Half-Bathrooms
BAS - 0 FUS - 0 LL - 0 _
Office
BAS - 0 FUS - 0 LL - 0 0
TOTAL POINT VALUE 94.000
BUILDING ADJUSTMENTS
Quality 4 Below Average + 0.9500
Shape/Design 1 Market Adjustment 1.0000
Size Size Size 0.9800
TOTAL ADJUSTMENT FACTOR 0.930
TOTAL QUALITY INDEX 88
USE MOD Eff. Area QUAL BASE RATE RCN EYB AYB
 AP  Additional Physical  0.15000
   Standard  0.70000
CREDENCE TO MARKET
50 01 1,841 88 110.00 202510 1940 1935 % GOOD 15.0
DEPR. BUILDING VALUE - CARD 30,380
TYPE: RURAL SINGLE FAMILY RESIDENTIAL Single Family Residential
STYLE: 1 - 1.0 Story
 

Click on image to enlarge
DEPR. OB/XF VALUE - CARD 100
MARKET LAND VALUE - CARD 44,950
TOTAL MARKET VALUE - CARD 75,430
TOTAL APPRAISED VALUE - CARD 75,430
TOTAL APPRAISED VALUE - PARCEL 75,430
TOTAL PRESENT USE VALUE - PARCEL 0
TOTAL VALUE DEFERRED - PARCEL 0
TOTAL TAXABLE VALUE - PARCEL $ 75,430
PRIOR
BUILDING VALUE 19,440
OBXF VALUE 100
LAND VALUE 31,720
PRESENT USE VALUE 0
DEFERRED VALUE 0
TOTAL VALUE 51,260
PERMIT
CODE DATE NOTE NUMBER AMOUNT
ROUT: WTRSHD:
SALES DATA
OFF. RECORD DATE DEED TYPE Q/U V/I INDICATE SALES PRICE
BOOK PAGE MO YR
02964 0353 10 2012 WD Q I 65000
01776 0491 5 2000 WD U I 0
00858 0241 1 1901 WD U I 0
0024E 0782 12 2024 WB C I 0
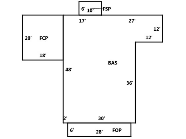
HEATED AREA 1,680
NOTES
REMODELED 1975

.04FROMH8-1-7
SUBAREA
TYPE GS AREA % RPL CS
BAS 1,680 100 184800
FCP 360 025 9900
FOP 168 030 5500
FSP 60 035 2310
FIREPLACE 1 - None 0
SUBAREA TOTALS 2,268   202,510
CODE QUALITY DESCRIPTION COUNT LTH WTH UNITS UNIT PRICE ORIG % COND BLDG# AYB EYB ANN DEP RATE OVR % COND OB/XF DEPR. VALUE
    PACK BARN   0 0 1 100.00 100 1 1900 1900 0   100 100
    STORAGE NV   0 0 1 0.00 100 1 1900 1900 0   100 0
TOTAL OB/XF VALUE 100
BUILDING DIMENSIONS BAS=W27W17S48E2E30N36E12N12Area:1680;FSP=N6W10S6E10Area:60;FCP=W18S20E18N20Area:360;FOP=S6E28N6W28Area:168;TotalArea:226 68  
LAND INFORMATION
HIGHEST AND BEST USE USE CODE LOCAL ZONING FRON TAGE DEPTH DEPTH / SIZE LND MOD COND FACT OTHER ADJUSTMENTS AND NOTES
  RF   AC   LC  TO  OT
ROAD
TYPE
LAND UNIT PRICE TOTAL LAND UNITS UNT TYP TOTAL ADJST ADJUSTED UNIT PRICE LAND VALUE OVERRIDE VALUE LAND NOTES
5010 5010   0 0 1.0000 0 1.0000
  
  26,000.00 1.000 AC 1.000 26,000.00 26000 0  
5311 5311   0 0 1.7600 0 1.0000
  
  6,200.00 1.000 AC 1.760 10,912.00 10912 0  
6211 6211   0 0 1.7600 0 1.0000
  
  2,800.00 1.630 AC 1.760 4,928.00 8033 0  
TOTAL MARKET LAND DATA 3.630   44,950  
TOTAL PRESENT USE DATA