WAYNE COUNTY 4/2/2026 5:20:13 AM
BRITT CHARLES        THORNTON PAULA Return/Appeal Notes:   Parcel: 2534719550
105 ODOM MILL RD PLAT: / UNIQ ID 902
661870     ID NO: 01L05000004023BA
COUNTYWIDE ADVALOREM TAX (100), FIRE - SMITH CHAPEL (100), SW FFEEFEE (1)        CARD NO. 1 of 1  
Reval Year: 2025 Tax Year: 2026 105 ODOM MILL RD 4.8900 AC   SRC=  
Appraised by 88 on 07/23/2010 01904 GRANTHAM TOWNSHIP TW-01 CI-00 FR-14 EX- AT- LAST ACTION 20230718
CONSTRUCTION DETAIL MARKET VALUE   DEPRECIATION CORRELATION OF VALUE
Foundation - 3
Continuous Footing 5.00
Sub Floor System - 4
PLYWOOD 6.00
Exterior Walls - 10
Aluminum/Vinyl Siding 30.00
Roofing Structure - 03
Gable 4.00
Roofing Cover - 12
Modular Metal 4.00
Interior Wall Construction - 4
Plywood Panel 22.00
Interior Floor Cover - 08
Sheet Vinyl 9.00
Interior Floor Cover - 14
Carpet 0.00
Heating Fuel - 03
Gas 1.00
Heating Type - 03
Forced Air-Not Ducted 1.00
Air Conditioning Type - 01
None 0.00
Bedrooms/Bathrooms/Half-Bathrooms
4/1/0 8.000
Bedrooms
BAS - 4 FUS - 0 LL - 0 _
Bathrooms
BAS - 1 FUS - 0 LL - 0 _
Half-Bathrooms
BAS - 0 FUS - 0 LL - 0 _
Office
BAS - 0 FUS - 0 LL - 0 0
TOTAL POINT VALUE 90.000
BUILDING ADJUSTMENTS
Quality 4 Below Average + 0.9500
Shape/Design 1 Market Adjustment 1.0000
Size Size Size 1.0000
TOTAL ADJUSTMENT FACTOR 0.950
TOTAL QUALITY INDEX 86
USE MOD Eff. Area QUAL BASE RATE RCN EYB AYB
   Standard  0.65000
CREDENCE TO MARKET
50 01 1,579 86 107.50 169743 1960 1945 % GOOD 35.0
DEPR. BUILDING VALUE - CARD 59,410
TYPE: RURAL SINGLE FAMILY RESIDENTIAL Single Family Residential
STYLE: 1 - 1.0 Story
 

Click on image to enlarge
DEPR. OB/XF VALUE - CARD 8,310
MARKET LAND VALUE - CARD 50,180
TOTAL MARKET VALUE - CARD 117,900
TOTAL APPRAISED VALUE - CARD 117,900
TOTAL APPRAISED VALUE - PARCEL 117,900
TOTAL PRESENT USE VALUE - PARCEL 0
TOTAL VALUE DEFERRED - PARCEL 0
TOTAL TAXABLE VALUE - PARCEL $ 117,900
PRIOR
BUILDING VALUE 44,020
OBXF VALUE 5,670
LAND VALUE 34,500
PRESENT USE VALUE 0
DEFERRED VALUE 0
TOTAL VALUE 84,190
PERMIT
CODE DATE NOTE NUMBER AMOUNT
ROUT: WTRSHD:
SALES DATA
OFF. RECORD DATE DEED TYPE Q/U V/I INDICATE SALES PRICE
BOOK PAGE MO YR
01278 0335 10 1990 WD U I 0
0008E 0725 1 2008 WD U I 0
HEATED AREA 1,456
NOTES
FR LT 23-A.SW ON LT DW ON LOT "B" INT FOR 92
SUBAREA
TYPE GS AREA % RPL CS
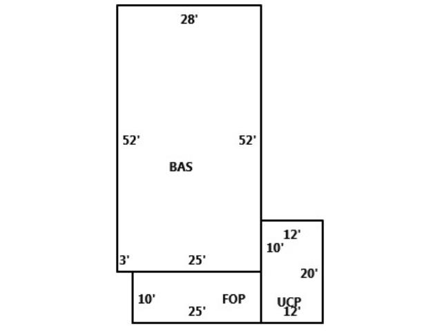
BAS 1,456 100 156520
FOP 250 030 8063
UCP 240 020 5160
FIREPLACE 1 - None 0
SUBAREA TOTALS 1,946   169,743
CODE QUALITY DESCRIPTION COUNT LTH WTH UNITS UNIT PRICE ORIG % COND BLDG# AYB EYB ANN DEP RATE OVR % COND OB/XF DEPR. VALUE
01 2 STORAG BLD   12 12 144 20.00 100 1 1967 1967 S3   10 288
23 2 PACK BARN   30 57 1,710 15.00 100 1 1966 1966 S3   10 2565
30 2 POLESHELTR   36 16 576 9.00 100 1 1965 1965 S3   20 1037
39 2 CANOPY   18 40 720 5.00 100 1 1966 1966 S3   20 720
    TOB BARN   0 0 1 100.00 100 1 1900 1900 0   100 100
    SHED NV   0 0 1 0.00 100 _ 1900 1900 0   100 0
29 2 IMPROVSHED   30 30 900 10.00 100 _ 1965 1965 S3   20 1800
01 2 STORAG BLD   30 30 900 20.00 100 _ 1967 1967 S3   10 1800
TOTAL OB/XF VALUE 8,310
BUILDING DIMENSIONS BAS=W28S52E3E25N52Area:1456;FOP=S10E25N10W25Area:250;UCP=S10E12N20W12S10Area:240;TotalArea:1946  
LAND INFORMATION
HIGHEST AND BEST USE USE CODE LOCAL ZONING FRON TAGE DEPTH DEPTH / SIZE LND MOD COND FACT OTHER ADJUSTMENTS AND NOTES
  RF   AC   LC  TO  OT
ROAD
TYPE
LAND UNIT PRICE TOTAL LAND UNITS UNT TYP TOTAL ADJST ADJUSTED UNIT PRICE LAND VALUE OVERRIDE VALUE LAND NOTES
5010 5010   0 0 1.0000 0 1.0000
  
  25,000.00 1.000 AC 1.000 25,000.00 25000 0  
6011 6011   0 0 1.6600 0 1.0000
  
  3,000.00 2.890 AC 1.660 4,980.00 14392 0  
5111 5111   0 0 1.6600 0 1.0000
  
  6,500.00 1.000 AC 1.660 10,790.00 10790 0  
TOTAL MARKET LAND DATA 4.890   50,180  
TOTAL PRESENT USE DATA