WAYNE COUNTY 4/4/2026 3:24:50 PM
WIGGINS GREGORY MORRIS   Return/Appeal Notes:   Parcel: 2583178743
105 PINELAND AVE PLAT: / UNIQ ID 8714
6140     ID NO: 02H13063001001
COUNTYWIDE ADVALOREM TAX (100), FIRE - WAYLIN (100), SW FFEEFEE (1)        CARD NO. 1 of 1  
Reval Year: 2025 Tax Year: 2026 LT 1 & 2 COLLEGE HGTS 1363-285 1.0000 LT   SRC=  
Appraised by 60 on 06/08/2010 02063 COLLEGE HEIGHTS TW-02 CI-00 FR-26 EX- AT- LAST ACTION 20240912
CONSTRUCTION DETAIL MARKET VALUE   DEPRECIATION CORRELATION OF VALUE
Foundation - 3
Continuous Footing 5.00
Sub Floor System - 5
Woo w/ Sub Floor 6.00
Exterior Walls - 21
Face Brick 32.00
Exterior Walls - 10
Aluminum/Vinyl Siding 0.00
Roofing Structure - 03
Gable 4.00
Roofing Cover - 03
Asphalt or Comp Shingle 4.00
Interior Wall Construction - 5
Drywall/Sheetrock 27.00
Interior Floor Cover - 14
Carpet 9.00
Interior Floor Cover - 08
Sheet Vinyl 0.00
Heating Fuel - 03
Gas 1.00
Heating Type - 10
Heat Pump 4.00
Air Conditioning Type - 03
Central 4.00
Bedrooms/Bathrooms/Half-Bathrooms
3/2/0 12.000
Bedrooms
BAS - 3 FUS - 0 LL - 0 _
Bathrooms
BAS - 2 FUS - 0 LL - 0 _
Half-Bathrooms
BAS - 0 FUS - 0 LL - 0 _
Office
BAS - 0 FUS - 0 LL - 0 0
TOTAL POINT VALUE 108.000
BUILDING ADJUSTMENTS
Quality 5 Average 1.0000
Shape/Design 4 Market Adjustment 1.0600
Size Size Size 0.9500
TOTAL ADJUSTMENT FACTOR 1.010
TOTAL QUALITY INDEX 109
USE MOD Eff. Area QUAL BASE RATE RCN EYB AYB
   Standard  0.50000
CREDENCE TO MARKET
01 01 2,542 109 136.25 348347 1975 1965 % GOOD 50.0
DEPR. BUILDING VALUE - CARD 174,170
TYPE: SINGLE FAMILY RESIDENTIAL Single Family Residential
STYLE: 1 - 1.0 Story
 

Click on image to enlarge
DEPR. OB/XF VALUE - CARD 1,230
MARKET LAND VALUE - CARD 30,000
TOTAL MARKET VALUE - CARD 205,400
TOTAL APPRAISED VALUE - CARD 205,400
TOTAL APPRAISED VALUE - PARCEL 205,400
TOTAL PRESENT USE VALUE - PARCEL 0
TOTAL VALUE DEFERRED - PARCEL 0
TOTAL TAXABLE VALUE - PARCEL $ 205,400
PRIOR
BUILDING VALUE 125,250
OBXF VALUE 1,960
LAND VALUE 22,500
PRESENT USE VALUE 0
DEFERRED VALUE 0
TOTAL VALUE 149,710
PERMIT
CODE DATE NOTE NUMBER AMOUNT
ROUT: WTRSHD:
SALES DATA
OFF. RECORD DATE DEED TYPE Q/U V/I INDICATE SALES PRICE
BOOK PAGE MO YR
01231 0455 5 1989 WD U I 0
01209 0476 8 1988 WD U I 0
01202 0310 6 1988 WD U I 0
01098 0063 1 1985   U I 39500
HEATED AREA 2,168
NOTES
PT FR LT 2 ;P2-93 ENC FCP &ADDTN FOR 1994
P1-97 STORAGE FOR 98 STORAGE IS 2-STORY
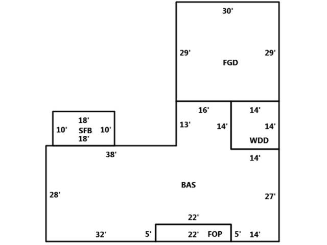
SUBAREA
TYPE GS AREA % RPL CS
BAS 1,988 100 270865
FGD 870 040 47415
FOP 110 030 4496
SFB 180 080 19620
WDD 196 015 3951
FIREPLACE 3 - 1 Story Single 2,000
SUBAREA TOTALS 3,344   348,347
CODE QUALITY DESCRIPTION COUNT LTH WTH UNITS UNIT PRICE ORIG % COND BLDG# AYB EYB ANN DEP RATE OVR % COND OB/XF DEPR. VALUE
01 2 STORAG BLD   16 24 384 20.00 100 1 1997 1997 S3   16 1229
TOTAL OB/XF VALUE 1,229
BUILDING DIMENSIONS BAS=W38S28E32N5E22S5E14N27W14N14W16S13Area:1988;FOP=E22N5W22S5Area:110;WDD=N14W14S14E14Area:196;FGD=N29W30S29E16E14Area: :870;SFB=N10E18S10W18Area:180;TotalArea:3344  
LAND INFORMATION
HIGHEST AND BEST USE USE CODE LOCAL ZONING FRON TAGE DEPTH DEPTH / SIZE LND MOD COND FACT OTHER ADJUSTMENTS AND NOTES
  RF   AC   LC  TO  OT
ROAD
TYPE
LAND UNIT PRICE TOTAL LAND UNITS UNT TYP TOTAL ADJST ADJUSTED UNIT PRICE LAND VALUE OVERRIDE VALUE LAND NOTES
5010 5010   0 0 1.0000 0 1.5000
  SIZE
  20,000.00 1.000 LT 1.500 30,000.00 30000    
TOTAL MARKET LAND DATA     30,000  
TOTAL PRESENT USE DATA