WAYNE COUNTY 4/2/2026 5:19:09 AM
BRITT CHARLES E & W ETHEL M   Return/Appeal Notes:   Parcel: 2515712226
535 EDWARDS STORE RD PLAT: / UNIQ ID 67347
44990     ID NO: 01N03000001003
COUNTYWIDE ADVALOREM TAX (100), FIRE - JORDAN CHAPEL (100), SW FFEEFEE (1)        CARD NO. 1 of 1  
Reval Year: 2025 Tax Year: 2026 535 EDWARDS STORE RD 1719-047 1.3300 AC   SRC=  
Appraised by 60 on 10/01/2003 01904 GRANTHAM TOWNSHIP TW-01 CI-00 FR-15 EX- AT- LAST ACTION 20240916
CONSTRUCTION DETAIL MARKET VALUE   DEPRECIATION CORRELATION OF VALUE
Foundation - 3
Continuous Footing 5.00
Sub Floor System - 5
Woo w/ Sub Floor 6.00
Exterior Walls - 10
Aluminum/Vinyl Siding 30.00
Roofing Structure - 03
Gable 4.00
Roofing Cover - 03
Asphalt or Comp Shingle 4.00
Interior Wall Construction - 4
Plywood Panel 22.00
Interior Floor Cover - 08
Sheet Vinyl 9.00
Interior Floor Cover - 14
Carpet 0.00
Heating Fuel - 03
Gas 1.00
Heating Type - 04
Forced Air-Ducted 4.00
Air Conditioning Type - 03
Central 4.00
Bedrooms/Bathrooms/Half-Bathrooms
2/1/0 6.000
Bedrooms
BAS - 2 FUS - 0 LL - 0 _
Bathrooms
BAS - 1 FUS - 0 LL - 0 _
Half-Bathrooms
BAS - 0 FUS - 0 LL - 0 _
Office
BAS - 0 FUS - 0 LL - 0 0
TOTAL POINT VALUE 95.000
BUILDING ADJUSTMENTS
Quality 5 Average 1.0000
Shape/Design 1 Market Adjustment 1.0000
Size Size Size 1.0500
TOTAL ADJUSTMENT FACTOR 1.050
TOTAL QUALITY INDEX 100
USE MOD Eff. Area QUAL BASE RATE RCN EYB AYB
   Standard  0.57000
CREDENCE TO MARKET
50 01 1,281 100 125.00 160125 1968 1944 % GOOD 43.0
DEPR. BUILDING VALUE - CARD 68,850
TYPE: RURAL SINGLE FAMILY RESIDENTIAL Single Family Residential
STYLE: 1 - 1.0 Story
 

Click on image to enlarge
DEPR. OB/XF VALUE - CARD 1,820
MARKET LAND VALUE - CARD 28,840
TOTAL MARKET VALUE - CARD 99,510
TOTAL APPRAISED VALUE - CARD 99,510
TOTAL APPRAISED VALUE - PARCEL 99,510
TOTAL PRESENT USE VALUE - PARCEL 0
TOTAL VALUE DEFERRED - PARCEL 0
TOTAL TAXABLE VALUE - PARCEL $ 99,510
PRIOR
BUILDING VALUE 30,180
OBXF VALUE 1,410
LAND VALUE 18,750
PRESENT USE VALUE 0
DEFERRED VALUE 0
TOTAL VALUE 50,340
PERMIT
CODE DATE NOTE NUMBER AMOUNT
ROUT: WTRSHD:
SALES DATA
OFF. RECORD DATE DEED TYPE Q/U V/I INDICATE SALES PRICE
BOOK PAGE MO YR
03293 0369 4 2017 WD Q I 72500
0093E 0583 1 1993 WD U I 0
00273 0506 1 1901 WD U I 0
HEATED AREA 1,184
NOTES
10.20 TO LT 8266 COPIED FROM 2515-72-4215
18.51 TO 2515-72-3258
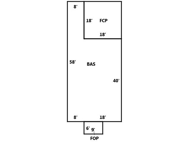
SUBAREA
TYPE GS AREA % RPL CS
BAS 1,184 100 148000
FCP 324 025 10125
FOP 54 030 2000
FIREPLACE 1 - None 0
SUBAREA TOTALS 1,562   160,125
CODE QUALITY DESCRIPTION COUNT LTH WTH UNITS UNIT PRICE ORIG % COND BLDG# AYB EYB ANN DEP RATE OVR % COND OB/XF DEPR. VALUE
29 1 IMPROVSHED   15 46 690 6.00 100 1 1965 1965 S3   20 828
01 1 STORAG BLD   33 30 990 10.00 100 1 1965 1965 S3   10 990
TOTAL OB/XF VALUE 1,818
BUILDING DIMENSIONS FCP=N18W18S18E18Area:324;BAS=W18N18W8S58E8E18N40Area:1184;FOP=S6E9N6W9Area:54;TotalArea:1562  
LAND INFORMATION
HIGHEST AND BEST USE USE CODE LOCAL ZONING FRON TAGE DEPTH DEPTH / SIZE LND MOD COND FACT OTHER ADJUSTMENTS AND NOTES
  RF   AC   LC  TO  OT
ROAD
TYPE
LAND UNIT PRICE TOTAL LAND UNITS UNT TYP TOTAL ADJST ADJUSTED UNIT PRICE LAND VALUE OVERRIDE VALUE LAND NOTES
5010 5010   0 0 1.0000 0 1.0000     25,000.00 1.000 AC 1.000 25,000.00 25000 0  
5211 5211   0 0 1.9400 0 1.0000     6,000.00 0.330 AC 1.940 11,640.00 3841 0  
TOTAL MARKET LAND DATA 1.330   28,840  
TOTAL PRESENT USE DATA