WAYNE COUNTY 4/5/2026 2:00:14 AM
SUGGS CORA S   Return/Appeal Notes:   Parcel: 3635324104
218 CHASE ST PLAT: / UNIQ ID 44571
756721     ID NO: 11C02008001034
COUNTYWIDE ADVALOREM TAX (100), TOWN - EUREKA (100)        CARD NO. 1 of 1  
Reval Year: 2025 Tax Year: 2026 LT 34 CHASE LTS 1.0000 LT   SRC=  
Appraised by 60 on 11002 EUREKA AREA TW-11 CI-04 FR-00 EX- AT- LAST ACTION 20250130
CONSTRUCTION DETAIL MARKET VALUE   DEPRECIATION CORRELATION OF VALUE
Foundation - 3
Continuous Footing 5.00
Sub Floor System - 4
PLYWOOD 6.00
Exterior Walls - 21
Face Brick 34.00
Roofing Structure - 03
Gable 4.00
Roofing Cover - 03
Asphalt or Comp Shingle 4.00
Interior Wall Construction - 5
Drywall/Sheetrock 27.00
Interior Floor Cover - 08
Sheet Vinyl 9.00
Interior Floor Cover - 14
Carpet 0.00
Heating Fuel - 04
Electric 1.00
Heating Type - 04
Forced Air-Ducted 4.00
Air Conditioning Type - 01
None 0.00
Bedrooms/Bathrooms/Half-Bathrooms
3/1/0 8.000
Bedrooms
BAS - 3 FUS - 0 LL - 0 _
Bathrooms
BAS - 1 FUS - 0 LL - 0 _
Half-Bathrooms
BAS - 0 FUS - 0 LL - 0 _
Office
BAS - 0 FUS - 0 LL - 0 0
TOTAL POINT VALUE 102.000
BUILDING ADJUSTMENTS
Quality 5 Average 1.0000
Shape/Design 1 Market Adjustment 1.0000
Size Size Size 1.0500
TOTAL ADJUSTMENT FACTOR 1.050
TOTAL QUALITY INDEX 107
USE MOD Eff. Area QUAL BASE RATE RCN EYB AYB
   Standard  0.33000
CREDENCE TO MARKET
01 01 1,211 107 133.75 161971 1992 1978 % GOOD 67.0
DEPR. BUILDING VALUE - CARD 108,520
TYPE: SINGLE FAMILY RESIDENTIAL Single Family Residential
STYLE: 1 - 1.0 Story
 

Click on image to enlarge
DEPR. OB/XF VALUE - CARD 0
MARKET LAND VALUE - CARD 11,070
TOTAL MARKET VALUE - CARD 119,590
TOTAL APPRAISED VALUE - CARD 119,590
TOTAL APPRAISED VALUE - PARCEL 119,590
TOTAL PRESENT USE VALUE - PARCEL 0
TOTAL VALUE DEFERRED - PARCEL 0
TOTAL TAXABLE VALUE - PARCEL $ 119,590
PRIOR
BUILDING VALUE 61,160
OBXF VALUE 0
LAND VALUE 9,230
PRESENT USE VALUE 0
DEFERRED VALUE 0
TOTAL VALUE 70,390
PERMIT
CODE DATE NOTE NUMBER AMOUNT
ROUT: WTRSHD:
SALES DATA
OFF. RECORD DATE DEED TYPE Q/U V/I INDICATE SALES PRICE
BOOK PAGE MO YR
00924 0843 1 1977 WD U I 0
HEATED AREA 1,143
NOTES
 
SUBAREA
TYPE GS AREA % RPL CS
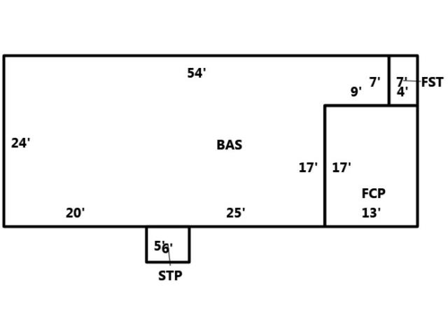
BAS 1,143 100 152876
FCP 221 025 7356
FST 28 035 1338
STP 30 010 401
FIREPLACE 1 - None 0
SUBAREA TOTALS 1,422   161,971
CODE QUALITY DESCRIPTION COUNT LTH WTH UNITS UNIT PRICE ORIG % COND BLDG# SIZE FACT AYB EYB ANN DEP RATE OVR % COND OB/XF DEPR. VALUE
TOTAL OB/XF VALUE 0
BUILDING DIMENSIONS BAS=W54S24E20E25N17E9N7Area:1143;STP=S5E6N5W6Area:30;FCP=E13N17W13S17Area:221;FST=E4N7W4S7Area:28;TotalArea:1422  
LAND INFORMATION
HIGHEST AND BEST USE USE CODE LOCAL ZONING FRON TAGE DEPTH DEPTH / SIZE LND MOD COND FACT OTHER ADJUSTMENTS AND NOTES
  RF   AC   LC  TO  OT
ROAD
TYPE
LAND UNIT PRICE TOTAL LAND UNITS UNT TYP TOTAL ADJST ADJUSTED UNIT PRICE LAND VALUE OVERRIDE VALUE LAND NOTES
0100 0100   123 150 1.0000 2 1.0000
  -EXCESS FRTG.
  90.00 123.000 FF 1.000 90.00 11070 0  
TOTAL MARKET LAND DATA     11,070  
TOTAL PRESENT USE DATA