WAYNE COUNTY 4/2/2026 9:23:48 PM
POWELL DAVID ALAN   Return/Appeal Notes:   Parcel: 2680341885
102 GLENN DR PLAT: / UNIQ ID 36461
744331     ID NO: 07H07015B01008
COUNTYWIDE ADVALOREM TAX (100), FIRE - ROSEWOOD (100), SW FFEEFEE (1)        CARD NO. 1 of 1  
Reval Year: 2025 Tax Year: 2026 LT 8 PEELE ACRES #3 1.0000 LT   SRC=  
Appraised by 60 on 10/13/2010 07015 PEELE AC #1,2,3&4 SEC 2&3 TW-07 CI-00 FR-06 EX- AT- LAST ACTION 20240930
CONSTRUCTION DETAIL MARKET VALUE   DEPRECIATION CORRELATION OF VALUE
Foundation - 3
Continuous Footing 5.00
Sub Floor System - 4
PLYWOOD 6.00
Exterior Walls - 21
Face Brick 34.00
Roofing Structure - 03
Gable 4.00
Roofing Cover - 03
Asphalt or Comp Shingle 4.00
Interior Wall Construction - 5
Drywall/Sheetrock 27.00
Interior Floor Cover - 14
Carpet 10.00
Heating Fuel - 04
Electric 1.00
Heating Type - 10
Heat Pump 4.00
Air Conditioning Type - 03
Central 4.00
Bedrooms/Bathrooms/Half-Bathrooms
3/2/0 12.000
Bedrooms
BAS - 3 FUS - 0 LL - 0 _
Bathrooms
BAS - 2 FUS - 0 LL - 0 _
Half-Bathrooms
BAS - 0 FUS - 0 LL - 0 _
Office
BAS - 0 FUS - 0 LL - 0 0
TOTAL POINT VALUE 111.000
BUILDING ADJUSTMENTS
Quality 6 Average + 1.1000
Shape/Design 1 Market Adjustment 1.0000
Size Size Size 1.0000
TOTAL ADJUSTMENT FACTOR 1.100
TOTAL QUALITY INDEX 122
USE MOD Eff. Area QUAL BASE RATE RCN EYB AYB
   Standard  0.47000
CREDENCE TO MARKET
50 01 1,657 122 152.50 254894 1978 1973 % GOOD 53.0
DEPR. BUILDING VALUE - CARD 135,090
TYPE: RURAL SINGLE FAMILY RESIDENTIAL Single Family Residential
STYLE: 1 - 1.0 Story
 

Click on image to enlarge
DEPR. OB/XF VALUE - CARD 8,730
MARKET LAND VALUE - CARD 35,000
TOTAL MARKET VALUE - CARD 178,820
TOTAL APPRAISED VALUE - CARD 178,820
TOTAL APPRAISED VALUE - PARCEL 178,820
TOTAL PRESENT USE VALUE - PARCEL 0
TOTAL VALUE DEFERRED - PARCEL 0
TOTAL TAXABLE VALUE - PARCEL $ 178,820
PRIOR
BUILDING VALUE 96,720
OBXF VALUE 7,240
LAND VALUE 25,000
PRESENT USE VALUE 0
DEFERRED VALUE 0
TOTAL VALUE 128,960
PERMIT
CODE DATE NOTE NUMBER AMOUNT
ROUT: WTRSHD:
SALES DATA
OFF. RECORD DATE DEED TYPE Q/U V/I INDICATE SALES PRICE
BOOK PAGE MO YR
01287 0899 2 1991 WD U I 0
00852 0245 1 1974 WD U I 0
0009E 0162 1 2009 WB C I 0
HEATED AREA 1,480
NOTES
P10-98 STORAGE FOR 99
P8-99 POOL FOR 2000
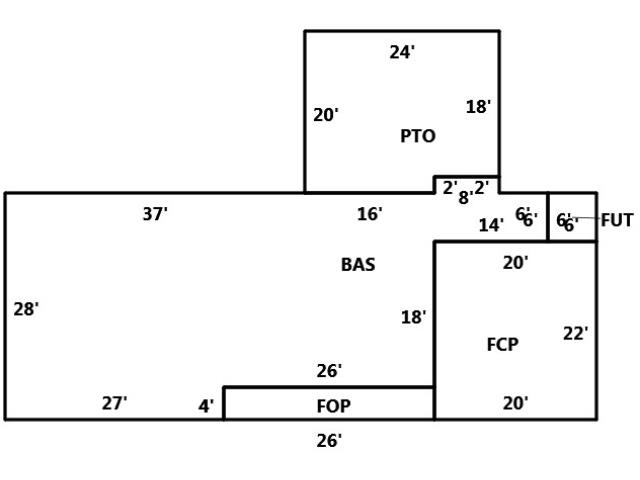
SUBAREA
TYPE GS AREA % RPL CS
BAS 1,480 100 225700
FCP 440 025 16775
FOP 104 030 4728
FUT 36 035 1983
PTO 464 005 3508
FIREPLACE 3 - 1 Story Single 2,200
SUBAREA TOTALS 2,524   254,894
CODE QUALITY DESCRIPTION COUNT LTH WTH UNITS UNIT PRICE ORIG % COND BLDG# AYB EYB ANN DEP RATE OVR % COND OB/XF DEPR. VALUE
01 2 STORAG BLD   12 18 216 20.00 100 1 1980 1980 S3   10 432
01 2 STORAG BLD   16 24 384 20.00 100 1 1998 1998 S3   19 1459
08 2 POOL/VINYL   38 18 684 50.00 100 1 1999 1999 S5   20 6840
TOTAL OB/XF VALUE 8,731
BUILDING DIMENSIONS BAS=W37S28E27N4E26N18E14N6W6N2W8S2W16Area:1480;FOP=N4E26S4W26Area:104;FCP=S4E20N22W20S18Area:440;FUT=E6N6W6S6Area:36;PTO O=N18W24S20E16N2E8Area:464;TotalArea:2524  
LAND INFORMATION
HIGHEST AND BEST USE USE CODE LOCAL ZONING FRON TAGE DEPTH DEPTH / SIZE LND MOD COND FACT OTHER ADJUSTMENTS AND NOTES
  RF   AC   LC  TO  OT
ROAD
TYPE
LAND UNIT PRICE TOTAL LAND UNITS UNT TYP TOTAL ADJST ADJUSTED UNIT PRICE LAND VALUE OVERRIDE VALUE LAND NOTES
5010 5010   0 0 1.0000 0 1.0000     35,000.00 1.000 LT 1.000 35,000.00 35000    
TOTAL MARKET LAND DATA     35,000  
TOTAL PRESENT USE DATA