WAYNE COUNTY 4/4/2026 3:24:33 PM
WIGGINS CLAUDE & W SHARON L   Return/Appeal Notes:   Parcel: 2680264194
107 SHAMROCK CT PLAT: / UNIQ ID 36379
206780     ID NO: 07H07015D01030
COUNTYWIDE ADVALOREM TAX (100), FIRE - ROSEWOOD (100), SW FFEEFEE (1)        CARD NO. 1 of 1  
Reval Year: 2025 Tax Year: 2026 LT 30 PEELE AC #4 SEC 2&3 0.5400 AC   SRC=  
Appraised by 60 on 10/13/2010 07015 PEELE AC #1,2,3&4 SEC 2&3 TW-07 CI-00 FR-06 EX- AT- LAST ACTION 20240930
CONSTRUCTION DETAIL MARKET VALUE   DEPRECIATION CORRELATION OF VALUE
Foundation - 3
Continuous Footing 5.00
Sub Floor System - 4
PLYWOOD 6.00
Exterior Walls - 21
Face Brick 34.00
Roofing Structure - 03
Gable 4.00
Roofing Cover - 03
Asphalt or Comp Shingle 4.00
Interior Wall Construction - 5
Drywall/Sheetrock 27.00
Interior Floor Cover - 08
Sheet Vinyl 9.00
Interior Floor Cover - 14
Carpet 0.00
Heating Fuel - 03
Gas 1.00
Heating Type - 10
Heat Pump 4.00
Air Conditioning Type - 03
Central 4.00
Bedrooms/Bathrooms/Half-Bathrooms
3/2/0 12.000
Bedrooms
BAS - 3 FUS - 0 LL - 0 _
Bathrooms
BAS - 2 FUS - 0 LL - 0 _
Half-Bathrooms
BAS - 0 FUS - 0 LL - 0 _
Office
BAS - 0 FUS - 0 LL - 0 0
TOTAL POINT VALUE 110.000
BUILDING ADJUSTMENTS
Quality 6 Average + 1.1000
Shape/Design 3 Market Adjustment 1.0400
Size Size Size 0.9800
TOTAL ADJUSTMENT FACTOR 1.120
TOTAL QUALITY INDEX 123
USE MOD Eff. Area QUAL BASE RATE RCN EYB AYB
   Standard  0.32000
CREDENCE TO MARKET
50 01 2,041 123 153.75 313805 1993 1993 % GOOD 68.0
DEPR. BUILDING VALUE - CARD 213,390
TYPE: RURAL SINGLE FAMILY RESIDENTIAL Single Family Residential
STYLE: 1 - 1.0 Story
 

Click on image to enlarge
DEPR. OB/XF VALUE - CARD 0
MARKET LAND VALUE - CARD 35,000
TOTAL MARKET VALUE - CARD 248,390
TOTAL APPRAISED VALUE - CARD 248,390
TOTAL APPRAISED VALUE - PARCEL 248,390
TOTAL PRESENT USE VALUE - PARCEL 0
TOTAL VALUE DEFERRED - PARCEL 0
TOTAL TAXABLE VALUE - PARCEL $ 248,390
PRIOR
BUILDING VALUE 148,620
OBXF VALUE 0
LAND VALUE 25,000
PRESENT USE VALUE 0
DEFERRED VALUE 0
TOTAL VALUE 173,620
PERMIT
CODE DATE NOTE NUMBER AMOUNT
ROUT: WTRSHD:
SALES DATA
OFF. RECORD DATE DEED TYPE Q/U V/I INDICATE SALES PRICE
BOOK PAGE MO YR
01390 0361 8 1993 WD U I 102000
01370 0606 4 1993 WD U I 9500
01284 0213 1 1991 WD U I 8500
01126 0565 4 1986 WD U I 0
HEATED AREA 1,667
NOTES
P2-93 NH FOR 1994
SUBAREA
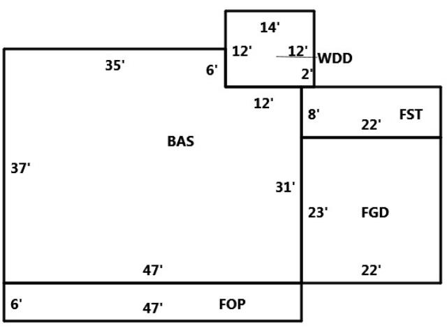
TYPE GS AREA % RPL CS
BAS 1,667 100 256301
FGD 506 040 31058
FOP 282 030 13069
FST 176 035 9533
WDD 168 015 3844
FIREPLACE 1 - None 0
SUBAREA TOTALS 2,799   313,805
CODE QUALITY DESCRIPTION COUNT LTH WTH UNITS UNIT PRICE ORIG % COND BLDG# SIZE FACT AYB EYB ANN DEP RATE OVR % COND OB/XF DEPR. VALUE
TOTAL OB/XF VALUE 0
BUILDING DIMENSIONS BAS=W35S37E47N31W12N6Area:1667;FOP=S6E47N6W47Area:282;FGD=E22N23W22S23Area:506;FST=N8W22S8E22Area:176;WDD=E2N12W14S12E12 2Area:168;TotalArea:2799  
LAND INFORMATION
HIGHEST AND BEST USE USE CODE LOCAL ZONING FRON TAGE DEPTH DEPTH / SIZE LND MOD COND FACT OTHER ADJUSTMENTS AND NOTES
  RF   AC   LC  TO  OT
ROAD
TYPE
LAND UNIT PRICE TOTAL LAND UNITS UNT TYP TOTAL ADJST ADJUSTED UNIT PRICE LAND VALUE OVERRIDE VALUE LAND NOTES
5010 5010   0 0 1.0000 0 1.0000     35,000.00 1.000 LT 1.000 35,000.00 35000    
TOTAL MARKET LAND DATA     35,000  
TOTAL PRESENT USE DATA