WAYNE COUNTY 4/2/2026 2:24:57 AM
PITTMAN JAMES EDWARD        PITTMAN BRENDA R WIFE Return/Appeal Notes:   Parcel: 2675502621
355 PINKNEY CHURCH RD PLAT: / UNIQ ID 40051
52627800     ID NO: 09H03000005018A
COUNTYWIDE ADVALOREM TAX (100), FIRE - NAHUNTA (100), SW FFEEFEE (2)        CARD NO. 1 of 1  
Reval Year: 2025 Tax Year: 2026 355 PINKNEY CHURCH RD 36.1200 AC   SRC=  
Appraised by 11 on 11/17/2010 09902 GREATSWAMP WEST SIDE TW-09 CI-00 FR-09 EX- AT- LAST ACTION 20230731
CONSTRUCTION DETAIL MARKET VALUE   DEPRECIATION CORRELATION OF VALUE
Foundation - 3
Continuous Footing 5.00
Sub Floor System - 4
PLYWOOD 6.00
Exterior Walls - 10
Aluminum/Vinyl Siding 30.00
Roofing Structure - 03
Gable 4.00
Roofing Cover - 03
Asphalt or Comp Shingle 4.00
Interior Wall Construction - 5
Drywall/Sheetrock 27.00
Interior Floor Cover - 08
Sheet Vinyl 9.00
Interior Floor Cover - 14
Carpet 0.00
Heating Fuel - 04
Electric 1.00
Heating Type - 04
Forced Air-Ducted 4.00
Air Conditioning Type - 03
Central 4.00
Bedrooms/Bathrooms/Half-Bathrooms
3/2/0 12.000
Bedrooms
BAS - 3 FUS - 0 LL - 0 _
Bathrooms
BAS - 2 FUS - 0 LL - 0 _
Half-Bathrooms
BAS - 0 FUS - 0 LL - 0 _
Office
BAS - 0 FUS - 0 LL - 0 0
TOTAL POINT VALUE 106.000
BUILDING ADJUSTMENTS
Quality 5 Average 1.0000
Shape/Design 1 Market Adjustment 1.0000
Size Size Size 0.9500
TOTAL ADJUSTMENT FACTOR 0.950
TOTAL QUALITY INDEX 101
USE MOD Eff. Area QUAL BASE RATE RCN EYB AYB
   Standard  0.63000
CREDENCE TO MARKET
02 01 2,123 101 85.85 183460 1996 1996 % GOOD 37.0
DEPR. BUILDING VALUE - CARD 67,880
TYPE: MOBILE HOME Single Family Residential
STYLE: 1 - 1.0 Story
 

Click on image to enlarge
DEPR. OB/XF VALUE - CARD 43,830
MARKET LAND VALUE - CARD 243,910
TOTAL MARKET VALUE - CARD 355,620
TOTAL APPRAISED VALUE - CARD 355,620
TOTAL APPRAISED VALUE - PARCEL 355,620
TOTAL PRESENT USE VALUE - PARCEL 173,400
TOTAL VALUE DEFERRED - PARCEL 182,220
TOTAL TAXABLE VALUE - PARCEL $ 173,400
PRIOR
BUILDING VALUE 50,530
OBXF VALUE 34,160
LAND VALUE 183,250
PRESENT USE VALUE 51,470
DEFERRED VALUE 131,780
TOTAL VALUE 267,940
PERMIT
CODE DATE NOTE NUMBER AMOUNT
ROUT: WTRSHD:
SALES DATA
OFF. RECORD DATE DEED TYPE Q/U V/I INDICATE SALES PRICE
BOOK PAGE MO YR
01100 0426 6 1985 WD U I 288500
HEATED AREA 2,016
NOTES
P11-96 DW FOR 97 HM BULK BRN(3)
P12-06 SW FOR 2007
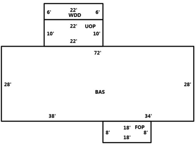
SUBAREA
TYPE GS AREA % RPL CS
BAS 2,016 100 173074
FOP 144 030 3692
UOP 220 020 3777
WDD 132 015 1717
FIREPLACE 2 - Pre-Fab 1,200
SUBAREA TOTALS 2,512   183,460
CODE QUALITY DESCRIPTION COUNT LTH WTH UNITS UNIT PRICE ORIG % COND BLDG# AYB EYB ANN DEP RATE OVR % COND OB/XF DEPR. VALUE
29 1 IMPROVSHED   40 500 20,000 6.00 50 1 1987 1987 S3   20 12000
29 1 IMPROVSHED   40 500 20,000 6.00 50 1 1987 1987 S3   20 12000
29 1 IMPROVSHED   40 500 20,000 6.00 50 1 1987 1987 S3   20 12000
23 2 PACK BARN   34 24 816 15.00 100 1 1960 1960 S3   10 1224
    STABLES   0 0 1 500.00 100 1 1900 1900 0   100 500
15 1 MOBILEHOME   0 0 1 2,000.00 100 1 2006 2006 0   100 2000
01 1 STORAG BLD   8 12 96 10.00 0 1 2006 2006 S3   43 413
01 1 STORAG BLD   12 10 120 10.00 0 1 2006 2006 S3   43 516
39 1 CANOPY   16 24 384 4.00 0 1 2015 2015 S3   70 1075
01 1 STORAG BLD   30 10 300 10.00 0 1 2015 2015 S3   70 2100
TOTAL OB/XF VALUE 43,828
BUILDING DIMENSIONS BAS=W72S28E38E34N28Area:2016;FOP=S8E18N8W18Area:144;UOP=N10W22S10E22Area:220;WDD=N6E22S6W22Area:132;TotalArea:2512  
LAND INFORMATION
HIGHEST AND BEST USE USE CODE LOCAL ZONING FRON TAGE DEPTH DEPTH / SIZE LND MOD COND FACT OTHER ADJUSTMENTS AND NOTES
  RF   AC   LC  TO  OT
ROAD
TYPE
LAND UNIT PRICE TOTAL LAND UNITS UNT TYP TOTAL ADJST ADJUSTED UNIT PRICE LAND VALUE OVERRIDE VALUE LAND NOTES
5111 5111   0 0 0.9800 0 1.0000
  
  7,100.00 27.620 AC 0.980 6,958.00 192180 0  
6011 6011   0 0 0.9800 0 1.0000
  
  3,500.00 7.500 AC 0.980 3,430.00 25725 0  
5010 5010   0 0 1.0000 0 1.0000
  
  26,000.00 1.000 AC 1.000 26,000.00 26000 0  
TOTAL MARKET LAND DATA 36.120   243,910  
5110 5110   0 0 1.0000 5 1.0000
  
  1,200.00 27.620 AC 1.000 1,200.00 33144    
6110 6110   0 0 1.0000 5 1.0000
  
  340.00 7.500 AC 1.000 340.00 2550    
5010 5010   0 0 1.0000 5 1.0000
  
  26,000.00 1.000 AC 1.000 26,000.00 26000    
TOTAL PRESENT USE DATA 36.120   61,690