WAYNE COUNTY 4/4/2026 3:25:07 PM
WIGGINS GREGORY M        WIGGINS RHONDA F WIFE Return/Appeal Notes:   Parcel: 2583278651
180 PINELAND AVE PLAT: / UNIQ ID 8764
734803     ID NO: 02H13068001019
COUNTYWIDE ADVALOREM TAX (100), FIRE - WAYLIN (100), SW FFEEFEE (1)        CARD NO. 1 of 1  
Reval Year: 2025 Tax Year: 2026 LT 19 COLLEGE HGTS 1.0000 LT   SRC=  
Appraised by 60 on 06/08/2010 02063 COLLEGE HEIGHTS TW-02 CI-00 FR-26 EX- AT- LAST ACTION 20241017
CONSTRUCTION DETAIL MARKET VALUE   DEPRECIATION CORRELATION OF VALUE
Foundation - 3
Continuous Footing 5.00
Sub Floor System - 5
Woo w/ Sub Floor 6.00
Exterior Walls - 21
Face Brick 34.00
Roofing Structure - 04
Hip 5.00
Roofing Cover - 03
Asphalt or Comp Shingle 4.00
Interior Wall Construction - 5
Drywall/Sheetrock 27.00
Interior Floor Cover - 14
Carpet 9.00
Interior Floor Cover - 08
Sheet Vinyl 0.00
Heating Fuel - 04
Electric 1.00
Heating Type - 10
Heat Pump 4.00
Air Conditioning Type - 03
Central 4.00
Bedrooms/Bathrooms/Half-Bathrooms
3/1/1 10.000
Bedrooms
BAS - 3 FUS - 0 LL - 0 _
Bathrooms
BAS - 1 FUS - 0 LL - 0 _
Half-Bathrooms
BAS - 1 FUS - 0 LL - 0 _
Office
BAS - 0 FUS - 0 LL - 0 0
TOTAL POINT VALUE 109.000
BUILDING ADJUSTMENTS
Quality 5 Average 1.0000
Shape/Design 5 Market Adjustment 1.0800
Size Size Size 1.0000
TOTAL ADJUSTMENT FACTOR 1.080
TOTAL QUALITY INDEX 118
USE MOD Eff. Area QUAL BASE RATE RCN EYB AYB
   Standard  0.45000
CREDENCE TO MARKET
01 01 1,439 118 147.50 212253 1980 1965 % GOOD 55.0
DEPR. BUILDING VALUE - CARD 116,740
TYPE: SINGLE FAMILY RESIDENTIAL Single Family Residential
STYLE: 1 - 1.0 Story
 

Click on image to enlarge
DEPR. OB/XF VALUE - CARD 720
MARKET LAND VALUE - CARD 20,000
TOTAL MARKET VALUE - CARD 137,460
TOTAL APPRAISED VALUE - CARD 137,460
TOTAL APPRAISED VALUE - PARCEL 137,460
TOTAL PRESENT USE VALUE - PARCEL 0
TOTAL VALUE DEFERRED - PARCEL 0
TOTAL TAXABLE VALUE - PARCEL $ 137,460
PRIOR
BUILDING VALUE 76,120
OBXF VALUE 600
LAND VALUE 15,000
PRESENT USE VALUE 0
DEFERRED VALUE 0
TOTAL VALUE 91,720
PERMIT
CODE DATE NOTE NUMBER AMOUNT
ROUT: WTRSHD:
SALES DATA
OFF. RECORD DATE DEED TYPE Q/U V/I INDICATE SALES PRICE
BOOK PAGE MO YR
03490 0513 1 2020 WD Q I 77000
01077 0088 1 1984 WD U I 54000
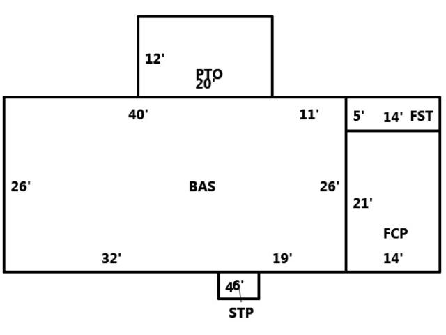
HEATED AREA 1,326
NOTES
 
SUBAREA
TYPE GS AREA % RPL CS
BAS 1,326 100 195585
FCP 294 025 10915
FST 70 035 3688
PTO 240 005 1770
STP 24 010 295
FIREPLACE 1 - None 0
SUBAREA TOTALS 1,954   212,253
CODE QUALITY DESCRIPTION COUNT LTH WTH UNITS UNIT PRICE ORIG % COND BLDG# AYB EYB ANN DEP RATE OVR % COND OB/XF DEPR. VALUE
01 3 STORAG BLD   20 12 240 30.00 100 1 1976 1976 S3   10 720
TOTAL OB/XF VALUE 720
BUILDING DIMENSIONS BAS=W11W40S26E32E19N26Area:1326;PTO=N12W20S12E20Area:240;STP=S4E6N4W6Area:24;FCP=E14N21W14S21Area:294;FST=N5W14S5E14Area a:70;TotalArea:1954  
LAND INFORMATION
HIGHEST AND BEST USE USE CODE LOCAL ZONING FRON TAGE DEPTH DEPTH / SIZE LND MOD COND FACT OTHER ADJUSTMENTS AND NOTES
  RF   AC   LC  TO  OT
ROAD
TYPE
LAND UNIT PRICE TOTAL LAND UNITS UNT TYP TOTAL ADJST ADJUSTED UNIT PRICE LAND VALUE OVERRIDE VALUE LAND NOTES
5010 5010   0 0 1.0000 0 1.0000     20,000.00 1.000 LT 1.000 20,000.00 20000    
TOTAL MARKET LAND DATA     20,000  
TOTAL PRESENT USE DATA