WAYNE COUNTY 4/5/2026 2:00:59 AM
SUGGS MATTIE B   Return/Appeal Notes:   Parcel: 3529365493
117 SANDY DR PLAT: / UNIQ ID 29658
324640     ID NO: 06D07045001043
COUNTYWIDE ADVALOREM TAX (100), CITY - GOLDSBORO (100)        CARD NO. 1 of 1  
Reval Year: 2025 Tax Year: 2026 LT 43 RAVENWOOD SURV 1.0000 LT   SRC=  
Appraised by 60 on 09/24/2010 06045 RAVENWOOD 1,2,3,4,5 TW-06 CI-01 FR-00 EX- AT- LAST ACTION 20241022
CONSTRUCTION DETAIL MARKET VALUE   DEPRECIATION CORRELATION OF VALUE
Foundation - 3
Continuous Footing 5.00
Sub Floor System - 4
PLYWOOD 6.00
Exterior Walls - 21
Face Brick 34.00
Roofing Structure - 03
Gable 4.00
Roofing Cover - 03
Asphalt or Comp Shingle 4.00
Interior Wall Construction - 5
Drywall/Sheetrock 27.00
Interior Floor Cover - 14
Carpet 10.00
Heating Fuel - 04
Electric 1.00
Heating Type - 04
Forced Air-Ducted 4.00
Air Conditioning Type - 01
None 0.00
Bedrooms/Bathrooms/Half-Bathrooms
3/1/1 10.000
Bedrooms
BAS - 3 FUS - 0 LL - 0 _
Bathrooms
BAS - 1 FUS - 0 LL - 0 _
Half-Bathrooms
BAS - 1 FUS - 0 LL - 0 _
Office
BAS - 0 FUS - 0 LL - 0 0
TOTAL POINT VALUE 105.000
BUILDING ADJUSTMENTS
Quality 5 Average 1.0000
Shape/Design 7 Market Adjustment 1.1500
Size Size Size 1.0500
TOTAL ADJUSTMENT FACTOR 1.210
TOTAL QUALITY INDEX 127
USE MOD Eff. Area QUAL BASE RATE RCN EYB AYB
   Standard  0.49000
CREDENCE TO MARKET
50 01 1,133 127 158.75 179864 1976 1972 % GOOD 51.0
DEPR. BUILDING VALUE - CARD 91,730
TYPE: RURAL SINGLE FAMILY RESIDENTIAL Single Family Residential
STYLE: 1 - 1.0 Story
 

Click on image to enlarge
DEPR. OB/XF VALUE - CARD 130
MARKET LAND VALUE - CARD 25,000
TOTAL MARKET VALUE - CARD 116,860
TOTAL APPRAISED VALUE - CARD 116,860
TOTAL APPRAISED VALUE - PARCEL 116,860
TOTAL PRESENT USE VALUE - PARCEL 0
TOTAL VALUE DEFERRED - PARCEL 0
TOTAL TAXABLE VALUE - PARCEL $ 116,860
PRIOR
BUILDING VALUE 65,610
OBXF VALUE 100
LAND VALUE 20,000
PRESENT USE VALUE 0
DEFERRED VALUE 0
TOTAL VALUE 85,710
PERMIT
CODE DATE NOTE NUMBER AMOUNT
ROUT: WTRSHD:
SALES DATA
OFF. RECORD DATE DEED TYPE Q/U V/I INDICATE SALES PRICE
BOOK PAGE MO YR
00810 0171 1 1901 WD U I 0
HEATED AREA 1,025
NOTES
 
SUBAREA
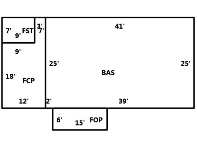
TYPE GS AREA % RPL CS
BAS 1,025 100 162719
FCP 237 025 9366
FOP 90 030 4286
FST 63 035 3493
FIREPLACE 1 - None 0
SUBAREA TOTALS 1,415   179,864
CODE QUALITY DESCRIPTION COUNT LTH WTH UNITS UNIT PRICE ORIG % COND BLDG# AYB EYB ANN DEP RATE OVR % COND OB/XF DEPR. VALUE
01 2 STORAG BLD   8 8 64 20.00 100 1 1985 1985 S3   10 128
TOTAL OB/XF VALUE 128
BUILDING DIMENSIONS BAS=W41S25E2E39N25Area:1025;FCP=W3S7W9S18E12N25Area:237;FST=W9S7E9N7Area:63;FOP=S6E15N6W15Area:90;TotalArea:1415  
LAND INFORMATION
HIGHEST AND BEST USE USE CODE LOCAL ZONING FRON TAGE DEPTH DEPTH / SIZE LND MOD COND FACT OTHER ADJUSTMENTS AND NOTES
  RF   AC   LC  TO  OT
ROAD
TYPE
LAND UNIT PRICE TOTAL LAND UNITS UNT TYP TOTAL ADJST ADJUSTED UNIT PRICE LAND VALUE OVERRIDE VALUE LAND NOTES
5010 5010   0 0 1.0000 0 1.0000     25,000.00 1.000 LT 1.000 25,000.00 25000    
TOTAL MARKET LAND DATA     25,000  
TOTAL PRESENT USE DATA