WAYNE COUNTY 4/2/2026 9:25:32 PM
POWELL RANDALL S        POWELL CARRIE B WIFE Return/Appeal Notes:   Parcel: 3610571834
104 AMBLEWOOD LN PLAT: / UNIQ ID 31519
714620     ID NO: 06E06051A01002
COUNTYWIDE ADVALOREM TAX (100), FIRE - PATETOWN (100), SW FFEEFEE (1)        CARD NO. 1 of 1  
Reval Year: 2025 Tax Year: 2026 LOT 10 SHADYWOOD #2 1.0000 LT   SRC=  
Appraised by 88 on 09/24/2010 06051 SHADYWOOD TW-06 CI-00 FR-02 EX- AT- LAST ACTION 20241022
CONSTRUCTION DETAIL MARKET VALUE   DEPRECIATION CORRELATION OF VALUE
Foundation - 3
Continuous Footing 5.00
Sub Floor System - 4
PLYWOOD 6.00
Exterior Walls - 21
Face Brick 34.00
Roofing Structure - 03
Gable 4.00
Roofing Cover - 03
Asphalt or Comp Shingle 4.00
Interior Wall Construction - 5
Drywall/Sheetrock 27.00
Interior Floor Cover - 08
Sheet Vinyl 9.00
Interior Floor Cover - 14
Carpet 0.00
Heating Fuel - 03
Gas 1.00
Heating Type - 10
Heat Pump 4.00
Air Conditioning Type - 03
Central 4.00
Bedrooms/Bathrooms/Half-Bathrooms
3/2/0 12.000
Bedrooms
BAS - 3 FUS - 0 LL - 0 _
Bathrooms
BAS - 2 FUS - 0 LL - 0 _
Half-Bathrooms
BAS - 0 FUS - 0 LL - 0 _
Office
BAS - 0 FUS - 0 LL - 0 0
TOTAL POINT VALUE 110.000
BUILDING ADJUSTMENTS
Quality 5 Average 1.0000
Shape/Design 7 Market Adjustment 1.1500
Size Size Size 0.9800
TOTAL ADJUSTMENT FACTOR 1.130
TOTAL QUALITY INDEX 124
USE MOD Eff. Area QUAL BASE RATE RCN EYB AYB
   Standard  0.38000
CREDENCE TO MARKET
50 01 2,033 124 155.00 317115 1987 1987 % GOOD 62.0
DEPR. BUILDING VALUE - CARD 196,610
TYPE: RURAL SINGLE FAMILY RESIDENTIAL Single Family Residential
STYLE: 1 - 1.0 Story
 

Click on image to enlarge
DEPR. OB/XF VALUE - CARD 7,720
MARKET LAND VALUE - CARD 18,000
TOTAL MARKET VALUE - CARD 222,330
TOTAL APPRAISED VALUE - CARD 222,330
TOTAL APPRAISED VALUE - PARCEL 222,330
TOTAL PRESENT USE VALUE - PARCEL 0
TOTAL VALUE DEFERRED - PARCEL 0
TOTAL TAXABLE VALUE - PARCEL $ 222,330
PRIOR
BUILDING VALUE 138,500
OBXF VALUE 5,580
LAND VALUE 18,000
PRESENT USE VALUE 0
DEFERRED VALUE 0
TOTAL VALUE 162,080
PERMIT
CODE DATE NOTE NUMBER AMOUNT
ROUT: WTRSHD:
SALES DATA
OFF. RECORD DATE DEED TYPE Q/U V/I INDICATE SALES PRICE
BOOK PAGE MO YR
03721 0503 3 2022 WD C I 0
03443 0600 6 2019 WD C I 0
02990 0103 1 2013 WD C I 0
02876 0750 9 2011 WD C I 0
02869 0080 8 2011 WD C I 0
01761 0015 2 2000 WD U I 0
01234 0255 6 1989 WD U I 0
01176 0292 9 1987 WD U I 8500
00919 0399 1 1901 WD U I 0
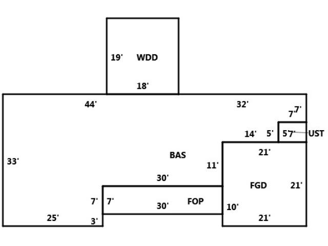
HEATED AREA 1,732
NOTES
 
SUBAREA
TYPE GS AREA % RPL CS
BAS 1,732 100 268460
FGD 441 040 27280
FOP 210 030 9765
UST 35 030 1705
WDD 342 015 7905
FIREPLACE 3 - 1 Story Single 2,000
SUBAREA TOTALS 2,760   317,115
CODE QUALITY DESCRIPTION COUNT LTH WTH UNITS UNIT PRICE ORIG % COND BLDG# AYB EYB ANN DEP RATE OVR % COND OB/XF DEPR. VALUE
01 2 STORAG BLD   32 12 384 20.00 100 1 1988 1988 S3   10 768
08 2 POOL/VINYL   36 18 648 50.00 100 1 1989 1989 S5   20 6480
55 2 GAZEBO   14 14 196 12.00 100 1 1989 1989 S5   20 470
TOTAL OB/XF VALUE 7,718
BUILDING DIMENSIONS BAS=W32W44S33E25N3N7E30N11E14N5E7N7Area:1732;WDD=N19W18S19E18Area:342;FOP=E30N7W30S7Area:210;FGD=S10E21N21W21S11Area:441 1;UST=N5W7S5E7Area:35;TotalArea:2760  
LAND INFORMATION
HIGHEST AND BEST USE USE CODE LOCAL ZONING FRON TAGE DEPTH DEPTH / SIZE LND MOD COND FACT OTHER ADJUSTMENTS AND NOTES
  RF   AC   LC  TO  OT
ROAD
TYPE
LAND UNIT PRICE TOTAL LAND UNITS UNT TYP TOTAL ADJST ADJUSTED UNIT PRICE LAND VALUE OVERRIDE VALUE LAND NOTES
5010 5010   0 0 1.0000 0 1.0000     18,000.00 1.000 LT 1.000 18,000.00 18000 0  
TOTAL MARKET LAND DATA     18,000  
TOTAL PRESENT USE DATA