WAYNE COUNTY 4/2/2026 9:27:04 PM
POWELL DAVID RUSSELL JR   Return/Appeal Notes:   Parcel: 3529360196
129 SANDY DR PLAT: / UNIQ ID 29631
53275080     ID NO: 06D07045001049
COUNTYWIDE ADVALOREM TAX (100), CITY - GOLDSBORO (100)        CARD NO. 1 of 1  
Reval Year: 2025 Tax Year: 2026 LT 49 RAVENWOOD 2 1.0000 LT   SRC=  
Appraised by 88 on 09/24/2010 06045 RAVENWOOD 1,2,3,4,5 TW-06 CI-01 FR-00 EX- AT- LAST ACTION 20241030
CONSTRUCTION DETAIL MARKET VALUE   DEPRECIATION CORRELATION OF VALUE
Foundation - 3
Continuous Footing 5.00
Sub Floor System - 4
PLYWOOD 6.00
Exterior Walls - 21
Face Brick 34.00
Roofing Structure - 03
Gable 4.00
Roofing Cover - 03
Asphalt or Comp Shingle 4.00
Interior Wall Construction - 4
Plywood Panel 28.00
Interior Wall Construction - 6
Custom Interior 0.00
Interior Floor Cover - 08
Sheet Vinyl 9.00
Interior Floor Cover - 14
Carpet 0.00
Heating Fuel - 04
Electric 1.00
Heating Type - 04
Forced Air-Ducted 4.00
Air Conditioning Type - 03
Central 4.00
Bedrooms/Bathrooms/Half-Bathrooms
3/1/1 10.000
Bedrooms
BAS - 3 FUS - 0 LL - 0 _
Bathrooms
BAS - 1 FUS - 0 LL - 0 _
Half-Bathrooms
BAS - 1 FUS - 0 LL - 0 _
Office
BAS - 0 FUS - 0 LL - 0 0
TOTAL POINT VALUE 109.000
BUILDING ADJUSTMENTS
Quality 5 Average 1.0000
Shape/Design 7 Market Adjustment 1.1500
Size Size Size 1.0000
TOTAL ADJUSTMENT FACTOR 1.150
TOTAL QUALITY INDEX 125
USE MOD Eff. Area QUAL BASE RATE RCN EYB AYB
   Standard  0.30000
CREDENCE TO MARKET
50 01 1,627 125 156.25 256219 1995 1974 % GOOD 70.0
DEPR. BUILDING VALUE - CARD 179,350
TYPE: RURAL SINGLE FAMILY RESIDENTIAL Single Family Residential
STYLE: 1 - 1.0 Story
 

Click on image to enlarge
DEPR. OB/XF VALUE - CARD 140
MARKET LAND VALUE - CARD 25,000
TOTAL MARKET VALUE - CARD 204,490
TOTAL APPRAISED VALUE - CARD 204,490
TOTAL APPRAISED VALUE - PARCEL 204,490
TOTAL PRESENT USE VALUE - PARCEL 0
TOTAL VALUE DEFERRED - PARCEL 0
TOTAL TAXABLE VALUE - PARCEL $ 204,490
PRIOR
BUILDING VALUE 97,170
OBXF VALUE 320
LAND VALUE 20,000
PRESENT USE VALUE 0
DEFERRED VALUE 0
TOTAL VALUE 117,490
PERMIT
CODE DATE NOTE NUMBER AMOUNT
ROUT: WTRSHD:
SALES DATA
OFF. RECORD DATE DEED TYPE Q/U V/I INDICATE SALES PRICE
BOOK PAGE MO YR
00874 0649 1 1901 WD U I 0
HEATED AREA 1,488
NOTES
FOR SALE ASKING 215,000.00P9-97 ADDITION FOR 98
SUBAREA
TYPE GS AREA % RPL CS
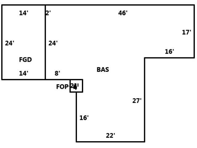
BAS 1,488 100 232500
FGD 336 040 20938
FOP 16 030 781
FIREPLACE 3 - 1 Story Single 2,000
SUBAREA TOTALS 1,840   256,219
CODE QUALITY DESCRIPTION COUNT LTH WTH UNITS UNIT PRICE ORIG % COND BLDG# AYB EYB ANN DEP RATE OVR % COND OB/XF DEPR. VALUE
01 1 STORAG BLD   12 12 144 10.00 100 1 1995 1995 S3   10 144
TOTAL OB/XF VALUE 144
BUILDING DIMENSIONS BAS=W46W2S24E8S4E2S16E22N27E16N17Area:1488;FGD=W14S24E14N24Area:336;FOP=E4S4W4N4Area:16;TotalArea:1840  
LAND INFORMATION
HIGHEST AND BEST USE USE CODE LOCAL ZONING FRON TAGE DEPTH DEPTH / SIZE LND MOD COND FACT OTHER ADJUSTMENTS AND NOTES
  RF   AC   LC  TO  OT
ROAD
TYPE
LAND UNIT PRICE TOTAL LAND UNITS UNT TYP TOTAL ADJST ADJUSTED UNIT PRICE LAND VALUE OVERRIDE VALUE LAND NOTES
5010 5010   0 0 1.0000 0 1.0000     25,000.00 1.000 LT 1.000 25,000.00 25000 0  
TOTAL MARKET LAND DATA     25,000  
TOTAL PRESENT USE DATA