WAYNE COUNTY 4/4/2026 3:24:50 PM
WIGGINS BRITTANY P        WIGGINS STEVEN WAYNE JR HUSBAND Return/Appeal Notes:   Parcel: 3621995086
210 ANTIOCH RD PLAT: / UNIQ ID 25129
742488     ID NO: 05C05034001007
COUNTYWIDE ADVALOREM TAX (100), FIRE - SAULSTON (100), SW FFEEFEE (1)        CARD NO. 1 of 1  
Reval Year: 2025 Tax Year: 2026 LT 7 SAULSBERRY #1 0.4600 AC   SRC=  
Appraised by 11 on 08/25/2010 05034 SAULSBERRY #1 & 2 TW-05 CI-00 FR-10 EX- AT- LAST ACTION 20241101
CONSTRUCTION DETAIL MARKET VALUE   DEPRECIATION CORRELATION OF VALUE
Foundation - 3
Continuous Footing 5.00
Sub Floor System - 4
PLYWOOD 6.00
Exterior Walls - 10
Aluminum/Vinyl Siding 30.00
Roofing Structure - 03
Gable 4.00
Roofing Cover - 03
Asphalt or Comp Shingle 4.00
Interior Wall Construction - 5
Drywall/Sheetrock 27.00
Interior Floor Cover - 08
Sheet Vinyl 9.00
Interior Floor Cover - 14
Carpet 0.00
Heating Fuel - 04
Electric 1.00
Heating Type - 04
Forced Air-Ducted 4.00
Air Conditioning Type - 03
Central 4.00
Bedrooms/Bathrooms/Half-Bathrooms
3/2/0 12.000
Bedrooms
BAS - 3 FUS - 0 LL - 0 _
Bathrooms
BAS - 2 FUS - 0 LL - 0 _
Half-Bathrooms
BAS - 0 FUS - 0 LL - 0 _
Office
BAS - 0 FUS - 0 LL - 0 0
TOTAL POINT VALUE 106.000
BUILDING ADJUSTMENTS
Quality 5 Average 1.0000
Shape/Design 1 Market Adjustment 1.0000
Size Size Size 0.9800
TOTAL ADJUSTMENT FACTOR 0.980
TOTAL QUALITY INDEX 104
USE MOD Eff. Area QUAL BASE RATE RCN EYB AYB
   Standard  0.39000
CREDENCE TO MARKET
02 01 1,982 104 88.40 176409 2005 1995 % GOOD 61.0
DEPR. BUILDING VALUE - CARD 107,610
TYPE: MOBILE HOME Single Family Residential
STYLE: 1 - 1.0 Story
 

Click on image to enlarge
DEPR. OB/XF VALUE - CARD 400
MARKET LAND VALUE - CARD 30,000
TOTAL MARKET VALUE - CARD 138,010
TOTAL APPRAISED VALUE - CARD 138,010
TOTAL APPRAISED VALUE - PARCEL 138,010
TOTAL PRESENT USE VALUE - PARCEL 0
TOTAL VALUE DEFERRED - PARCEL 0
TOTAL TAXABLE VALUE - PARCEL $ 138,010
PRIOR
BUILDING VALUE 64,060
OBXF VALUE 550
LAND VALUE 18,000
PRESENT USE VALUE 0
DEFERRED VALUE 0
TOTAL VALUE 82,610
PERMIT
CODE DATE NOTE NUMBER AMOUNT
ROUT: WTRSHD:
SALES DATA
OFF. RECORD DATE DEED TYPE Q/U V/I INDICATE SALES PRICE
BOOK PAGE MO YR
03213 0025 3 2016 WD Q I 84000
02517 0321 4 2007 WD U I 0
01473 0001 4 1995 WD U I 10000
01452 0408 11 1994 WD U I 0
HEATED AREA 1,782
NOTES
P6-95 DW FOR 96
SUBAREA
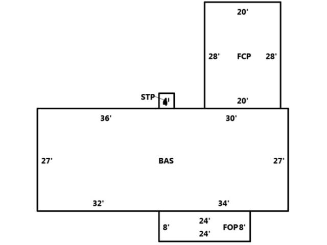
TYPE GS AREA % RPL CS
BAS 1,782 100 157529
FCP 560 025 12376
FOP 192 030 5127
STP 16 010 177
FIREPLACE 2 - Pre-Fab 1,200
SUBAREA TOTALS 2,550   176,409
CODE QUALITY DESCRIPTION COUNT LTH WTH UNITS UNIT PRICE ORIG % COND BLDG# AYB EYB ANN DEP RATE OVR % COND OB/XF DEPR. VALUE
01 1 STORAG BLD   16 10 160 10.00 100 1 2000 2000 S3   25 400
TOTAL OB/XF VALUE 400
BUILDING DIMENSIONS BAS=W30W36S27E32E34N27Area:1782;STP=N4W4S4E4Area:16;FOP=S8E24N8W24Area:192;FCP=N28W20S28E20Area:560;TotalArea:2550  
LAND INFORMATION
HIGHEST AND BEST USE USE CODE LOCAL ZONING FRON TAGE DEPTH DEPTH / SIZE LND MOD COND FACT OTHER ADJUSTMENTS AND NOTES
  RF   AC   LC  TO  OT
ROAD
TYPE
LAND UNIT PRICE TOTAL LAND UNITS UNT TYP TOTAL ADJST ADJUSTED UNIT PRICE LAND VALUE OVERRIDE VALUE LAND NOTES
0200 0200   0 0 1.0000 0 1.0000
  .46 AC
  30,000.00 1.000 LT 1.000 30,000.00 30000 0  
TOTAL MARKET LAND DATA     30,000  
TOTAL PRESENT USE DATA