WAYNE COUNTY 4/4/2026 3:25:05 PM
WIGGINS JAMES ERWIN        WIGGINS GLORIA FAITH WIFE Return/Appeal Notes:   Parcel: 2683415162
157 ALEXANDER CIR PLAT: / UNIQ ID 38665
71835760     ID NO: 08G05007001016
COUNTYWIDE ADVALOREM TAX (100), FIRE - NAHUNTA (100), SW FFEEFEE (1)        CARD NO. 1 of 1  
Reval Year: 2025 Tax Year: 2026 LT 16 TAYLOR ACRES 1 1.0000 LT   SRC=  
Appraised by 88 on 10/26/2010 08007 TAYLOR ACRES TW-08 CI-00 FR-09 EX- AT- LAST ACTION 20241107
CONSTRUCTION DETAIL MARKET VALUE   DEPRECIATION CORRELATION OF VALUE
Foundation - 3
Continuous Footing 5.00
Sub Floor System - 4
PLYWOOD 6.00
Exterior Walls - 21
Face Brick 34.00
Roofing Structure - 03
Gable 4.00
Roofing Cover - 03
Asphalt or Comp Shingle 4.00
Interior Wall Construction - 5
Drywall/Sheetrock 27.00
Interior Floor Cover - 14
Carpet 10.00
Heating Fuel - 04
Electric 1.00
Heating Type - 10
Heat Pump 4.00
Air Conditioning Type - 03
Central 4.00
Bedrooms/Bathrooms/Half-Bathrooms
3/2/1 13.000
Bedrooms
BAS - 3 FUS - 0 LL - 0 _
Bathrooms
BAS - 2 FUS - 0 LL - 0 _
Half-Bathrooms
BAS - 1 FUS - 0 LL - 0 _
Office
BAS - 0 FUS - 0 LL - 0 0
TOTAL POINT VALUE 112.000
BUILDING ADJUSTMENTS
Quality 5 Average 1.0000
Shape/Design 3 Market Adjustment 1.0400
Size Size Size 0.9500
TOTAL ADJUSTMENT FACTOR 0.990
TOTAL QUALITY INDEX 111
USE MOD Eff. Area QUAL BASE RATE RCN EYB AYB
   Standard  0.42000
CREDENCE TO MARKET
01 01 2,519 111 138.75 351513 1983 1973 % GOOD 58.0
DEPR. BUILDING VALUE - CARD 203,880
TYPE: SINGLE FAMILY RESIDENTIAL Single Family Residential
STYLE: 1 - 1.0 Story
 

Click on image to enlarge
DEPR. OB/XF VALUE - CARD 240
MARKET LAND VALUE - CARD 30,000
TOTAL MARKET VALUE - CARD 234,120
TOTAL APPRAISED VALUE - CARD 234,120
TOTAL APPRAISED VALUE - PARCEL 234,120
TOTAL PRESENT USE VALUE - PARCEL 0
TOTAL VALUE DEFERRED - PARCEL 0
TOTAL TAXABLE VALUE - PARCEL $ 234,120
PRIOR
BUILDING VALUE 127,210
OBXF VALUE 190
LAND VALUE 18,000
PRESENT USE VALUE 0
DEFERRED VALUE 0
TOTAL VALUE 145,400
PERMIT
CODE DATE NOTE NUMBER AMOUNT
ROUT: WTRSHD:
SALES DATA
OFF. RECORD DATE DEED TYPE Q/U V/I INDICATE SALES PRICE
BOOK PAGE MO YR
03407 0111 11 2018 WD C I 0
00827 0257 1 1973 WD U I 0
HEATED AREA 2,514
NOTES
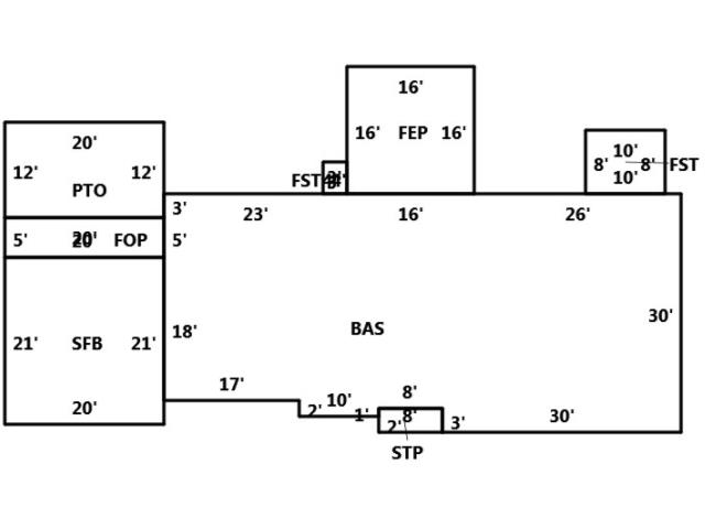
FST IS OVER FEP
SUBAREA
TYPE GS AREA % RPL CS
BAS 1,838 100 255023
FEP 256 070 24836
FOP 100 030 4163
FST 348 035 16928
PTO 240 005 1665
SFB 420 080 46620
STP 24 010 278
FIREPLACE 3 - 1 Story Single 2,000
SUBAREA TOTALS 3,226   351,513
CODE QUALITY DESCRIPTION COUNT LTH WTH UNITS UNIT PRICE ORIG % COND BLDG# AYB EYB ANN DEP RATE OVR % COND OB/XF DEPR. VALUE
01 1 STORAG BLD   8 6 48 10.00 100 1 1980 1980 S3   10 48
01 1 STORAG BLD   12 16 192 10.00 100 1 1980 1980 S3   10 192
TOTAL OB/XF VALUE 240
BUILDING DIMENSIONS BAS=W26W16W23S3S5S18E17S2E10N1E8S3E30N30Area:1838;FEP=N16W16S16E16Area:256;FST=N4W3S4E3Area:12;FOP=W20S5E20N5Area:100;SF FB=W20S21E20N21Area:420;STP=N1E8S3W8N2Area:24;FST=Area:256;FST=N8W10S8E10Area:80;PTO=N12E20S12W20Area:240;TotalArea:3226 6  
LAND INFORMATION
HIGHEST AND BEST USE USE CODE LOCAL ZONING FRON TAGE DEPTH DEPTH / SIZE LND MOD COND FACT OTHER ADJUSTMENTS AND NOTES
  RF   AC   LC  TO  OT
ROAD
TYPE
LAND UNIT PRICE TOTAL LAND UNITS UNT TYP TOTAL ADJST ADJUSTED UNIT PRICE LAND VALUE OVERRIDE VALUE LAND NOTES
5010 5010   0 0 1.0000 0 1.0000     30,000.00 1.000 LT 1.000 30,000.00 30000 0  
TOTAL MARKET LAND DATA     30,000  
TOTAL PRESENT USE DATA