WAYNE COUNTY 4/2/2026 9:28:28 PM
POWELL CONNIE B   Return/Appeal Notes:   Parcel: 3602073241
157 HINNANT RD PLAT: / UNIQ ID 39693
743889     ID NO: 08F05018001003
COUNTYWIDE ADVALOREM TAX (100), FIRE - PLEASANT GROVE (100), SW FFEEFEE (2)        CARD NO. 1 of 1  
Reval Year: 2025 Tax Year: 2026 PT 3 WIND CHIME #1 1.8000 AC   SRC=  
Appraised by 60 on 10/26/2010 08018 WIND CHIME TW-08 CI-00 FR-17 EX- AT- LAST ACTION 20250212
CONSTRUCTION DETAIL MARKET VALUE   DEPRECIATION CORRELATION OF VALUE
Foundation - 3
Continuous Footing 5.00
Sub Floor System - 4
PLYWOOD 6.00
Exterior Walls - 10
Aluminum/Vinyl Siding 30.00
Roofing Structure - 03
Gable 4.00
Roofing Cover - 03
Asphalt or Comp Shingle 4.00
Interior Wall Construction - 5
Drywall/Sheetrock 27.00
Interior Floor Cover - 08
Sheet Vinyl 9.00
Interior Floor Cover - 14
Carpet 0.00
Heating Fuel - 04
Electric 1.00
Heating Type - 10
Heat Pump 4.00
Air Conditioning Type - 03
Central 4.00
Bedrooms/Bathrooms/Half-Bathrooms
3/2/0 12.000
Bedrooms
BAS - 3 FUS - 0 LL - 0 _
Bathrooms
BAS - 2 FUS - 0 LL - 0 _
Half-Bathrooms
BAS - 0 FUS - 0 LL - 0 _
Office
BAS - 0 FUS - 0 LL - 0 0
TOTAL POINT VALUE 106.000
BUILDING ADJUSTMENTS
Quality 5 Average 1.0000
Shape/Design 1 Market Adjustment 1.0000
Size Size Size 1.0000
TOTAL ADJUSTMENT FACTOR 1.000
TOTAL QUALITY INDEX 106
USE MOD Eff. Area QUAL BASE RATE RCN EYB AYB
   Standard  0.70000
CREDENCE TO MARKET
02 01 1,461 106 90.10 132836 1990 1990 % GOOD 30.0
DEPR. BUILDING VALUE - CARD 39,850
TYPE: MOBILE HOME Single Family Residential
STYLE: 1 - 1.0 Story
 

Click on image to enlarge
DEPR. OB/XF VALUE - CARD 4,000
MARKET LAND VALUE - CARD 27,600
TOTAL MARKET VALUE - CARD 71,450
TOTAL APPRAISED VALUE - CARD 71,450
TOTAL APPRAISED VALUE - PARCEL 71,450
TOTAL PRESENT USE VALUE - PARCEL 0
TOTAL VALUE DEFERRED - PARCEL 0
TOTAL TAXABLE VALUE - PARCEL $ 71,450
PRIOR
BUILDING VALUE 26,650
OBXF VALUE 3,600
LAND VALUE 24,600
PRESENT USE VALUE 0
DEFERRED VALUE 0
TOTAL VALUE 54,850
PERMIT
CODE DATE NOTE NUMBER AMOUNT
ROUT: WTRSHD:
SALES DATA
OFF. RECORD DATE DEED TYPE Q/U V/I INDICATE SALES PRICE
BOOK PAGE MO YR
11182 0689 11 1987 WD U I 0
01393 0007 9 1993 WD U I 58000
01206 0844 7 1988 WD U I 2000
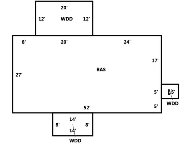
HEATED AREA 1,404
NOTES
P7-90 DW FOR 1991 SW ON LOT;.10 TO DOT 179
1 -563
SUBAREA
TYPE GS AREA % RPL CS
BAS 1,404 100 126500
WDD 382 015 5136
FIREPLACE 2 - Pre-Fab 1,200
SUBAREA TOTALS 1,786   132,836
CODE QUALITY DESCRIPTION COUNT LTH WTH UNITS UNIT PRICE ORIG % COND BLDG# AYB EYB ANN DEP RATE OVR % COND OB/XF DEPR. VALUE
02 2 GARAGE   20 20 400 25.00 100 1 1990 1990 S3   20 2000
15 1 MOBILEHOME   0 0 1 2,000.00 100 1 1900 1900 0   100 2000
TOTAL OB/XF VALUE 4,000
BUILDING DIMENSIONS BAS=W24W20W8S27E52N5N5N17Area:1404;WDD=W20N12E20S12Area:240;WDD=N5E6S5W6Area:30;WDD=S8W14N8E14Area:112;TotalArea:1786  
LAND INFORMATION
HIGHEST AND BEST USE USE CODE LOCAL ZONING FRON TAGE DEPTH DEPTH / SIZE LND MOD COND FACT OTHER ADJUSTMENTS AND NOTES
  RF   AC   LC  TO  OT
ROAD
TYPE
LAND UNIT PRICE TOTAL LAND UNITS UNT TYP TOTAL ADJST ADJUSTED UNIT PRICE LAND VALUE OVERRIDE VALUE LAND NOTES
0200 0200   0 0 1.0000 0 1.0000     20,000.00 1.000 AC 1.000 20,000.00 20000 0  
5111 5111   0 0 1.9000 0 1.0000     5,000.00 0.800 AC 1.900 9,500.00 7600 0  
TOTAL MARKET LAND DATA 1.800   27,600  
TOTAL PRESENT USE DATA